※このサイトに記載がある賃貸条件は、敷金・保証金などの預かり金を除き、別途消費税がかかります。
お電話でもお気軽にお問い合わせください
物件情報
設備詳細
| 空調 | - |
|---|---|
| トイレ | - |
| 床仕様 | - |
| エレベータ | - |
| 駐車場設備 | 空有 |
| その他 | - |
アクセスマップ
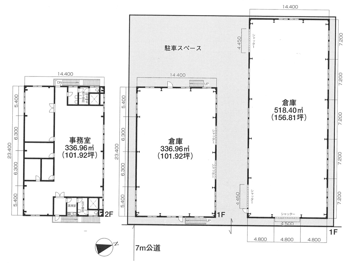
千早2丁目貸倉庫ビルは、豊島区千早2丁目に位置する優れたオフィス賃貸物件です。このビルは、要町駅及び千川駅から徒歩わずか7分という駅近の立地にあり、ビジネスアクセスの利便性が非常に高いです。1974年に竣工されたこの物件は、鉄骨造りで耐震性に優れ、安心して業務を行うことができます。 ビルの設備面では、男女共用のトイレが完備されており、清潔で快適な使用感を提供しています。また、ビル内に駐車場が設けられているため、来客時の利便性も高く、ビジネスの効率を向上させます。周辺環境も魅力的で、飲食店や郵便局、コインランドリーが徒歩圏内に揃っており、日々の業務に必要なサービスを手軽に利用することができます。 立地に関しては、裏通りに位置しているため交通量は穏やかで、騒音の少ない環境で仕事に集中できる点が特徴です。また、住宅が多い地域にあるため、道幅が広く、車や自転車の利用にも適しています。このような環境は、働く従業員のストレスを減少させ、生産性の向上に寄与するでしょう。 千早2丁目貸倉庫ビルは、耐震性に優れた構造、完備された設備、そして絶好の立地条件を兼ね備えており、さまざまなビジネスニーズに応じた最適なオフィススペースを提供します。このビルがビジネスの成功を後押しする、価値ある選択肢となることは間違いありません。興味をお持ちの方は、是非一度、物件の空き状況についてお問い合わせください。
募集終了のテナント区画
| 階数 | 坪数 | 賃料 + 共益費 | 敷金/礼金敷金 礼金 | 検討 |
|---|---|---|---|---|
| 1-2階 | 360.65坪 (1192.23m²) | 募集終了 | - | - |
WEB非公開物件がございます
オーナー様ご希望によるWEB非公開の物件もございます。先ずは条件などお知らせ頂けましたら、非公開物件含めピッタリのオフィスをご提案させて頂きます。具体的な物件がお決まりでない場合でも問題ございません。無理なお勧めはしておりませんので、お気軽にお問い合わせください。
ご来店も歓迎です
オフィス移転は社内・社外ともに非公開に行われることが殆どです。そのためアットオフィスでは、基本的に訪問によるコンサルティングを行っておりますが、ご来店の相談も歓迎です。
※お一人おひとりに親身にご対応させて頂きたい為、要予約とさせて頂いております。ご来店の際は先ずは上記よりご予約下さい。
読込中...
要町/千川エリアで千早2丁目貸倉庫ビルに似た条件の物件
読込中...