※このサイトに記載がある賃貸条件は、敷金・保証金などの預かり金を除き、別途消費税がかかります。
お電話でもお気軽にお問い合わせください
物件情報
設備詳細
| 空調 | - |
|---|---|
| トイレ | - |
| 床仕様 | - |
| エレベータ | 1 基 |
| 駐車場設備 | 空有 |
| その他 | 新耐震基準 |
アクセスマップ
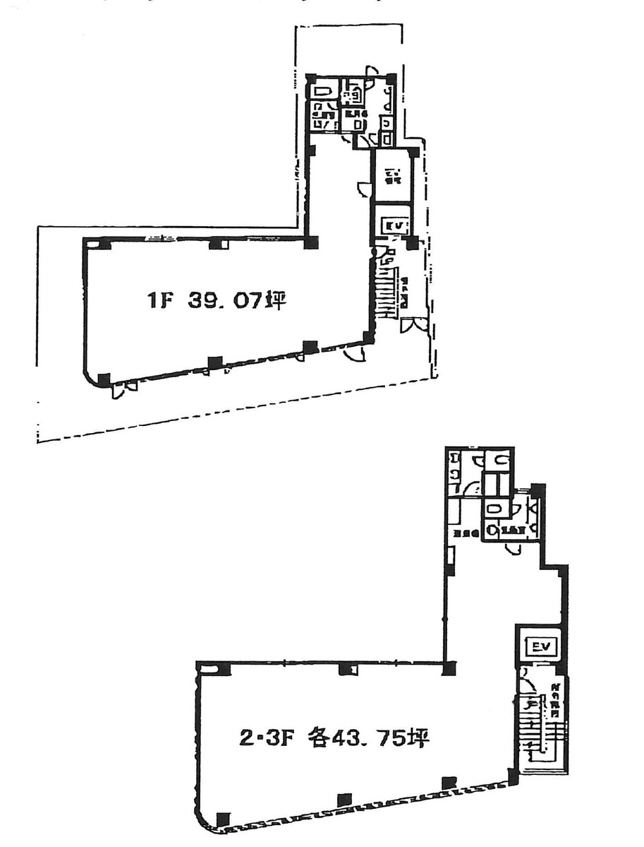
赤坂エリアに位置する「クレイン赤坂ビル」は、ビジネスの中心地にふさわしい洗練されたオフィス空間を提供しています。この地上3階建ての低層ビルは、グレーのタイル壁と連続窓が特徴的で、都市のビル群の中においても独自の風格を放っています。1993年の新耐震基準に準拠して建設されたこの物件は、安全性にも配慮されており、利用者の安心につながっています。 クレイン赤坂ビルは、基準階に43.75坪、1階には39.07坪の賃貸オフィススペースを提供しており、一棟貸しも可能で、合計で約127.5坪の広さを誇っています。コンパクトながら機能的なエントランス、そしてすぐにアクセスできるエレベーターは、日々のビジネスをスムーズに進めるための環境を提供しています。 また、このビルは機械式警備を採用しており、セキュリティ面でも万全を期しています。ビルの外周には平置きの駐車スペースが設けられており、駐車場がビル内にあるため、来訪者や従業員にとって大きなメリットとなっています。 立地においてもクレイン赤坂ビルは魅力的です。港区赤坂6丁目、氷川公園脇の路地に面しており、閑静ながらも国際新赤坂ビルや赤坂Bizタワーなどのオフィス街に隣接しています。コンビニエンスストアが至近にあり、赤坂通りや一ツ木通りなど、飲食店が並ぶエリアにも近く、ビジネスだけでなく日常生活においても利便性が高いです。 さらに、最寄り駅からのアクセスはもちろん、徒歩圏内に複数の駅や路線が利用可能で、ビジネスにおける交通の利便性も抜群です。このようにクレイン赤坂ビルは、利便性、セキュリティ、そして快適なオフィス環境を求める全てのビジネスパーソンにとって、理想的なオフィススペースを提供しています。
募集終了のテナント区画
| 階数 | 坪数 | 賃料 + 共益費 | 敷金/礼金敷金 礼金 | 検討 |
|---|---|---|---|---|
| 1階 | 126.57坪 (418.41m²) | 募集終了 | - | - |
| 1階 | 39.07坪 (129.16m²) | 募集終了 | - | - |
| 2階 | 43.75坪 (144.63m²) | 募集終了 | - | - |
| 3階 | 43.75坪 (144.63m²) | 募集終了 | - | - |
WEB非公開物件がございます
オーナー様ご希望によるWEB非公開の物件もございます。先ずは条件などお知らせ頂けましたら、非公開物件含めピッタリのオフィスをご提案させて頂きます。具体的な物件がお決まりでない場合でも問題ございません。無理なお勧めはしておりませんので、お気軽にお問い合わせください。
ご来店も歓迎です
オフィス移転は社内・社外ともに非公開に行われることが殆どです。そのためアットオフィスでは、基本的に訪問によるコンサルティングを行っておりますが、ご来店の相談も歓迎です。
※お一人おひとりに親身にご対応させて頂きたい為、要予約とさせて頂いております。ご来店の際は先ずは上記よりご予約下さい。
読込中...
赤坂/六本木/麻布エリアでクレイン赤坂ビルに似た条件の物件
読込中...