※このサイトに記載がある賃貸条件は、敷金・保証金などの預かり金を除き、別途消費税がかかります。
お電話でもお気軽にお問い合わせください
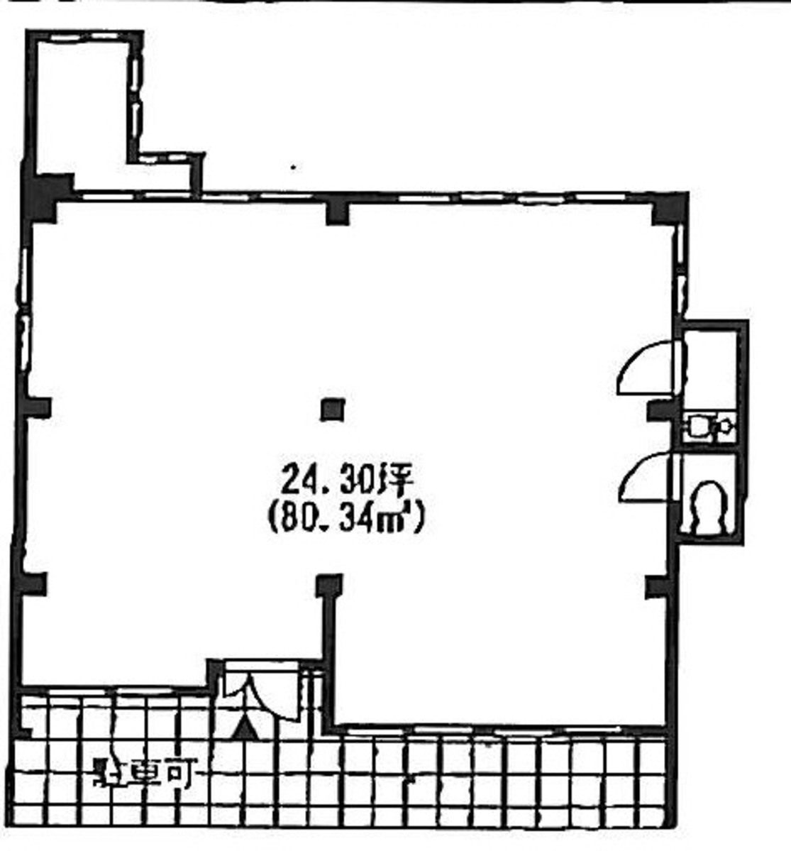
物件情報
設備詳細
| 空調 | - |
|---|---|
| トイレ | - |
| 床仕様 | - |
| エレベータ | - |
| 駐車場設備 | - |
| その他 | - |
アクセスマップ
五十嵐店舗ビルは、品川区豊町5丁目に所在する優れたオフィス賃貸物件です。このビルは、アクセスの良さと充実した設備により、ビジネスに最適な環境を提供します。 まず、立地についてご紹介いたします。五十嵐店舗ビルは、3つの主要な鉄道駅から徒歩圏内に位置しています。東急大井町線の戸越公園駅からは徒歩5分、JR横須賀線の西大井駅からは徒歩7分、そして東京都浅草線の中延駅からも徒歩7分で到達可能です。この絶好のロケーションにより、通勤の利便性が高く、社員の満足度向上や採用活動にも大いに貢献するでしょう。 次に、ビルの特徴と設備に関してです。五十嵐店舗ビルは、最新のオフィス設備を備えており、ビジネスの運営をサポートします。高速インターネット接続はもちろんのこと、エアコン完備の快適な環境が整っています。また、24時間のセキュリティシステムにより、安全性も確保されています。エレベーターも完備されており、階段を使用せずに各階への移動が可能です。 さらに、ビル内の環境は清潔でメンテナンスが行き届いており、ビジネスに集中できる静かな空間を提供しています。共有スペースも広く、ミーティングや休憩に利用できるエリアが充実しています。 五十嵐店舗ビルは、その優れた立地と充実した設備により、ビジネスにおける利点が多数あります。交通の便が良いため、顧客や取引先とのアクセスも容易で、ビジネスの拡大やネットワーキングに大変便利です。また、周辺には多くの飲食店やカフェがあり、ランチタイムや商談の合間に利用できるスポットも豊富です。 最後に、五十嵐店舗ビルの独自の魅力について言及します。このビルは、単なるオフィススペースの提供に留まらず、働く人々にとって快適で効率的な環境を提供することを重視しています。本ビルに入居することで、ビジネスの成長を促進し、社員のモチベーションやパフォーマンス向上に寄与することでしょう。 以上のように、五十嵐店舗ビルは、品川区でのビジネス展開を考える企業にとって、理想的なオフィススペースとなります。ぜひ一度、現地をご覧いただき、その魅力を直接お確かめください。
募集終了のテナント区画
| 階数 | 坪数 | 賃料 + 共益費 | 敷金/礼金敷金 礼金 | 検討 |
|---|---|---|---|---|
| 1階 | 24.3坪 (80.34m²) | 募集終了 | - | - |
WEB非公開物件がございます
オーナー様ご希望によるWEB非公開の物件もございます。先ずは条件などお知らせ頂けましたら、非公開物件含めピッタリのオフィスをご提案させて頂きます。具体的な物件がお決まりでない場合でも問題ございません。無理なお勧めはしておりませんので、お気軽にお問い合わせください。
ご来店も歓迎です
オフィス移転は社内・社外ともに非公開に行われることが殆どです。そのためアットオフィスでは、基本的に訪問によるコンサルティングを行っておりますが、ご来店の相談も歓迎です。
※お一人おひとりに親身にご対応させて頂きたい為、要予約とさせて頂いております。ご来店の際は先ずは上記よりご予約下さい。
読込中...
戸越エリアで五十嵐店舗ビルに似た条件の物件
読込中...