※このサイトに記載がある賃貸条件は、敷金・保証金などの預かり金を除き、別途消費税がかかります。
お電話でもお気軽にお問い合わせください
物件情報
設備詳細
| 空調 | - |
|---|---|
| トイレ | - |
| 床仕様 | - |
| エレベータ | - |
| 駐車場設備 | - |
| その他 | 新耐震基準 |
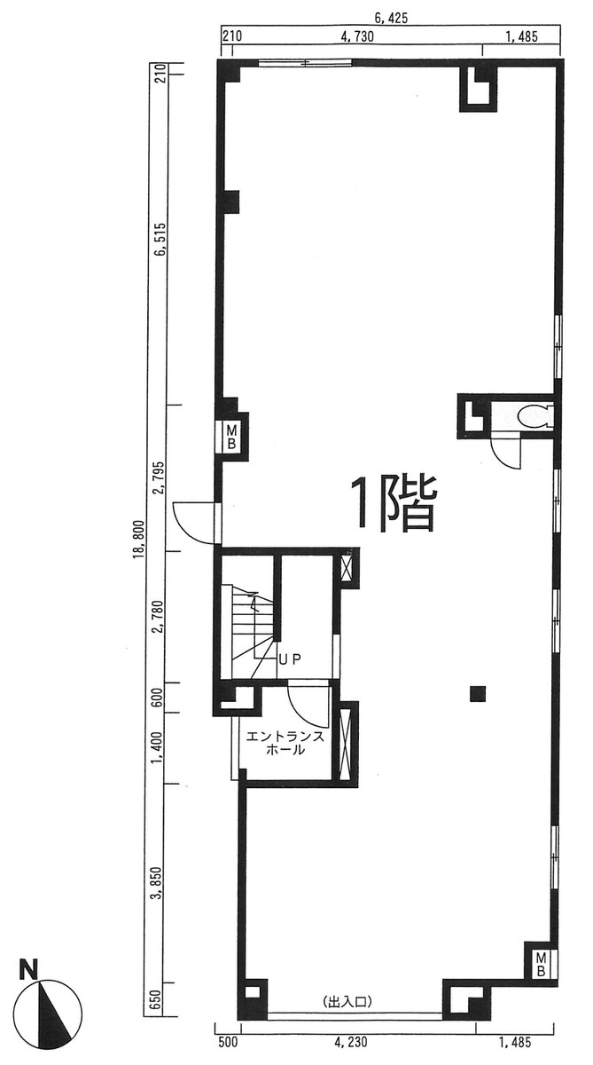
リベルタ椎名町ビルは、東京都豊島区の南長崎1丁目に位置する、2006年竣工の近代的なオフィス賃貸ビルです。このビルは、白い外壁にグレーのラインが入った洗練された外観が特徴であり、ビジネスの顔としての印象を強く残します。貸事務所としての面積は30.62~32.3坪と、同地区内の他の小規模物件と比較してもゆとりのある広さを確保しており、スタートアップ企業や少人数のチームに最適な環境を提供します。 ビルの設備面においても、リベルタ椎名町は高いスペックを誇ります。各オフィスは南向きで、自然光がたっぷりと入るため、働く環境は明るく快適です。また、セキュリティ面ではディンプルキーによる高い防犯性を備えており、入居者の安心と安全をしっかりとサポートします。階店舗部分には、テナント専用のトイレを設置しており、シンプルながらも機能的な造りがされています。 立地に関してもリベルタ椎名町は魅力的です。目白通りに面しており、視認性が良好なため、ビジネスのアクセスポイントとしても優れています。隣接するパーキング施設が2つあり、来客時の利便性も高いです。さらに、近隣には有名なスイーツ店をはじめ、寿司屋やそば屋など多様な飲食店が揃っており、ビジネスだけでなく食文化を楽しむこともできます。 このリベルタ椎名町ビルは、その高い建築品質、充実した設備、そして利便性の高い立地条件を兼ね備え、ビジネスの成長を支える最良の選択肢となることでしょう。起業家やビジネスマンにとって、ここはただのオフィススペース以上の価値を提供する場所です。そのすべてが、ビジネスの成功を後押しする環境として絶えず機能し続けるでしょう。
募集終了のテナント区画
| 階数 | 坪数 | 賃料 + 共益費 | 敷金/礼金敷金 礼金 | 検討 |
|---|---|---|---|---|
| 1階 | 32.3坪 (106.78m²) | 募集終了 | - | - |
WEB非公開物件がございます
オーナー様ご希望によるWEB非公開の物件もございます。先ずは条件などお知らせ頂けましたら、非公開物件含めピッタリのオフィスをご提案させて頂きます。具体的な物件がお決まりでない場合でも問題ございません。無理なお勧めはしておりませんので、お気軽にお問い合わせください。
ご来店も歓迎です
オフィス移転は社内・社外ともに非公開に行われることが殆どです。そのためアットオフィスでは、基本的に訪問によるコンサルティングを行っておりますが、ご来店の相談も歓迎です。
※お一人おひとりに親身にご対応させて頂きたい為、要予約とさせて頂いております。ご来店の際は先ずは上記よりご予約下さい。
読込中...
要町/千川エリアでリベルタ椎名町ビルに似た条件の物件
読込中...