※このサイトに記載がある賃貸条件は、敷金・保証金などの預かり金を除き、別途消費税がかかります。
お電話でもお気軽にお問い合わせください
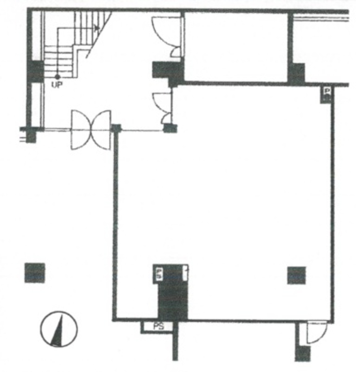
物件情報
設備詳細
| 空調 | - |
|---|---|
| トイレ | - |
| 床仕様 | - |
| エレベータ | - |
| 駐車場設備 | - |
| その他 | 新耐震基準 |
アクセスマップ
渋谷区笹塚2丁目、甲州街道沿いに誇りを持って立つ「日神デュオステージ笹塚西館ビル」は、多様なビジネスシーンに対応するSOHOおよび事務所利用が可能な現代的なマンションです。この地の特色とビルの独自性を踏まえた、魅力溢れる設備と立地は、まさに働く人々のニーズに応えるために設計されました。 立地においては、渋谷区という東京のビジネスの中心の一つに位置しつつ、甲州街道の利便性を享受できるこのマンションは、都心へのアクセスが非常に良好です。また、近隣には飲食店やコンビニエンスストア、銀行など生活に必要な施設が充実しており、ビジネスだけでなく日常生活においても便利な環境が整っています。 ビル自体の特徴として、SOHOや事務所利用が相談可能という点が挙げられます。これは、テレワークや起業家、フリーランサーなど様々な働き方をする人々にとって、大きな魅力となります。また、現代的な設計と機能性を兼ね備えたオフィス空間は、創造性と生産性を高めることに貢献します。自然光がたっぷりと入る明るいオフィス、快適な温湿度を保つ最新の空調システム、高速インターネット接続など、ビジネスをサポートするための細やかな配慮が施されています。 「日神デュオステージ笹塚西館ビル」は、ビジネスの形態を問わず、多様なニーズに応えることができる柔軟性を持つと共に、渋谷区という立地の利点と現代的な設備を併せ持つ、まさに現代の働く人々にとって理想的な環境を提供しています。このビルで新たなビジネスの舞台を築き、成功への一歩を踏み出しましょう。
募集終了のテナント区画
| 階数 | 坪数 | 賃料 + 共益費 | 敷金/礼金敷金 礼金 | 検討 |
|---|---|---|---|---|
| B1階 | 24.8坪 (83.01m²) | 募集終了 | - | - |
| 1階 | 54.14坪 (178.98m²) | 募集終了 | - | - |
WEB非公開物件がございます
オーナー様ご希望によるWEB非公開の物件もございます。先ずは条件などお知らせ頂けましたら、非公開物件含めピッタリのオフィスをご提案させて頂きます。具体的な物件がお決まりでない場合でも問題ございません。無理なお勧めはしておりませんので、お気軽にお問い合わせください。
ご来店も歓迎です
オフィス移転は社内・社外ともに非公開に行われることが殆どです。そのためアットオフィスでは、基本的に訪問によるコンサルティングを行っておりますが、ご来店の相談も歓迎です。
※お一人おひとりに親身にご対応させて頂きたい為、要予約とさせて頂いております。ご来店の際は先ずは上記よりご予約下さい。
読込中...
近くのエリアで探してみる
代々木/初台/幡ヶ谷エリアで日神デュオステージ笹塚西館に似た条件の物件
読込中...