※このサイトに記載がある賃貸条件は、敷金・保証金などの預かり金を除き、別途消費税がかかります。
お電話でもお気軽にお問い合わせください
物件情報
設備詳細
| 空調 | - |
|---|---|
| トイレ | - |
| 床仕様 | - |
| エレベータ | - |
| 駐車場設備 | - |
| その他 | 新耐震基準 |
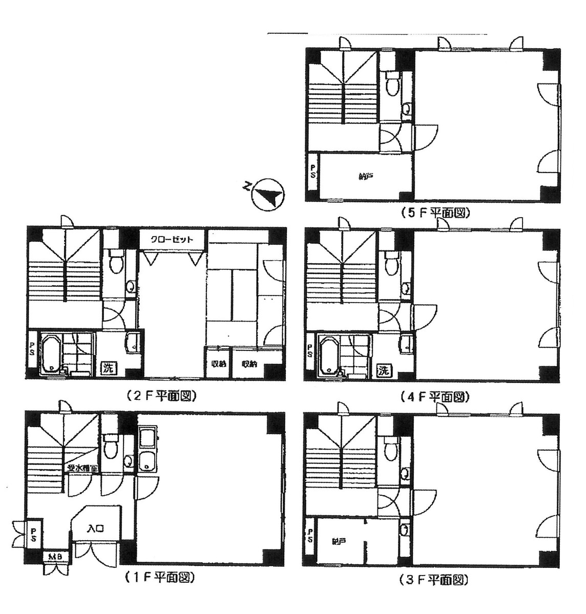
西神田センタービルは、1996年に竣工した千代田区西神田に位置する賃貸オフィスビルです。この物件は、都心の便利な立地にありながら、落ち着いた雰囲気を持つ5階建てのビルで、その外観は薄い茶色とグレーでまとめられており、シックでプロフェッショナルな印象を与えます。エレベーターがないため、各階へは階段を使用してのアクセスとなりますが、これがまたこのビル独自の特色とも言えます。一部の区画にはバスルームが備え付けられており、テナントのニーズに合わせた快適なオフィス環境を提供しています。 立地においては、白山通りから一歩入った場所に位置し、神保町駅が最寄り駅となります。また、九段下駅や水道橋駅も徒歩圏内にあり、都内各地へのアクセスが非常に便利です。周辺には飲食店や書店が点在し、徒歩1分の場所にはコンビニもあるため、ビジネスの合間に利用するのに非常に便利です。 西神田センタービルは、鉄筋コンクリート造の堅牢な構造をしており、安心して業務を行うことができます。オフィスビルとしての機能性はもちろん、周辺環境やアクセスの良さも魅力の一つです。徒歩圏内には銀行や薬局、郵便局などもあり、ビジネスをスムーズに進めるためのサポート環境も充実しています。 このビルは、ビジネスの拠点としてはもちろん、新たな事業展開を考える企業にとっても魅力的な選択肢となるでしょう。立地、設備、アクセスの良さを兼ね備え、ビジネスを成功に導くための最適な環境を提供します。西神田センタービルで、あなたのビジネスを次のレベルへと引き上げませんか?ご興味のある方は、お気軽にお問い合わせください。
募集終了のテナント区画
| 階数 | 坪数 | 賃料 + 共益費 | 敷金/礼金敷金 礼金 | 検討 |
|---|---|---|---|---|
| 1階 | 66.12坪 (218.59m²) | 募集終了 | - | - |
WEB非公開物件がございます
オーナー様ご希望によるWEB非公開の物件もございます。先ずは条件などお知らせ頂けましたら、非公開物件含めピッタリのオフィスをご提案させて頂きます。具体的な物件がお決まりでない場合でも問題ございません。無理なお勧めはしておりませんので、お気軽にお問い合わせください。
ご来店も歓迎です
オフィス移転は社内・社外ともに非公開に行われることが殆どです。そのためアットオフィスでは、基本的に訪問によるコンサルティングを行っておりますが、ご来店の相談も歓迎です。
※お一人おひとりに親身にご対応させて頂きたい為、要予約とさせて頂いております。ご来店の際は先ずは上記よりご予約下さい。
読込中...
近くのエリアで探してみる
飯田橋/神保町/水道橋エリアで西神田センタービルに似た条件の物件
読込中...