※このサイトに記載がある賃貸条件は、敷金・保証金などの預かり金を除き、別途消費税がかかります。
お電話でもお気軽にお問い合わせください
物件情報
設備詳細
| 空調 | - |
|---|---|
| トイレ | - |
| 床仕様 | - |
| エレベータ | 1 基 |
| 駐車場設備 | 空有 |
| その他 | 新耐震基準 |
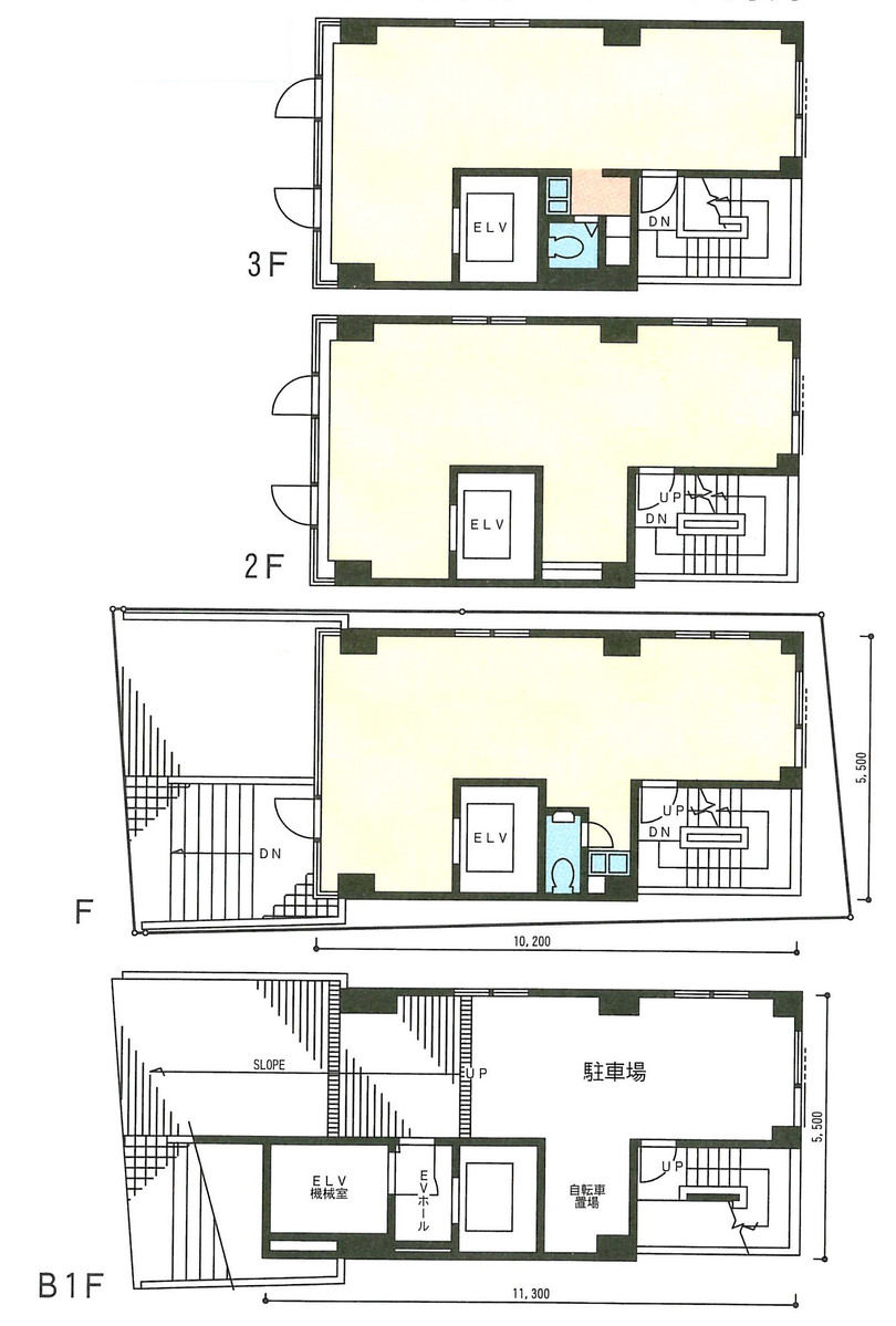
渋谷区千駄ヶ谷に位置するBarbizon63(バルビゾン63)は、そのスタイリッシュな外観と開放的な内装で、一目置かれる賃貸オフィスビルです。1991年に新耐震基準に則って建築されたこの物件は、安全性にも配慮された造りとなっており、テナント様の安心を第一に考えた設計が特徴です。さらに、ビル内には便利な駐車スペースも用意されており、3台の駐車が可能です。車通勤の方にとっては、雨の日でも濡れずにオフィスにアクセスできる、大きなメリットと言えるでしょう。 Barbizon63は、一棟貸しのオフィスビルとして、独自性とプライバシーを保ちたい企業に最適な環境を提供します。個別空調やウォシュレット付トイレ、間接照明を備えたオフィスフロアは、快適な作業空間を演出。特にアパレル業界やデザイン事務所など、クリエイティブな仕事を行うテナントには、刺激的なオフィス環境となることでしょう。 立地面では、北参道駅から徒歩約6分、代々木駅からは徒歩約7分と、アクセスの良さも魅力の一つです。新宿駅へのアクセスも容易で、ビジネスの拠点として最適な立地条件を備えています。ビルの周辺は閑静な住宅地に囲まれ、仕事に集中しつつも、穏やかな環境の中で働くことができます。徒歩1分の距離にはコンビニやカフェもあり、仕事の合間の一息にも便利です。 Barbizon63は、モダンで機能的なオフィス環境を求める企業にとって、理想的な選択肢と言えるでしょう。スタイリッシュなデザイン、快適な設備、優れた立地条件を兼ね備え、ビジネスの成功をサポートします。独自のオフィス空間を構築したいと考えている企業様は、ぜひBarbizon63をご検討ください。この先進的なオフィスビルで、新たなビジネスの可能性を広げましょう。
募集終了のテナント区画
| 階数 | 坪数 | 賃料 + 共益費 | 敷金/礼金敷金 礼金 | 検討 |
|---|---|---|---|---|
| B1階 | 58.42坪 (193.12m²) | 募集終了 | - | - |
WEB非公開物件がございます
オーナー様ご希望によるWEB非公開の物件もございます。先ずは条件などお知らせ頂けましたら、非公開物件含めピッタリのオフィスをご提案させて頂きます。具体的な物件がお決まりでない場合でも問題ございません。無理なお勧めはしておりませんので、お気軽にお問い合わせください。
ご来店も歓迎です
オフィス移転は社内・社外ともに非公開に行われることが殆どです。そのためアットオフィスでは、基本的に訪問によるコンサルティングを行っておりますが、ご来店の相談も歓迎です。
※お一人おひとりに親身にご対応させて頂きたい為、要予約とさせて頂いております。ご来店の際は先ずは上記よりご予約下さい。
読込中...
表参道/外苑前エリアでバルビゾン63ビルに似た条件の物件
読込中...