※このサイトに記載がある賃貸条件は、敷金・保証金などの預かり金を除き、別途消費税がかかります。
お電話でもお気軽にお問い合わせください
物件情報
設備詳細
| 空調 | - |
|---|---|
| トイレ | - |
| 床仕様 | - |
| エレベータ | 1 基 |
| 駐車場設備 | - |
| その他 | 光ファイバー |
アクセスマップ
徳永ビルは、台東区東上野1丁目に位置する、1971年竣工の6階建てオフィスビルです。この物件は、都営大江戸線およびつくばエクスプレスの新御徒町駅からわずか徒歩4分という、アクセスの良さが自慢です。さらに、JR山手線の御徒町駅や銀座線稲荷町駅からも徒歩10分圏内と、複数の交通手段を利用できる立地条件は、ビジネスのチャンスを広げる重要な要素と言えます。 このビルには、便利なエレベーターが1基設置されており、日々の業務における移動の利便性を考慮しています。また、1階にはリサイクルショップが入居しており、ビルの利用者だけでなく、周囲のコミュニティにも貢献しています。このようなテナントの存在は、ビルの活気をもたらし、人々を引き付ける魅力となっています。 周辺環境には、ドトールコーヒーショップや元浅草郵便局が徒歩圏内にあるなど、日々のビジネスや生活に必要な施設が充実しています。また、近隣にバス停があるため、公共交通機関を利用する際の選択肢がさらに広がります。 徳永ビルの最大の魅力は、その立地と設備のバランスの良さです。都心へ容易にアクセスできる位置にありながら、周辺は閑静なエリアであることから、ビジネスに集中するための静かな環境と、都市の利便性を兼ね備えています。このバランスは、多忙なビジネスパーソンにとって、非常に価値のある条件です。 オフィスを検討する上で、立地、設備、周辺環境はどれも重要な要素です。徳永ビルは、これら全てを満たす賃貸オフィス物件であり、ビジネスの拠点として最適な環境を提供します。このビルが、あなたのビジネスの成功に貢献できることを確信しています。徳永ビルで、新たなビジネスのステージを始めませんか?
募集終了のテナント区画
| 階数 | 坪数 | 賃料 + 共益費 | 敷金/礼金敷金 礼金 | 検討 |
|---|---|---|---|---|
| 1階 | 36坪 (119m²) | 募集終了 | - | - |
| 1階 | 22坪 (72.72m²) | 募集終了 | - | - |
| 3階 | 23坪 (76.033m²) | 募集終了 | - | - |
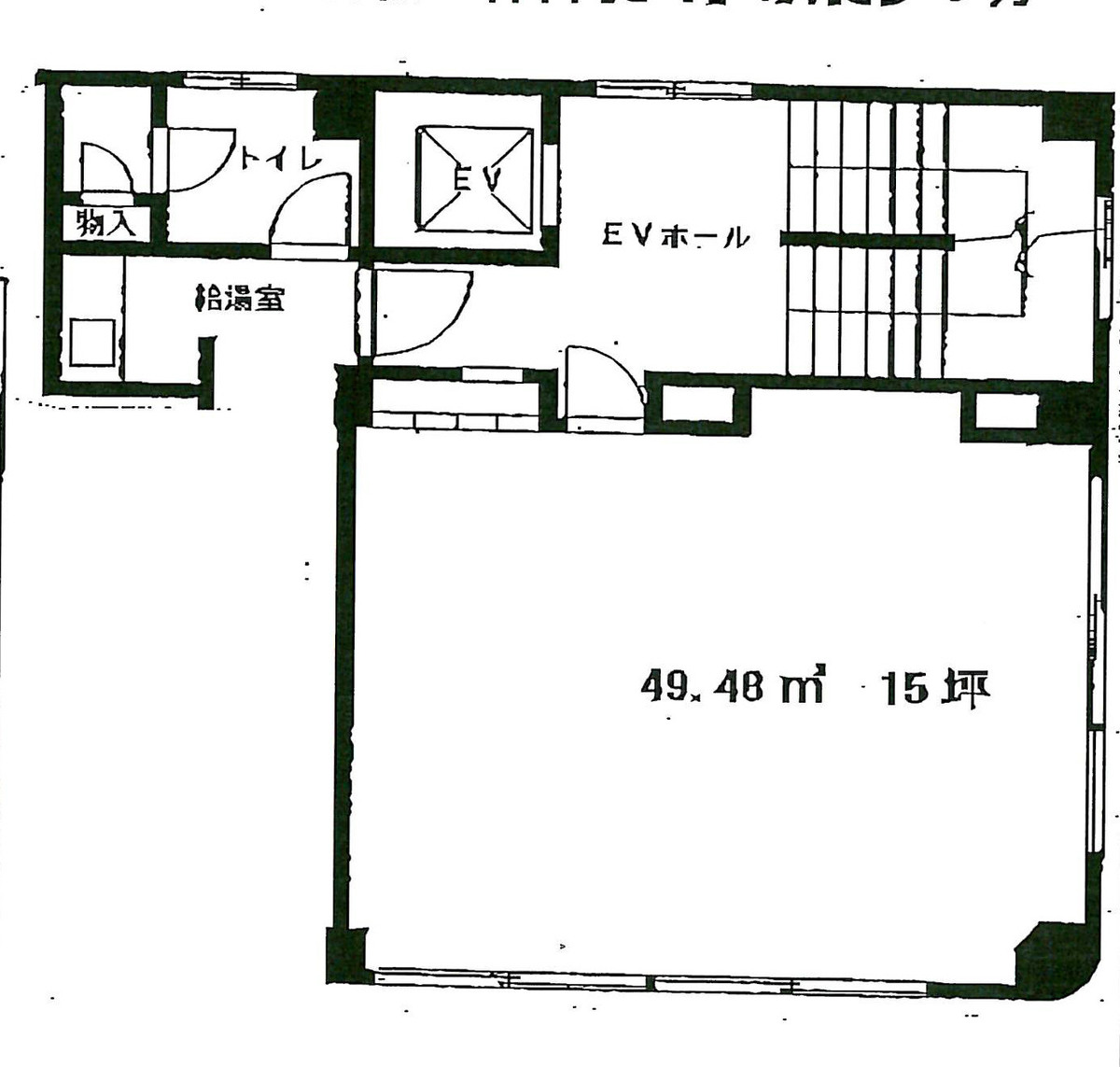
| 4階 | 15坪 (49.58m²) | 募集終了 | - | - |
WEB非公開物件がございます
オーナー様ご希望によるWEB非公開の物件もございます。先ずは条件などお知らせ頂けましたら、非公開物件含めピッタリのオフィスをご提案させて頂きます。具体的な物件がお決まりでない場合でも問題ございません。無理なお勧めはしておりませんので、お気軽にお問い合わせください。
ご来店も歓迎です
オフィス移転は社内・社外ともに非公開に行われることが殆どです。そのためアットオフィスでは、基本的に訪問によるコンサルティングを行っておりますが、ご来店の相談も歓迎です。
※お一人おひとりに親身にご対応させて頂きたい為、要予約とさせて頂いております。ご来店の際は先ずは上記よりご予約下さい。
読込中...
上野/台東/東上野エリアで徳永ビルに似た条件の物件
読込中...