※このサイトに記載がある賃貸条件は、敷金・保証金などの預かり金を除き、別途消費税がかかります。
お電話でもお気軽にお問い合わせください
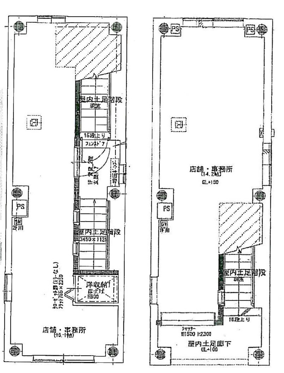
物件情報
設備詳細
| 空調 | - |
|---|---|
| トイレ | - |
| 床仕様 | - |
| エレベータ | - |
| 駐車場設備 | - |
| その他 | 新耐震基準 |
アクセスマップ
内神田ファースト112ビルは、東京の中心部、千代田区内神田1丁目に位置する、ビジネスマンのための理想的なオフィスビルです。このビルは、最先端の設備と快適なオフィス空間を提供し、あらゆるビジネスニーズに対応するために設計されました。内神田ファースト112ビルの魅力とビジネスにおける利点をご紹介します。 ### 立地の魅力 内神田ファースト112ビルは、東京のビジネスの中心地に位置しています。東京駅や大手町駅からも近く、複数の交通路線が利用可能で、東京都内はもちろんのこと、郊外へのアクセスも非常に便利です。周辺には、飲食店や商業施設が充実しており、ビジネスアフターの憩いの場としても最適です。 ### 先進的な設備 内神田ファースト112ビルは、最新のオフィス環境を求める企業に最適な選択肢です。高速インターネット接続、セキュリティシステム、最新の空調システムなど、ビジネスの効率化と従業員の快適さを追求した設備が整っています。また、災害時にも安心の耐震構造や非常用発電機も完備しており、万が一の時もビジネスの継続性を支えます。 ### 快適なオフィス空間 内神田ファースト112ビル内のオフィスは、明るく開放的な空間設計がなされており、クリエイティブな発想と効率的な業務を促進します。各オフィスは柔軟にレイアウト変更が可能で、あらゆるタイプのビジネスやチームサイズに対応できる設計になっています。快適なワークスペースで、従業員の満足度と生産性の向上が期待できます。 ### ビジネスにおける利点 内神田ファースト112ビルは、立地、設備、空間のすべてにおいて、ビジネスの成功を後押しします。中心地に位置することでクライアントとのアクセスが向上し、ビジネスチャンスの拡大が見込めます。また、最先端のオフィス環境は、企業のブランドイメージを高め、優秀な人材の確保にもつながります。 内神田ファースト112ビルは、ビジネスを次のレベルに押し上げるための理想的なステージを提供します。このビルで、新たなビジネスの成功物語を始めましょう。
募集終了のテナント区画
| 階数 | 坪数 | 賃料 + 共益費 | 敷金/礼金敷金 礼金 | 検討 |
|---|---|---|---|---|
| 1階 | 18.2坪 (60.17m²) | 募集終了 | - | - |
| 1階 | 15.67坪 (51.71m²) | 募集終了 | - | - |
| 999階 | 0坪 (0m²) | 募集終了 | - | - |
WEB非公開物件がございます
オーナー様ご希望によるWEB非公開の物件もございます。先ずは条件などお知らせ頂けましたら、非公開物件含めピッタリのオフィスをご提案させて頂きます。具体的な物件がお決まりでない場合でも問題ございません。無理なお勧めはしておりませんので、お気軽にお問い合わせください。
ご来店も歓迎です
オフィス移転は社内・社外ともに非公開に行われることが殆どです。そのためアットオフィスでは、基本的に訪問によるコンサルティングを行っておりますが、ご来店の相談も歓迎です。
※お一人おひとりに親身にご対応させて頂きたい為、要予約とさせて頂いております。ご来店の際は先ずは上記よりご予約下さい。
読込中...
神田/秋葉原エリアで内神田ファースト112ビルに似た条件の物件
読込中...