※このサイトに記載がある賃貸条件は、敷金・保証金などの預かり金を除き、別途消費税がかかります。
お電話でもお気軽にお問い合わせください
物件情報
設備詳細
| 空調 | - |
|---|---|
| トイレ | - |
| 床仕様 | - |
| エレベータ | - |
| 駐車場設備 | - |
| その他 | - |
## 立沢ビルのご紹介 # 立地 立沢ビルは、東京都台東区蔵前2丁目に位置するオフィスビルです。このエリアは、都心へのアクセスが非常に良く、ビジネス活動において理想的な立地と言えます。特に、最寄り駅である総武・中央緩行線の浅草橋駅から徒歩1分という非常に利便性の高い場所にあります。この駅からのアクセスの良さは、お客様や取引先の訪問において大きなアドバンテージとなります。 # 建物の特徴と設備 立沢ビルは、その優れた立地だけでなく、設備面でもビジネスに最適な環境を提供します。モダンなデザインと堅牢な構造が特徴で、快適な作業環境を提供します。オフィスフロアは、柔軟なレイアウトが可能で、企業の多様なニーズに対応できる設計となっています。さらに、エレベーターやセキュリティシステムも最新のものが導入されており、安全で効率的なビジネス運営をサポートします。 # ビジネスにおける利点 立沢ビルの最大の魅力は、その圧倒的なアクセスの良さにあります。浅草橋駅から徒歩1分という立地は、ビジネスパートナーやクライアントとの打ち合わせがスムーズに進み、時間的なロスを最小限に抑えます。また、周辺には飲食店やカフェ、コンビニエンスストアなどが充実しており、従業員のランチタイムや休憩時間にも困ることはありません。これにより、働きやすい環境が整っていることがわかります。 # 独自の魅力 立沢ビルのもう一つの大きな魅力は、その歴史ある台東区蔵前エリアに位置していることです。このエリアは、古き良き東京の風情と現代的なビジネス環境が融合しており、企業のブランドイメージ向上にも寄与します。さらに、浅草や上野といった観光名所にも近く、海外からのゲストを迎える際にも便利です。 # 結論 立沢ビルは、その卓越した立地、充実した設備、そしてビジネスにおける数々の利点を兼ね備えたオフィスビルです。台東区蔵前という魅力的なエリアに位置し、浅草橋駅から徒歩1分という利便性は、ビジネスを円滑に進めるための最適な環境を提供します。お客様や従業員にとって快適で便利な立地にある立沢ビルは、貴社のビジネス成功を強力にサポートします。ぜひ、この機会に立沢ビルでの新しいビジネスライフを検討してみてください。
募集終了のテナント区画
| 階数 | 坪数 | 賃料 + 共益費 | 敷金/礼金敷金 礼金 | 検討 |
|---|---|---|---|---|
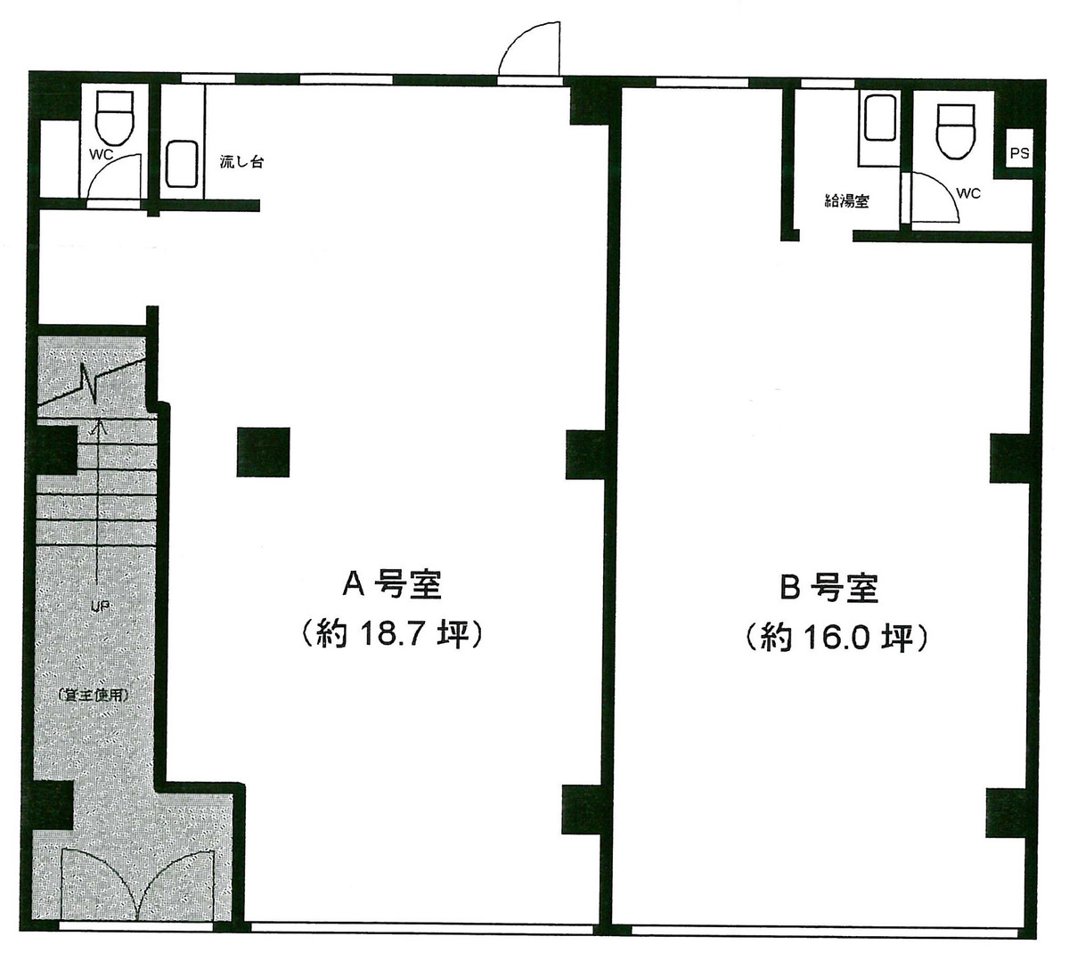
| 1階 | 18.7坪 (61.82m²) | 募集終了 | - | - |
| 1階 | 16坪 (52.89m²) | 募集終了 | - | - |
WEB非公開物件がございます
オーナー様ご希望によるWEB非公開の物件もございます。先ずは条件などお知らせ頂けましたら、非公開物件含めピッタリのオフィスをご提案させて頂きます。具体的な物件がお決まりでない場合でも問題ございません。無理なお勧めはしておりませんので、お気軽にお問い合わせください。
ご来店も歓迎です
オフィス移転は社内・社外ともに非公開に行われることが殆どです。そのためアットオフィスでは、基本的に訪問によるコンサルティングを行っておりますが、ご来店の相談も歓迎です。
※お一人おひとりに親身にご対応させて頂きたい為、要予約とさせて頂いております。ご来店の際は先ずは上記よりご予約下さい。
読込中...
浅草橋/蔵前/浅草エリアで立沢ビルに似た条件の物件
読込中...