※このサイトに記載がある賃貸条件は、敷金・保証金などの預かり金を除き、別途消費税がかかります。
お電話でもお気軽にお問い合わせください
物件情報
設備詳細
| 空調 | - |
|---|---|
| トイレ | - |
| 床仕様 | - |
| エレベータ | - |
| 駐車場設備 | - |
| その他 | - |
アクセスマップ
### 虎ノ門ビル:祐天寺の静かなエリアに位置する高度なビジネス環境 #### 立地 東京都目黒区祐天寺2丁目に位置する「虎ノ門ビル」は、東急東横線祐天寺駅からわずか徒歩3分という極めてアクセスの良い場所にあります。この利便性の高い立地により、ビジネスの拠点として非常に魅力的なオフィススペースを提供しています。 #### 建物概要 2008年に築されたこのビルは、5階建ての中規模なオフィスビルで、モダンな外観と機能的な内部構造を兼ね備えています。築年数が比較的新しいため、最新の建築技術とデザインが採用されており、ビル全体が高い品質と快適さを実現しています。 #### 設備 虎ノ門ビルには、ビジネスに必要な設備が充実しています。エレベーターはもちろん、各階にはトイレと給湯室が完備されており、日々の業務をスムーズに行うための環境が整っています。また、耐震構造を採用しているため、首都圏においても安心して業務を行うことができます。 #### 魅力と利点 このビルの最大の魅力は、その立地とモダンな設備にあります。祐天寺の静かな環境ながらも、都心へのアクセスが非常に良いため、ビジネスパーソンにとって理想的なオフィス環境と言えるでしょう。周辺にはカフェやレストランも多く、ランチタイムやアフターワークの時間を充実させることができます。 また、ビルの管理状態も非常に良く、清潔で快適なオフィススペースを提供しています。新しいテナントにとっても、すぐに業務を開始できる環境が整っている点も大きな利点です。 ### 結論 「虎ノ門ビル」は、立地と設備の両面で優れたオフィスビルです。祐天寺の静かな環境と、東急東横線祐天寺駅からの優れたアクセスを兼ね備えたこのビルは、ビジネスの成長を支える理想的な拠点となるでしょう。新たなビジネスの展開や既存の業務の拡大を検討している企業にとって、虎ノ門ビルはまさに最適な選択肢となり得ます。
募集終了のテナント区画
| 階数 | 坪数 | 賃料 + 共益費 | 敷金/礼金敷金 礼金 | 検討 |
|---|---|---|---|---|
| 1階 | 22.04坪 (72.85m²) | 募集終了 | - | - |
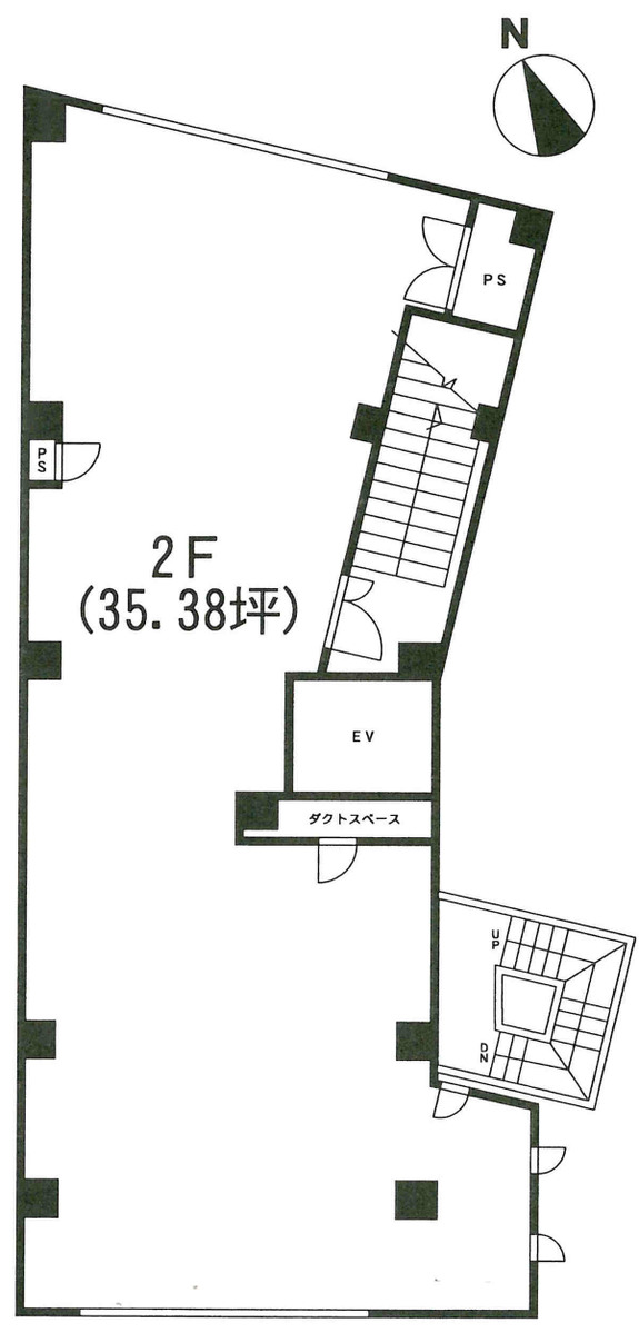
| 2階 | 35.38坪 (116.96m²) | 募集終了 | - | - |
WEB非公開物件がございます
オーナー様ご希望によるWEB非公開の物件もございます。先ずは条件などお知らせ頂けましたら、非公開物件含めピッタリのオフィスをご提案させて頂きます。具体的な物件がお決まりでない場合でも問題ございません。無理なお勧めはしておりませんので、お気軽にお問い合わせください。
ご来店も歓迎です
オフィス移転は社内・社外ともに非公開に行われることが殆どです。そのためアットオフィスでは、基本的に訪問によるコンサルティングを行っておりますが、ご来店の相談も歓迎です。
※お一人おひとりに親身にご対応させて頂きたい為、要予約とさせて頂いております。ご来店の際は先ずは上記よりご予約下さい。
読込中...
近くのエリアで探してみる
自由が丘/祐天寺/駒場エリアで虎ノ門ビルに似た条件の物件
読込中...