※このサイトに記載がある賃貸条件は、敷金・保証金などの預かり金を除き、別途消費税がかかります。
お電話でもお気軽にお問い合わせください
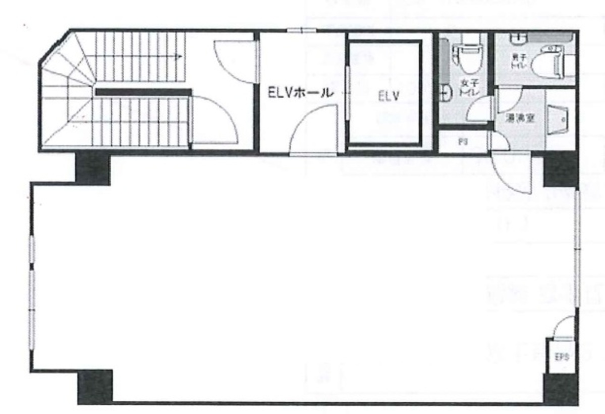
物件情報
設備詳細
| 空調 | - |
|---|---|
| トイレ | - |
| 床仕様 | - |
| エレベータ | 1 基 |
| 駐車場設備 | - |
| その他 | 機械警備 / 新耐震基準 |
アクセスマップ
【ロイクラトン麹町ビル:千代田区麹町の最先端オフィスへようこそ】 千代田区麹町に位置するロイクラトン麹町ビルの魅力をご紹介いたします。この地がビジネスチャンスに溢れ、成功への扉を開く鍵となることをお約束します。 まず、その立地について。ロイクラトン麹町ビルは、麹町駅からわずか徒歩1分という、アクセスの良さが自慢です。半蔵門駅も徒歩圏内にあり、東京都心へのアクセスはこの上なく便利。ビジネスの中心地である東京で、日々の移動がスムーズになることは、時間の節約にもつながり、効率的な仕事をサポートします。 次に、このビルの特徴ですが、築浅でレンガ調の外観が特徴的、美しく洗練されたデザインは、企業イメージを高めるにふさわしい印象を与えます。2008年に竣工したこの4階建ての建物は、約15坪の基準階坪数を誇り、2,500mmの天井高と高さ70mmのOAフロアを備え、広々としたオフィス空間を提供します。 また、個別空調、男女別トイレなどの基本設備に加え、機械警備、モニター式オートロック、エレベーター不停止機能、インターフォン、貸室扉ダブルロックなど、ビジネスをサポートする高度なセキュリティが整っています。これらの設備は、働く皆様の安心と快適を保証し、集中して仕事に取り組むことができる環境を提供します。 周辺環境も魅力の一つです。コンビニやカフェ、さらにはベルギー王国大使館が近隣にあり、日々の生活に便利さと国際色豊かな文化的な刺激をもたらします。新宿通りが近く、JR四ツ谷駅からも徒歩8分という立地は、ビジネスのみならず、生活の拠点としても最適です。 ロイクラトン麹町ビルは、その立地、設備、周辺環境のすべてが、これからのビジネスを成功に導く上で欠かせない要素を兼ね備えています。ここにオフィスを構えることで、皆様のビジネスが一段と輝く未来を創造することができるでしょう。千代田区麹町で、新たなスタートを切りましょう。
募集終了のテナント区画
| 階数 | 坪数 | 賃料 + 共益費 | 敷金/礼金敷金 礼金 | 検討 |
|---|---|---|---|---|
| 1階 | 14.5坪 (47.93m²) | 募集終了 | - | - |
| 2階 | 15.5坪 (51.24m²) | 募集終了 | - | - |
| 3階 | 15.5坪 (51.24m²) | 募集終了 | - | - |
| 4階 | 15.5坪 (51.24m²) | 募集終了 | - | - |
WEB非公開物件がございます
オーナー様ご希望によるWEB非公開の物件もございます。先ずは条件などお知らせ頂けましたら、非公開物件含めピッタリのオフィスをご提案させて頂きます。具体的な物件がお決まりでない場合でも問題ございません。無理なお勧めはしておりませんので、お気軽にお問い合わせください。
ご来店も歓迎です
オフィス移転は社内・社外ともに非公開に行われることが殆どです。そのためアットオフィスでは、基本的に訪問によるコンサルティングを行っておりますが、ご来店の相談も歓迎です。
※お一人おひとりに親身にご対応させて頂きたい為、要予約とさせて頂いております。ご来店の際は先ずは上記よりご予約下さい。
読込中...
番町/麹町/平河町エリアでロイクラトン麹町ビルに似た条件の物件
読込中...