※このサイトに記載がある賃貸条件は、敷金・保証金などの預かり金を除き、別途消費税がかかります。
お電話でもお気軽にお問い合わせください
物件情報
設備詳細
| 空調 | - |
|---|---|
| トイレ | - |
| 床仕様 | - |
| エレベータ | - |
| 駐車場設備 | 空有 |
| その他 | 新耐震基準 |
アクセスマップ
滝王子フラットビルは、品川区大井5丁目に位置する、事務所やSOHOとしての利用が可能な現代的なマンションです。この物件は2008年に竣工し、新耐震基準に基づいて施工されたことで、安全性に優れた建物としての評価が高いです。耐震性に配慮された建築は、事業の持続可能性を考える際に非常に重要な要素となります。この点、滝王子フラットビルは将来にわたって安心してご利用いただける物件と言えるでしょう。 立地に関して、品川区は東京都内でもビジネスの中心の一つとして知られており、多くの企業がオフィスを構えるエリアです。その中でも大井5丁目は、品川駅へのアクセスが良好でありながら、住宅地としての静かな環境も兼ね備えています。この地域の特性は、働き方に柔軟性を求めるSOHOやスタートアップ企業にとって、理想的な環境を提供します。また、近隣には飲食店やコンビニエンスストアなどが充実しており、日常の利便性も高い点が魅力です。 設備面では、ビル内に駐車場を完備している点が大きな特徴です。都心部では駐車スペースの確保が難しい場合が多いため、このような設備はビジネスにおいて大きな利点となります。社用車の利用や来客時の対応が容易になるため、事業運営の効率化に寄与します。空き状況については変動がありますので、詳細な情報は直接お問い合わせいただくことをお勧めします。 滝王子フラットビルは、新耐震基準に則った安全性の高さ、ビジネスエリアとしての理想的な立地、そして充実した設備を兼ね備えたマンションです。事務所やSOHOとしての利用を考えている企業や個人事業主の方にとって、この物件はビジネスの発展に適した環境を提供します。滝王子フラットビルで、新たなビジネスのスタートを切りませんか?その先に広がる可能性は、計り知れません。
募集終了のテナント区画
| 階数 | 坪数 | 賃料 + 共益費 | 敷金/礼金敷金 礼金 | 検討 |
|---|---|---|---|---|
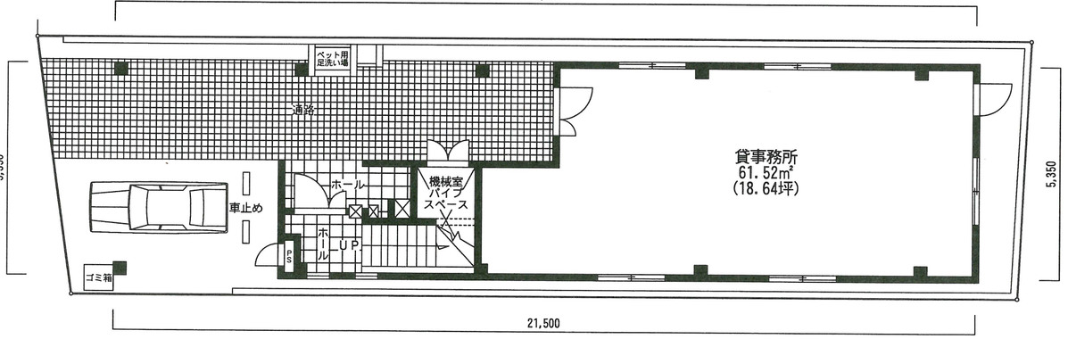
| 1階 | 18.64坪 (61.52m²) | 募集終了 | - | - |
WEB非公開物件がございます
オーナー様ご希望によるWEB非公開の物件もございます。先ずは条件などお知らせ頂けましたら、非公開物件含めピッタリのオフィスをご提案させて頂きます。具体的な物件がお決まりでない場合でも問題ございません。無理なお勧めはしておりませんので、お気軽にお問い合わせください。
ご来店も歓迎です
オフィス移転は社内・社外ともに非公開に行われることが殆どです。そのためアットオフィスでは、基本的に訪問によるコンサルティングを行っておりますが、ご来店の相談も歓迎です。
※お一人おひとりに親身にご対応させて頂きたい為、要予約とさせて頂いております。ご来店の際は先ずは上記よりご予約下さい。
読込中...
品川/大崎/大井エリアで滝王子フラットビルに似た条件の物件
読込中...