※このサイトに記載がある賃貸条件は、敷金・保証金などの預かり金を除き、別途消費税がかかります。
お電話でもお気軽にお問い合わせください
物件情報
設備詳細
| 空調 | - |
|---|---|
| トイレ | - |
| 床仕様 | - |
| エレベータ | 1 基 |
| 駐車場設備 | 空有 |
| その他 | 機械警備 / 24時間利用可 / 光ファイバー / 新耐震基準 / オートロック |
アクセスマップ
現代のビジネスシーンにおいて、企業のイメージを左右するのはその業務内容だけではありません。オフィスの立地や環境も、企業のブランド価値を高める重要な要素となります。そんな中、東京都港区赤坂5丁目にそびえ立つAUSPICE赤坂ビルは、その全てを兼ね備えた賃貸オフィスビルとして注目を集めています。 まずその立地について、AUSPICE赤坂ビルは東京の中心部、赤坂に位置しております。東京メトロ千代田線の赤坂駅からわずか徒歩3分というアクセスの良さは、ビジネスパーソンにとって非常に魅力的です。また、銀座線の溜池山王駅も徒歩8分と、2つの路線が利用可能で、東京都内各所への移動が容易です。このように、AUSPICE赤坂ビルは交通の便が良く、ビジネスチャンスを最大限に活かすことができます。 ビルの外観は、洗練されたグリーンがあしらわれ、お洒落で落ち着いた雰囲気を醸し出しています。この外観は、訪れるクライアントやパートナー企業に対して、良い第一印象を与えることでしょう。また、隣接する一ツ木公園からの眺望と充分な採光も、オフィスでの快適な作業環境を提供します。 設備面においても、AUSPICE赤坂ビルは充実した機能を備えています。高速光ファイバーによるインターネット接続、機械警備システム、そして個別空調と、現代のビジネスニーズに対応した最新の設備が整っており、企業活動をスムーズにサポートします。 視認性の高い立地にあることも、AUSPICE赤坂ビルの大きな魅力です。都道413号沿いに位置し、赤坂の交番前の角地を曲がったすぐの場所にあるため、来客時の案内が非常にしやすいです。ビジネスにおいて、クライアントやパートナー企業からのアクセスの良さは、大きなアドバンテージとなるでしょう。 このように、AUSPICE赤坂ビルは、その立地、設備、そして環境の全てにおいて、現代のビジネスニーズに応える賃貸オフィスビルです。落ち着いた雰囲気で働きたい企業や、アクセスの良さを重視する企業にとって、最適な選択肢となることでしょう。AUSPICE赤坂ビルで、あなたのビジネスを一段と輝かせましょう。
募集終了のテナント区画
| 階数 | 坪数 | 賃料 + 共益費 | 敷金/礼金敷金 礼金 | 検討 |
|---|---|---|---|---|
| 2階 | 49.53坪 (163.74m²) | 募集終了 | - | - |
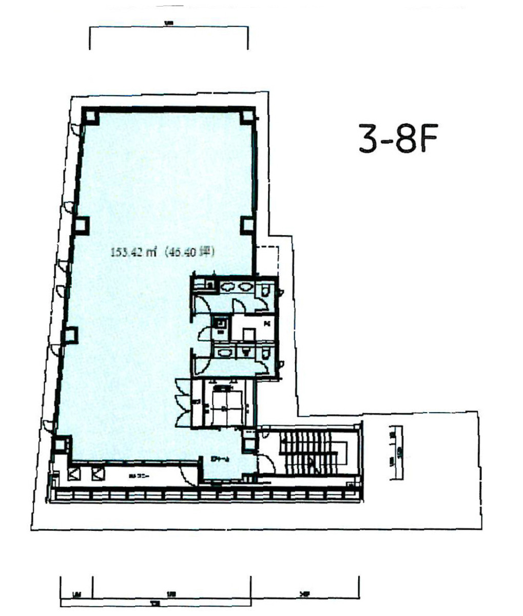
| 3階 | 46.4坪 (153.39m²) | 募集終了 | - | - |
| 4階 | 46.4坪 (153.39m²) | 募集終了 | - | - |
| 5階 | 46.4坪 (153.39m²) | 募集終了 | - | - |
| 6階 | 46.4坪 (153.39m²) | 募集終了 | - | - |
| 7階 | 46.4坪 (153.39m²) | 募集終了 | - | - |
| 8階 | 46.4坪 (153.39m²) | 募集終了 | - | - |
WEB非公開物件がございます
オーナー様ご希望によるWEB非公開の物件もございます。先ずは条件などお知らせ頂けましたら、非公開物件含めピッタリのオフィスをご提案させて頂きます。具体的な物件がお決まりでない場合でも問題ございません。無理なお勧めはしておりませんので、お気軽にお問い合わせください。
ご来店も歓迎です
オフィス移転は社内・社外ともに非公開に行われることが殆どです。そのためアットオフィスでは、基本的に訪問によるコンサルティングを行っておりますが、ご来店の相談も歓迎です。
※お一人おひとりに親身にご対応させて頂きたい為、要予約とさせて頂いております。ご来店の際は先ずは上記よりご予約下さい。
読込中...
赤坂/六本木/麻布エリアでAUSPICE赤坂ビルに似た条件の物件
読込中...