※このサイトに記載がある賃貸条件は、敷金・保証金などの預かり金を除き、別途消費税がかかります。
お電話でもお気軽にお問い合わせください
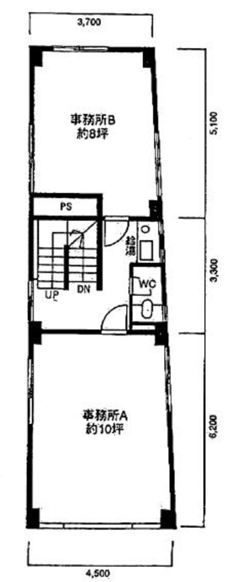
物件情報
設備詳細
| 空調 | - |
|---|---|
| トイレ | - |
| 床仕様 | - |
| エレベータ | - |
| 駐車場設備 | - |
| その他 | - |
私たちは、首都東京の中心部、港区南青山2丁目に位置する第2直樹ビルの賃貸オフィスのご紹介をさせていただきます。この地域は、洗練された都市生活とビジネスの中心地が融合する、非常に魅力的なエリアです。第2直樹ビルは、企業のブランドイメージを高めるのに理想的な立地と設備を備えています。 まず、このビルの立地についてですが、南青山2丁目はファッション、アート、グルメといった文化が息づく地域であり、国内外から高い注目を集めています。また、交通のアクセスも優れており、複数の地下鉄路線が利用可能で、都心への移動が非常に便利です。ビジネスを行う上で、クライアントや従業員にとってアクセスの良さは重要な要素です。 第2直樹ビル自体の設備についても触れておきたいと思います。最新のセキュリティシステムを完備しており、入居者の安全とプライバシーを確保しています。また、高速インターネット接続、会議室、共用エリアなど、ビジネスをスムーズに進めるための設備が整っています。これらの設備は、日々の業務を効率的に進めるために不可欠です。 ビルのデザインにもこだわりがあります。第2直樹ビルは、モダンで洗練された外観を持ち、企業のイメージアップに貢献します。内装も、働く人たちが快適に過ごせるよう、細部にわたり配慮されています。このような環境は、従業員のモチベーションを高め、クリエイティブなアイデアを生み出すためのインスピレーションを与えてくれるでしょう。 総じて、第2直樹ビルは、立地、設備、デザインの全てにおいて、企業が成長し続けるための理想的な環境を提供します。ここにオフィスを構えることで、ビジネスの可能性を広げ、新たな価値を創造するための一歩を踏み出すことができるでしょう。興味をお持ちの方は、ぜひ一度、ご覧になってみてください。
募集終了のテナント区画
| 階数 | 坪数 | 賃料 + 共益費 | 敷金/礼金敷金 礼金 | 検討 |
|---|---|---|---|---|
| 3階 | 6.73坪 (22.25m²) | 募集終了 | - | - |
| 3階 | 18坪 (59.5m²) | 募集終了 | - | - |
| 3階 | 8.86坪 (29.31m²) | 募集終了 | - | - |
| 4階 | 10坪 (33.06m²) | 募集終了 | - | - |
| 5階 | 10坪 (33.06m²) | 募集終了 | - | - |
WEB非公開物件がございます
オーナー様ご希望によるWEB非公開の物件もございます。先ずは条件などお知らせ頂けましたら、非公開物件含めピッタリのオフィスをご提案させて頂きます。具体的な物件がお決まりでない場合でも問題ございません。無理なお勧めはしておりませんので、お気軽にお問い合わせください。
ご来店も歓迎です
オフィス移転は社内・社外ともに非公開に行われることが殆どです。そのためアットオフィスでは、基本的に訪問によるコンサルティングを行っておりますが、ご来店の相談も歓迎です。
※お一人おひとりに親身にご対応させて頂きたい為、要予約とさせて頂いております。ご来店の際は先ずは上記よりご予約下さい。
読込中...
青山エリアで第2直樹ビルに似た条件の物件
読込中...