※このサイトに記載がある賃貸条件は、敷金・保証金などの預かり金を除き、別途消費税がかかります。
お電話でもお気軽にお問い合わせください
物件情報
設備詳細
| 空調 | 個別空調 |
|---|---|
| トイレ | - |
| 床仕様 | - |
| エレベータ | 1 基 |
| 駐車場設備 | - |
| その他 | 新耐震基準 / クリニック |
アクセスマップ
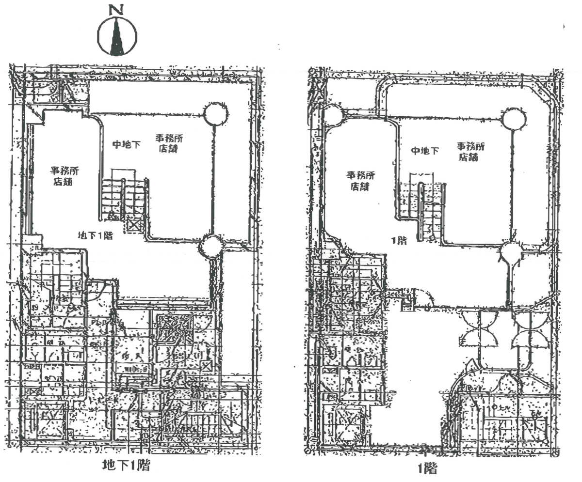
東京の中心部に位置し、ビジネスの要所とも言える神田神保町エリアに佇む「ダイナミックアート九段下ビル」は、その名の通りダイナミックな造りと独自のアート性を兼ね備えたオフィスビルです。このエリアは、多様な企業が集まり、歴史と文化が息づく場所として知られています。ビルは千代田区神田神保町3丁目、交通アクセスが非常に便利な場所に位置します。最寄りの神保町駅と九段下駅はどちらも徒歩3分という好立地にあり、複数の路線を利用できるため、都内各地へのアクセスが容易です。 ダイナミックアート九段下ビルは、地上8階・地下1階建てのオフィスビルです。外観は中央部が円柱状になっており、この地域のランドマークともなっています。ビルのエントランスを入ると、清潔感あふれるエレベーターホールがあり、1機のエレベーターがテナントの移動をサポートします。ビル内には自動販売機も設置され、テナントの利便性を高めています。 特筆すべきは、このビルがワンフロア・ワンテナント制を採用している点です。これにより、プライバシーが保たれ、自社のブランドイメージを重要視する企業にとって理想的な環境を提供します。基準階は約42坪で、L字型の間取りが特徴です。室内は個別空調システムを備え、光回線にも対応しており、快適なオフィス環境を実現します。また、1階はガラス張りになっており、店舗やショールームとしての利用も可能です。 立地面では、ビルが角地に位置しており、視認性に優れているのも魅力の一つです。周辺には集英社の神保町ビルをはじめ、コンビニ、カフェ、スーパーマーケットなどがあり、日常の買い物から食事まで、テナントのニーズを満たします。また、専大前交差点や靖国通り沿いにはランチスポットが豊富で、九段下駅周辺にも飲食店や郵便局、銀行、千代田区役所があり、ビジネス利便性が非常に高いです。 神田神保町エリアは、オフィス需要が常に高く、特に交通の便が良く、周辺環境が整った立地にあるビルは人気があります。ダイナミックアート九段下ビルは、そのような要件を満たす理想的なオフィススペースを提供しており、新たなビジネスの拠点として、または企業のブランドイメージの向上に貢献することでしょう。
募集終了のテナント区画
| 階数 | 坪数 | 賃料 + 共益費 | 敷金/礼金敷金 礼金 | 検討 |
|---|---|---|---|---|
| B1階 | 30.86坪 (102.03m²) | 募集終了 | - | - |
| 1階 | 29.95坪 (99m²) | 募集終了 | - | - |
| 2階 | 33.44坪 (110.52m²) | 募集終了 | - | - |
| 3階 | 38坪 (125.61m²) | 募集終了 | - | - |
| 3階 | 33.43坪 (110.52m²) | 募集終了 | - | - |
| 3階 | 42.25坪 (139.67m²) | 募集終了 | - | - |
| 4階 | 34坪 (112.4m²) | 募集終了 | - | - |
| 4階 | 42.25坪 (139.67m²) | 募集終了 | - | - |
| 5階 | 34坪 (112.4m²) | 募集終了 | - | - |
| 7階 | 17坪 (56.19m²) | 募集終了 | - | - |
WEB非公開物件がございます
オーナー様ご希望によるWEB非公開の物件もございます。先ずは条件などお知らせ頂けましたら、非公開物件含めピッタリのオフィスをご提案させて頂きます。具体的な物件がお決まりでない場合でも問題ございません。無理なお勧めはしておりませんので、お気軽にお問い合わせください。
ご来店も歓迎です
オフィス移転は社内・社外ともに非公開に行われることが殆どです。そのためアットオフィスでは、基本的に訪問によるコンサルティングを行っておりますが、ご来店の相談も歓迎です。
※お一人おひとりに親身にご対応させて頂きたい為、要予約とさせて頂いております。ご来店の際は先ずは上記よりご予約下さい。
読込中...
近くのエリアで探してみる
飯田橋/神保町/水道橋エリアでダイナミック・アート九段下ビルに似た条件の物件
読込中...