名古屋の駐車場ありの賃貸オフィス・賃貸事務所
検索結果 23棟52フロア
グローバルゲートは、平池町4丁目にあるオフィスビルです。ささしまライブ駅から徒歩1分の駅近物件です。名鉄名古屋駅からは徒歩10分です。2017年に竣工しました。鉄骨鉄筋コンクリート造により耐震性があります。エレベーターは10基です。個別空調のため、管理しやすくコスト削減になります。床下にケーブルを入れるOAフロアで、すっきりとした空間です。駐車場があります。周辺に飲食店やコンビニがあり、急用時も困りません。大通りに面しており、見通しの良い場所です。専門店が集まる商業地のため、利便性の良いエリアです。
名駅東は、名駅5丁目にある大型ビルです。国際センター駅から徒歩2分の駅近物件です。名古屋駅からは徒歩8分です。1995年に竣工しました。鉄骨造により耐震性があります。エレベーターは2基です。個別空調のため、管理しやすくコスト削減になります。床下にケーブルを入れるOAフロアで、すっきりとした空間です。駐車場があります。フリーレント物件のため、初期費用が抑えられます。周辺に飲食店やコンビニがあり、急用時も困りません。カーシェアリングやパーキングがあるため、車が利用しやすい環境です。裏通りですが、穏やかな広い通りです。専門店が点々とあり、駅前付近に位置するため、徒歩で利用しやすいエリアです。
SC伏見は、錦2丁目にある大型ビルです。伏見駅から徒歩1分の駅近物件です。丸の内駅からは徒歩6分です。2009年に竣工しました。鉄骨造により耐震性があります。エレベーターは2基です。個別空調のため、管理しやすくコスト削減になります。床下にケーブルを入れるOAフロアで、すっきりとした空間です。駐車場があります。周辺に飲食店やコンビニがあり、急用時も困りません。銀行に近いため、手続きが楽に済みます。カーシェアリングに近いため、車が利用しやすい環境です。大通りに位置しており、見通しの良い場所です。駅前通りのため、利便性の良いエリアです。
名古屋ルーセントタワーは、牛島町にある大型ビルです。名古屋駅から徒歩5分の駅近物件です。亀島駅からは徒歩7分です。2007年に竣工しました。鉄骨鉄筋コンクリート造により耐震性があります。エレベーターは26基です。セントラル空調のため、静かな環境で作業できます。床下にケーブルを入れるOAフロアで、すっきりとした空間です。駐車場があります。店舗や飲食店向けの物件です。周辺に飲食店やコンビニがあり、急用時も困りません。カーシェアリングに近いため、車が利用しやすい環境です。大通りに位置しており、見通しの良い場所です。駅前付近の商業地のため、移動に便利なエリアです。
エニシオ名駅は、名駅4丁目にあるオフィスビルです。名古屋駅から徒歩3分の駅近物件です。2023年に竣工しました。鉄骨鉄筋コンクリート造により耐震性に優れています。エレベーターが5基あります。床下にケーブルやコンセントを納められるOAフロアです。機械式駐車場があります。フリーレント物件です。店舗として利用できます。周辺には飲食店やコンビニ、三井住友銀行があります。近隣にはオフィスビルが立ち並んでいます。バス停や店舗ビルがある大通りに出やすいため、移動に便利なエリアです。
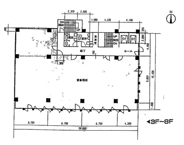
SAKAEPLACEは、中区栄3丁目にあるオフィスビルです。矢場町駅から徒歩2分の駅近物件です。栄町駅からは徒歩5分です。2007に竣工しました。エレベーターが3基あります。鉄骨鉄筋コンクリート造により耐震性に優れています。個別空調付きです。スケルトン物件です。店舗として利用できます。周辺には飲食店や専門店、イベント公園があります。近隣にはオフィスビルやショップビルが立ち並び、大通りからは少し奥まった場所ですが、常時人通りのある静かなエリアです。
グラスシティ栄は、栄3丁目にある大型ビルです。伏見駅から徒歩5分の駅近物件です。矢場町駅からは徒歩7分です。2008年に竣工しました。鉄骨造により耐震性があります。エレベーターは5基です。床下にケーブルを納められるOAフロアで、すっきりとした空間です。個別空調のため、管理しやすくコスト削減になります。駐車場があります。クリニック向けの物件です。フリーレント物件のため、初期費用が抑えられます。周辺に飲食店や専門店、コンビニがあり、急用時も困りません。パーキングやカーシェアリングに近いため、車が利用しやすい環境です。複数の駅に囲まれているため、移動に便利なエリアです。
スカイオアシス栄は、新栄町2丁目にあるオフィスビルです。栄駅から徒歩5分の駅近物件です。1997年に竣工しました。鉄骨造により耐震性に優れています。エレベーターが5基あります。床下にケーブルやコンセントを納められるOAフロアです。個別空調付きです。男女別トイレがあります。駐車場があります。周辺には飲食店や劇場、区役所があります。近隣にはオフィスビルや店舗ビルが立ち並んでいます。歩道が広くバス停のある大通りに位置するため、自転車や歩行者が利用しやすいエリアです。
広小路本町は、栄3丁目にある大型ビルです。伏見駅から徒歩5分の駅近物件です。栄駅からは徒歩7分です。1983年に竣工しました。エレベーターは3基です。セントラル空調のため、静かな環境で作業できます。床下にケーブルを入れるOAフロアで、すっきりとした空間です。周辺に飲食店やコンビニがあり、急用時も困りません。専門店や銀行に近いため、移動時間が短縮しやすいです。大通りに位置しており、見通しの良い場所です。専門店が並ぶ駅前商業地のため、徒歩で利用しやすいエリアです。
現在 1 ~ 23 棟 / 全 23 棟