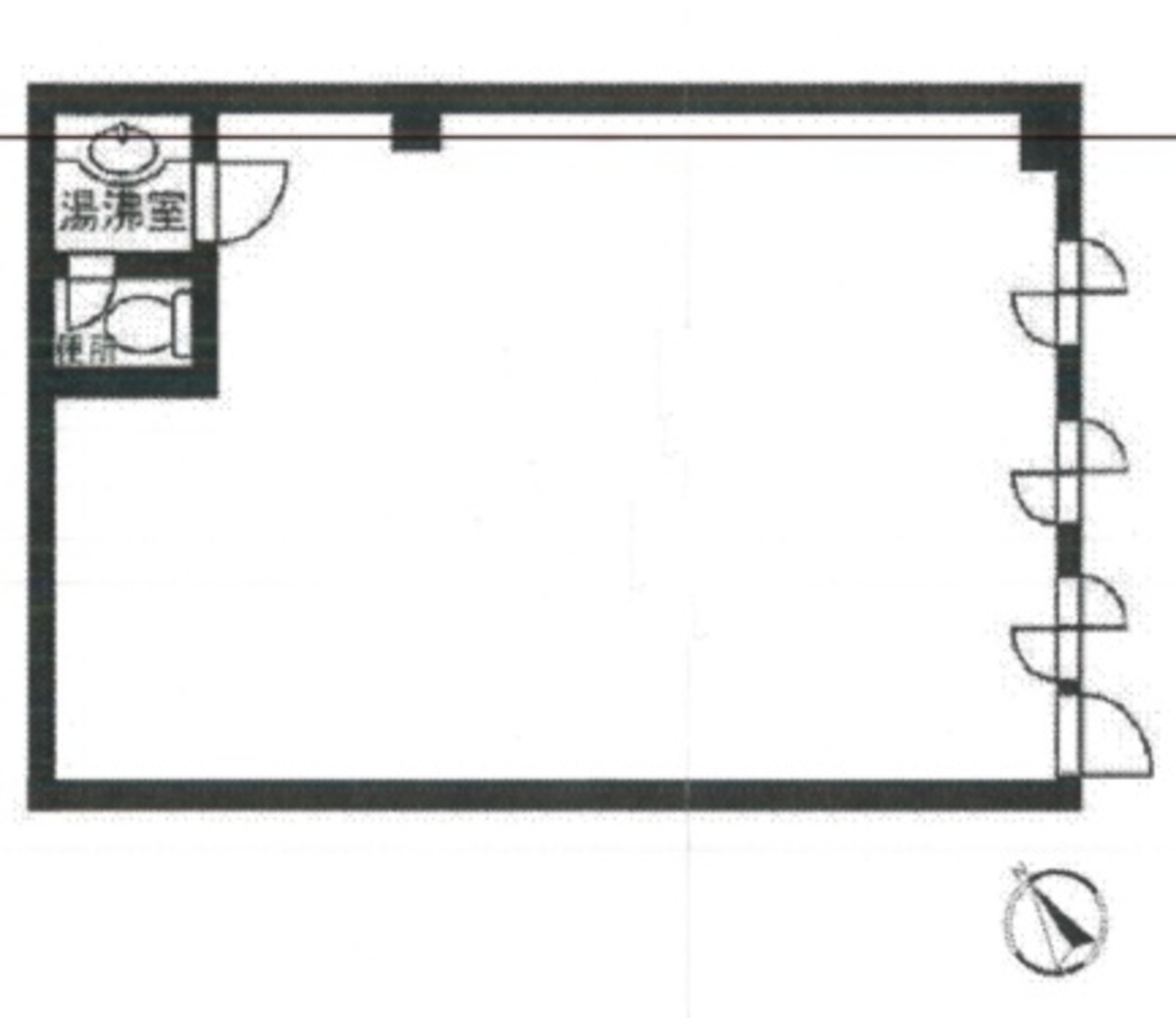
MT東池袋は、豊島区東池袋2丁目に位置する地上8階建ての建物です。荒川線「向原駅」から徒歩4分、山手線「大塚駅」および東京都荒川線「大塚駅前駅」からもそれぞれ徒歩5分の距離にあり、複数路線の駅が利用可能な立地となっています。複数の駅からのアプローチが可能なため、交通手段を選択する際に柔軟性があります。 建物にはエレベーターが1基設けられており、オフィスやその他事業用としての利用時にも上下階の移動がスムーズに行えます。基準階面積は未記載ですが、地上8階建ての構造が、用途や事業内容に応じた多様なレイアウトやフロアプランの検討を可能にします。 新耐震基準に適合している点も特徴のひとつであり、建物の計画や今後の運用を検討する際の一助となります。また、竣工は2026年2月を予定しており、今後の予定やスケジュールに合わせて入居準備を進めることができます。 東池袋エリアへの新規拠点設置や業務スペースの拡張を検討中の法人の方々にとって、立地や建物構成など、条件を確認いただく際のご参考としてご活用ください。詳細はお問い合わせください。
池袋駅の賃貸オフィス・賃貸事務所
池袋駅には、多様な業種が集まり、飲食、小売、エンタメ、オフィス、教育関連など幅広いビジネスが展開される都市型ビジネスエリアです。明治通りやグリーン大通り沿いには西武池袋本店やジュンク堂書店、劇場通り周辺には専門学校やカフェ、家電量販店などが集積しており、オフィスワーカーや学生、ビジネスパーソンの日常的な利便性が高い環境が整っています。ハレザ池袋が竣工し、駅周辺の都市インフラや文化施設、オフィス機能がさらに拡充しました。飲食業、小売業(アパレル・雑貨・家電・書籍)、映画館やカラオケなどのエンタメ施設、サブカル系店舗、学習塾やホテルが集まり、賃貸オフィス物件を探している企業や店舗運営を目指す事業者から高い需要があります。池袋駅周辺は、店舗・オフィスの双方に適したエリアで、採用やブランディング、情報発信を重視する企業が自社の拠点として選びやすい立地です。即入居可能なセットアップ物件も複数揃っており、スピーディーな事業開始や移転にも柔軟に対応できる点が支持されています。
検索結果 178棟268フロア
### 第一上州ビルのご紹介 **第一上州ビル**は、東京都豊島区千早1丁目に位置する魅力的なオフィス賃貸物件です。1992年に竣工し、新耐震基準を満たした安心の建物で、東京メトロ有楽町線と副都心線が交差する要町駅から徒歩わずか4分という好立地にあります。このため、通勤や打ち合わせにも非常に便利です。 **立地とアクセス** 千早1丁目は池袋駅の近郊に位置するため、都心へのアクセスが非常に良好です。しかし、池袋の喧騒から少し離れた閑静なエリアであるため、静かで落ち着いた環境でビジネスを展開することができます。池袋の中心地から少し離れていることで、家賃相場も比較的リーズナブルで、1坪当たり9,795円ほどです。コストパフォーマンスを重視する企業にとって、非常に魅力的な賃貸オフィスとなっています。 **設備と施設** 第一上州ビルは1機のエレベーターを備え、利用者の利便性を確保しています。貸事務所として提供される面積は約13.82~14.04坪で、小規模なオフィスを必要とする企業に適しています。各フロアには個別空調が完備されており、季節や個々のニーズに応じた快適な室内環境を保つことができます。 また、トイレと給湯室は各室内に設置されているため、共用スペースでの混雑を避けることができます。これにより、業務に集中できる環境が整っています。山手通りに面しているため、建物の視認性も高く、来訪者にとってもわかりやすい立地です。 **周辺環境** ビルの隣にはおしゃれなダイニングバーがあり、ビジネスの合間や終業後にリラックスする場として利用できます。このような周辺環境も、第一上州ビルの魅力の一つです。ビル周辺には他にも多数の飲食店やカフェが点在しており、社員のランチタイムや会食の場としても便利です。 **第一上州ビルの独自の魅力** 第一上州ビルの最大の魅力は、その立地と設備のバランスです。池袋近郊の静かな環境に位置しながら、リーズナブルな家賃で東京メトロの便利なアクセスを享受できる点が多くの企業に選ばれる理由です。また、小規模オフィスとしての使いやすさと、個別空調や室内設備の充実度もポイントです。視認性の高い立地により、初めて訪れるクライアントにも迷わず来社していただけます。 これらの特性を持つ第一上州ビルは、静かで効率的なビジネス環境を求める企業にとって、理想的なオフィス賃貸物件です。ご興味のある方は、ぜひ一度現地をご覧いただき、その魅力を実感してください。
【八大ビルのご紹介】 豊島区南池袋2丁目に位置する「八大ビル」の魅力をご案内いたします。このビルは、1973年に竣工された鉄筋コンクリート造りで、耐震性に優れた安心の構造を誇ります。池袋駅から徒歩わずか4分、東池袋駅からは7分という絶好のロケーションにあり、ビジネスに必要なアクセスの利便性を備えています。 【主な特徴】 - **位置**: 豊島区南池袋2丁目、池袋駅徒歩4分、東池袋駅徒歩7分 - **構造**: 鉄筋コンクリート造、耐震性に優れる - **設備**: エレベーター1基、個別空調、男女共用トイレ - **利用可能性**: 24時間利用可能、店舗・教室・クリニック等多目的に利用可 八大ビルは、1基のエレベーターを完備しており、スムーズな垂直移動が可能です。また、個別空調システムにより、オフィス環境を快適に保つことが出来ます。共用部分には男女共用のトイレが設けられており、使い勝手が良い設計となっています。 【ビジネス環境としての利点】 八大ビルの周辺には、飲食店や専門店、銀行などが豊富に揃っており、ビジネスのための日々の利便性が高まります。また、24時間利用が可能なため、時間を問わずビジネス活動が展開できる点も大きな魅力です。さらに、店舗や教室、クリニックとしての利用も想定されており、多様なビジネスチャンスを提供します。 【周辺環境】 ビルは裏通りに位置しておりますが、広い通りとなっており、安全かつ快適なアクセスが可能です。駅前にはパーキング施設も完備されているため、来客の方も利便性の高い訪問が望めます。 【まとめ】 池袋という賑わいの中心地にありながら、快適で安全、そして利便性高いオフィス環境を提供する八大ビル。ビジネスの拠点として、また多様な用途での利用を考える際に、ぜひともご検討いただきたい物件です。八大ビルで新たなビジネスの扉を開きましょう。
アークランドビルは東京都豊島区東池袋に位置する、戦略的な立地を誇るオフィス賃貸ビルです。東池袋の発展するビジネスエリアにあるこの物件は、企業にとって魅力的なオフィススペースを提供しています。本ビルの外観はモダンな白いタイル仕様で、清潔感とプロフェッショナルな印象を与えるデザインが特徴です。人通りが多い商業地区に位置しており、ビジネスの視認性とアクセスの良さが保証されます。 最寄り駅はJR山手線の池袋駅と、東京メトロ副都心線の東池袋駅で、どちらも徒歩圏内にあります。特に池袋駅からは徒歩約10分と、東京の主要エリアへのアクセスが非常に優れています。また、周辺には多数のバス路線も通っており、都内各所への移動が容易です。この交通の利便性は、ビジネスの拠点としての機能を最大限に発揮します。 ビルの周辺環境も魅力的で、大手家電量販店をはじめとする様々な商業施設が立ち並んでいます。ランチやアフター5の利用に便利なカフェやレストランも豊富で、ビジネス利用に限らず、様々なシーンでの利用が見込めます。 オフィス内部においても、アークランドビルは最新の設備を整え、快適な労働環境を提供しています。全フロアには高速インターネット接続を完備し、各オフィスは明るく開放感のある設計がなされています。セキュリティシステムも万全で、入退管理をはじめ、安全に配慮した管理体制が整っています。 アークランドビルは、立地、アクセス、設備、セキュリティといった点で、企業が求めるすべてを兼ね備えたオフィスビルです。ビジネスの拠点としての機能はもちろんのこと、働く従業員の満足度をも高める環境が整っているため、長期的なビジネス展開においても理想的な選択となるでしょう。アークランドビルで、あなたのビジネスを次のステージへと導いてください。
### ビル紹介文 #### 物件概要 このビルは、2021年10月にエントランスや共用部の大規模リニューアル工事が完了したばかりの最新設備を誇るデザインオフィスです。リニューアルにより、モダンで洗練された空間が提供されており、訪れるたびに高揚感を感じさせるエントランスから、ビジネスの成功をサポートする設備が整っています。 #### 特徴 ビルの内装には受付や会議室が設置されており、内装造作が施されたデザインオフィスです。受付は訪問者に対してプロフェッショナルで洗練された印象を与えると同時に、日常業務を円滑に進めるための中心的な役割を果たします。会議室も完備されており、クライアントとの打ち合わせや社内会議を効率的に行うことが可能です。これにより、ビジネス活動をスムーズに進めることができる環境が整っています。 #### 立地 このビルは、東京メトロ有楽町線の【東池袋駅】から徒歩3分という抜群の立地に位置しています。また、池袋駅も徒歩圏内であり、都内の主要なビジネスエリアへのアクセスも非常に便利です。周辺には多くの飲食店やショッピング施設があり、ランチタイムや仕事終わりのリフレッシュにも最適な環境が整っています。 #### 設備 ビル内には最新のセキュリティシステムが導入されており、24時間体制で安全を確保しています。エントランスには高性能の自動ドアと監視カメラが設置されており、セキュリティ意識の高い企業にとって理想的な環境です。さらに、共用部にはリフレッシュスペースも設けられており、従業員がリラックスできる場所も完備されています。 #### ビジネスの利点 このビルの最大の魅力は、その洗練されたデザインと便利な立地にあります。内装造作付のオフィススペースは、即座にビジネスを開始することができるため、新規事業の立ち上げやオフィスの移転を検討している企業にとって非常に有利です。また、リニューアルされた共用部は、社員のモチベーション向上にも寄与し、働きやすい環境を提供します。 さらに、東池袋駅から徒歩3分、池袋駅も徒歩圏内という立地は、ビジネスパートナーやクライアントの訪問にも便利です。周辺には多くの商業施設や飲食店が立ち並び、ビジネスの合間にリラックスする場所も豊富にあります。 このビルは、洗練されたデザイン、便利な立地、充実した設備の三拍子が揃っており、ビジネスを成功に導く理想的な環境を提供します。新しいオフィススペースとして、ぜひご検討ください。
清水ビルは、東京都豊島区東池袋1丁目に位置する賃貸オフィスビルで、1980年に竣工されました。このビルは、主に小規模から中規模の企業向けのオフィススペースを提供しており、基準階の面積は約25坪です。オフィスの形状は長方形に近く、柔軟なレイアウトが可能であるため、様々な業種の企業が活用しやすい設計となっています。 設備面では、エアコン、専用トイレ、給湯設備が完備されており、快適な労働環境を提供します。また、ビル内には1基のエレベーターが設置されており、円滑な移動を支援します。 立地においては、清水ビルの最大の魅力はそのアクセスの良さにあります。JR池袋駅の東口から徒歩約4分という近さで、JR線だけでなく、地下鉄や私鉄の各路線も利用可能です。これにより、東京都内主要エリアや横浜方面、埼玉方面へのアクセスが非常に便利です。ビジネスの拠点として、多方面への移動が頻繁な企業にとっては理想的な立地条件を備えています。 周辺環境も非常に充実しています。ビルの近隣には多様な飲食店があり、ランチやアフター5の利用に便利です。また、複数の銀行支店が存在し、金融関連の用事も容易に済ませることが可能です。さらに、コンビニや郵便局、商業施設が周辺に点在しており、日々の業務に必要な買い物や手続きがスムーズに行えます。 清水ビルは、その立地の利便性、充実した設備、そして周辺環境の豊富さを兼ね備え、多様なビジネスニーズに応えることができる賃貸オフィスビルです。小規模から中規模の企業が市内中心部でビジネスを展開するための最適な環境を提供します。是非ともこの機会に、清水ビルでのオフィスライフをご検討ください。
**恩田ビルの紹介文** 恩田ビルは東京都豊島区西池袋1丁目に位置する、優れたオフィス賃貸物件です。池袋駅から徒歩1分という抜群のアクセスを誇り、JR山手線、JR埼京線、東京メトロ丸ノ内線、東京メトロ有楽町線、東京メトロ副都心線など、複数の主要路線が利用可能です。この巨大ターミナル駅へのアクセスの良さが、恩田ビルの大きな魅力の一つとなっています。 **立地と周辺環境** 恩田ビルは、賑やかな商業地である池袋駅の北口から徒歩1分の位置にあります。周辺には百貨店やショッピングモール、飲食店、コンビニエンスストアなど、様々な商業施設が立ち並び、利便性に優れた環境が整っています。特に、東武百貨店やルミネ池袋、ビックカメラなどの大型店舗が近くにあり、ビジネスだけでなく、ショッピングやランチタイムも楽しめます。 **建物の概要と設備** 恩田ビルは1972年に竣工された地上8階建て、地下3階の鉄骨鉄筋コンクリート造のビルです。耐震性に優れた構造で、安心して利用いただけます。ビル内には10人乗りのエレベーターが1基設置されており、エントランスは全日7:00~20:30の間開放されています。貸室内はタイルカーペット仕様で、個別空調が完備されています。また、トイレは室外にあり、男女別となっているため、レイアウト効率の良いオフィス空間が実現されています。 **オフィスの特性と利用形態** 恩田ビルの貸室は、スケルトン状態での提供となっており、店舗としての利用も可能です。基準階は約77坪の広さがあり、分割区画も豊富なので、約10坪から40坪まで様々な規模のオフィススペースを選択することができます。大きな窓面が採光を確保し、明るい室内環境を提供します。特に視認性・採光性に優れた角地に位置しているため、事務所や店舗として多目的に利用することが可能です。 **周辺施設と利便性** ビル周辺にはセブン-イレブン池袋西一番街店が約120メートル(徒歩約2分)、三井住友銀行池袋支店が約260メートル(徒歩約3分)、セブン-イレブン池袋2丁目劇場通り店が約300メートル(徒歩約4分)、池袋郵便局が約350メートル(徒歩約5分)といった便利な施設が揃っています。また、昔ながらの商店街も近くにあり、日常の買い物にも困りません。 **ビジネスにおける利点** 恩田ビルはその立地の良さから、人の流れが多く集客力が高い場所に位置しています。特に飲食店やクリニックなどが入居しており、ビジネスの展開には最適です。また、池袋駅という交通の要所に近いため、従業員や顧客のアクセスも非常に便利です。昼夜問わず賑やかな環境で、ビジネスチャンスも豊富にあります。 恩田ビルは、立地、耐震性、利便性、そして多様な用途に対応できるフレキシブルなオフィス空間を提供する、非常に魅力的な物件です。ビジネスの成功を目指す皆様に、ぜひご検討いただきたい一棟です。
ヨシフジビルは東京都豊島区東池袋に位置する、1992年竣工の地上10階建ての賃貸オフィスビルです。このビルは、都心へのアクセスと周辺の充実した施設が魅力の一つです。具体的には、池袋駅から徒歩8分、東池袋駅からは徒歩5分という利便性の高い立地にあります。 ヨシフジビルの特徴は、一階にセキュリティロック付きのエレベーターが1基設置されており、各階へのアクセスがスムーズです。また、オフィスは24時間利用可能で、ビジネスの多様なニーズに応える設計となっています。各オフィスフロアは約20坪の広さで、内装にはトイレや給湯設備が完備され、プライバシーと利便性を保ちつつ快適なワークスペースを提供します。 このビルの立地は、春日通りに面しており、周辺にはスーパーや飲食店、コンビニ、郵便局などが徒歩圏内にあります。これにより、日々の業務だけでなく、社員の生活面でも大変便利です。また、徒歩1分の場所にはセブンイレブンがあり、緊急時の買い物にも対応でき、ビジネス環境をさらにサポートします。 ビルの外観は、落ち着いたピンク色で、訪れるクライアントにも好印象を与えます。エントランスは石張りで、重厚感がありますが、同時に清潔感と安心感を提供し、ビジネスの場としての品格を高めています。 ヨシフジビルは、耐震性にも優れているため、安心して業務を行うことができます。さらに、各オフィス内の採光は十分に確保されており、明るく快適なワーキングスペースを実現しています。 以上のように、ヨシフジビルは、立地の利便性、機能的な設備、そして快適なオフィス環境を兼ね備えた、ビジネスに最適な賃貸オフィスビルです。この優れた環境で、あなたのビジネスを一層発展させることが可能でしょう。是非、一度内見にお越しください。
池袋シティハイツは、東京都豊島区南池袋3-18-34に位置する、1989年竣工の10階建てマンションです。この物件は、SOHOや事務所としての利用が可能であり、美築かつオートロックシステムによる高いセキュリティ環境が整っています。各部屋は24.06㎡から39.66㎡の範囲で、特に小規模な企業やクリニックとしての利用に適しています。 立地としては、東池袋駅から徒歩5分、池袋駅から徒歩7分というアクセスの良さが魅力です。池袋は東京の中でも交通の便が良く、多くの路線が交差する交通のハブとしても知られています。そのため、ビジネスの拠点としては非常に効率的な立地と言えるでしょう。 物件のデザインにはモダンなグレーの外観が採用されており、階段状に設計された外壁は、どの部屋からも充分な採光を確保する工夫が施されています。このようなデザインは、都市型生活において心地よい居住空間を提供します。また、エレベーターが1機設置されていることも、日々の利便性を高めています。 セキュリティ面では、オートロックシステムと機械警備が導入されており、入居者の安全をしっかりと守ることができる設計となっています。これは、事務所ビルとしてはもちろん、クリニック等の運営においても大きなメリットです。 内装に関しても、長方形型のレイアウトが基本となっており、利用者が自由に空間をアレンジできる柔軟性を持っています。広いバルコニーが付いた部屋では、開放感ある環境を楽しむことが可能です。また、各部屋は清潔に保たれ、管理が行き届いているため、訪問客を迎える際も好印象を与えることができます。 池袋シティハイツは、その立地、設備、デザインの全てにおいて、ビジネス利用に最適な条件を備えたマンションです。小規模ながらも高機能を誇るこの物件は、新しいビジネスの拠点として、またはクリニックとしての利用を検討している方にとって、最良の選択肢となるでしょう。
カドラービルは、東京都豊島区南池袋1-1-11に位置する魅力的なオフィス賃貸ビルです。1993年に竣工されたこのビルは、新耐震基準に準拠しており、安全性の高い環境でビジネスを行うことができます。明治通り沿いに立地しており、交通アクセスの利便性に優れています。最寄りの池袋駅からは徒歩8分、目白駅からもアクセス可能で、周囲には東京音大、川村学園、学習院大学など複数の教育機関があり、文教地区としての落ち着いた雰囲気を楽しむことができます。 ビルの特徴として、24時間利用可能なセキュリティシステムが整っており、機械警備による安全対策も万全です。オフィス内は光が豊富に差し込む設計となっており、天井高は2.4mと広々として使い勝手が良いです。また、各階には個別のトイレが設置されており、プライバシーが保たれます。 カドラービルの大きな魅力の一つは、上階からの眺望の良さです。窓からは学習院大学の緑豊かなキャンパスが一望でき、遠くには西新宿の高層ビル群を望むことができます。このような環境は、オフィスで働く従業員のストレスを軽減し、クリエイティブなアイデアを促進する効果があります。 周辺環境としては、ビルの前面にセブンイレブン、徒歩1分の場所にローソンストア100があり、日々の買い物には困りません。また、雑司が谷駅からも徒歩6分というアクセスの良さで、池袋の繁華街や他のビジネスエリアへの移動もスムーズです。 カドラービルは、その安全性、利便性、快適なオフィス環境を求める企業にとって理想的な選択肢です。ビジネスの拠点としてだけでなく、社員が気持ちよく働ける場所としても最適な環境を提供します。池袋でオフィスをお探しの方には、ぜひカドラービルをご検討いただきたいと思います。
西羅様事務所ビルは、豊島区高松3丁目に位置するオフィスビルです。最寄りの交通機関としては、有楽町線「千川駅」から徒歩9分、東上本線「大山駅」から徒歩13分、東京地下鉄有楽町線「要町駅」から徒歩14分の距離にあります。複数の駅が利用可能なため、通勤経路を選択できる点が特徴です。 建物は、周辺の住宅街や商業施設が点在するエリアに立地しており、落ち着いた環境の中で事務所利用が可能です。周囲は歩道が整備されており、通勤や来客の際も移動しやすい環境が整っています。近隣の施設を活用することで、働く方の生活利便性にも配慮されています。 西羅様事務所ビルは、法人のオフィス利用を想定した建物であり、拠点づくりや新たな事業展開の場としてご検討いただけます。詳細はお問い合わせください。
豊島区東池袋に位置する第一主田ビルは、1988年に竣工された賃貸オフィスビルです。この物件は、池袋駅及び東池袋駅から徒歩約7分の場所にあり、アクセスの良さが魅力の一つです。JR線、東京メトロ、私鉄各線が利用可能で、都内各地への移動が容易なため、ビジネスの拠点として最適です。 ビルの基準階は約25坪で、効率的なオフィスレイアウトが可能な長方形に近いシンプルな形状をしています。オフィス内には2箇所のトイレが備え付けられており、快適な職場環境を提供します。また、ビル内には1機のエレベーターが設置されており、スムーズな移動が期待できます。 外観は石造りのシンプルなデザインで、洗練された印象を与えます。周辺環境も非常に充実しており、近くにはサンシャインシティをはじめ、コンビニエンスストア、郵便局などが徒歩圏内にあります。これにより、日常の買い物や用事も容易に済ませることができます。 第一主田ビルの立地する東池袋エリアは、ビジネスだけでなくショッピングやエンターテインメントの場としても人気が高く、多様な業種の企業に適した環境です。ビルの近くには東池袋中央公園もあり、休憩時間に散歩を楽しむことができるなど、働く人々のQOL(クオリティ・オブ・ライフ)向上にも寄与します。 このように、第一主田ビルは利便性、機能性、快適性を兼ね備えたオフィスビルとして、企業活動をサポートするための理想的な環境を提供します。立地の良さと充実した周辺施設が、ビジネスの成功を後押しすることでしょう。
OKビルは、東京都豊島区南池袋3丁目に位置する賃貸オフィスビルです。本ビルは1987年に竣工された耐震構造のオフィスビルであり、24時間利用が可能です。ビルの外観はグレーパネルで覆われており、都市のオフィスエリアに適したモダンな印象を与えます。ビルの立地としては、池袋駅から徒歩5分という非常に便利な位置にあります。これにより、日々の通勤だけでなく、ビジネスパートナーやクライアントとのアクセスも容易です。 OKビルの最大の特徴は、その開放的な窓面にあります。自然光がたっぷりと入ることで、オフィス内は明るく快適な作業環境を提供します。このような環境は、従業員の士気と生産性の向上に寄与することが期待されます。また、1階に位置するテナントは、ビルの顔としても機能し、来訪者にとって明確なランドマークとなります。 さらに、OKビルは一方通行の東通りに面しており、周辺が商店街として賑わっているため、ビルの周囲には常に活気があります。周辺には多様な飲食店が豊富に揃っているため、ビジネスランチやアフター5の利用にも困りません。また、住居や他のオフィスビルに囲まれた地域であるため、ビル内は落ち着いた環境で仕事に集中することが可能です。 ビル内の設備として、エレベーターは1機設置されており、ビルの機能性を支えています。ビル全体として、綺麗に原状回復された室内は、新たなテナントにとっても魅力的な条件となるでしょう。 最終的に、OKビルはその立地、設備、そして周辺環境のバランスが取れた賃貸オフィスビルとして、多様なビジネスのニーズに応えることができるオフィススペースです。閑静ながらも都市の中心に位置するこのビルは、ビジネスの拠点としてだけでなく、成長を目指す企業にとっても理想的な環境を提供します。是非、OKビルで新たなビジネスのスタートを切ってみてはいかがでしょうか。
【第2シャンボールビル】は、東京都豊島区に位置する池袋エリアの中心地にあり、非常に利便性の高い立地条件を誇る物件です。ロサ会館近くに位置し、池袋郵便局交差点からも徒歩圏内という、商業活動やビジネスに最適な場所にあります。また、最寄りの山手線「池袋」駅から徒歩5分という好アクセスが魅力で、交通の便も非常に良好です。 本ビルは多様な用途に対応可能となっており、特に店舗利用に適しています。そのため、飲食店、サービス業、物販店など、さまざまな業種の方々にとって魅力的な選択肢となるでしょう。ビル自体の集客力が強いため、新規ビジネスを始めるには理想的な環境が整っています。 【第2シャンボールビル】の施設・設備面も充実しており、最新のセキュリティシステムやエレベーター、空調設備などが揃っているため、テナント様が安心してビジネスを運営できる環境が提供されています。また、周辺には多くの飲食店や商業施設が立ち並んでおり、業務後のリフレッシュや商談の場としても利用しやすい場所です。 さらに、池袋エリアは東京の主要なビジネスエリアの一つであり、多くの企業が集まる場所でもあります。このため、ビジネスパートナーとのアクセスが容易であり、新たなビジネスチャンスを生み出しやすい環境が整っています。加えて、池袋駅は山手線のみならず、複数の地下鉄・JR線が乗り入れており、都内外へのアクセスも非常に優れています。 【第2シャンボールビル】は、その立地と設備の充実さから、多くのビジネステナント様にとって理想的な物件と言えるでしょう。ビジネスの拠点として、この物件の魅力をぜひご検討いただきたいと思います。お気軽に業種やご利用方法についてご相談ください。ビジネスの成功をサポートするために、最適なプランをご提案いたします。
## 第33東京ビルのご紹介 ### 序文 皆様本日は、豊島区北大塚二丁目に位置する「第33東京ビル」をご紹介いたします。駅近の便利な立地とレトロな雰囲気が魅力のこのオフィスビルは、ビジネスに最適な環境を提供します。さあ、詳細を見ていきましょう! ### 立地 第33東京ビルは、JR山手線の大塚駅から徒歩わずか3分という絶好のロケーションにあります。池袋へのアクセスも良好で、電車でわずか3分程で行けるため、通勤やビジネスの移動に非常に便利です。大塚駅周辺は小規模なホテルや飲食店が豊富で、遠方からのお客様を迎える際にも便利なエリアです。 ### 特徴 1978年に竣工した第33東京ビルは、白いタイル張りの外観が特徴です。レトロな雰囲気が漂うこのビルは、地上6階、地下1階建ての小規模な貸事務所です。全体の利用可能面積は58.86坪で、フロアを分割して小規模な事務所としても利用可能です。これにより、スタートアップや小規模な企業にも柔軟に対応できる物件となっています。 ### 設備 第33東京ビルは基本的なオフィス機能をしっかりと備えています。光ファイバー対応で高速インターネットも利用可能。また、24時間利用可能なため、業務時間に制約がありません。ただし、エレベーターと執務スペースが直結しているため、レイアウトには工夫が必要です。視認性も良好とはいえませんが、その分リーズナブルな賃貸相場が魅力です。 ### 周辺環境 北大塚二丁目は、リーズナブルな賃貸相場と豊富な貸事務所の需要で知られています。駅前には飲食店やコンビニエンスストアも多く、ランチタイムやアフターファイブのリフレッシュにも最適です。池袋へのアクセスが良いため、ビジネスの幅も広がります。 ### ビジネスにおける利点 第33東京ビルは、その立地とリーズナブルな賃貸相場から、コストパフォーマンスに優れたオフィスビルとして評価されています。駅近のため、通勤やビジネスミーティングの際の移動もスムーズ。さらに、周辺には小規模なホテルや飲食店が多く、来客対応にも便利です。特に来客型のビジネスには最適な環境と言えるでしょう。 ### 結論 第33東京ビルは、レトロな雰囲気と便利な立地、そしてリーズナブルな賃貸相場が魅力のオフィスビルです。スタートアップや小規模な企業にとって、非常に使い勝手の良い物件です。大塚駅から徒歩3分という立地の良さと、池袋への簡単なアクセスも大きなメリットです。ぜひ一度、ご覧になってください。 お問い合わせや内覧のご予約は、お気軽にご連絡ください。皆様のお越しを心よりお待ちしております!
豊島区東池袋に位置する「池袋FNビル」は、洗練されたデザインと機能性を兼ね備えた賃貸オフィスビルです。建物は重厚なグレーの石造りで、大小様々な窓がデザインされており、外観からもその質の高さが伺えます。ここでは、その特徴や設備、立地条件を詳細に解説し、ビジネスの場としての魅力をお伝えします。 # 特徴 池袋FNビルは、耐久性と美観を考慮したグレーの石造りが特徴です。各フロアには大小異なる窓が設けられており、自然光がたっぷりと入ることでオフィス内が明るく快適な環境になっています。また、エントランスには高級感溢れる大理石が使用されており、訪れる客人に良い第一印象を与えます。 # 設備 ビル内には2機のエレベーターが完備されており、スムーズな移動を実現しています。さらに、機械式駐車場が設けられているため、テナントの方々が車で通勤される際にも便利です。安全性と利便性を考慮した設備が整っており、ビジネスの効率化を支えます。 # 立地 池袋FNビルは、池袋駅からアクセス可能な位置にありながら、駅チカ物件と比べて低コストで利用できるという大きな利点があります。池袋は東京の主要なビジネスエリアの一つであり、多くの企業が集まる地域です。周辺には帝京平成大学もあり、学生や教職員が日常的に行き来しているため、人通りも多く賑わいがあります。 # ビジネスにおける利点 このビルの立地と設備は、テナント企業にとって大きなメリットをもたらします。駅から少し離れていることで、都心部の賃料の高騰から逃れつつ、池袋という大きな交通ハブを活用できるため、従業員やビジネスパートナーのアクセスも容易です。また、デザイン性の高い建物は企業のブランドイメージ向上にも寄与し、良好なビジネス環境を提供します。 池袋FNビルは、機能性とコストパフォーマンスを兼ね備えた理想的なオフィススペースです。ここでは、企業活動がより効率的で快適に行えるよう設計されており、あらゆるビジネスの成長を支援する環境が整っています。
江戸屋は、豊島区北大塚3丁目に位置し、荒川線「大塚駅前駅」や山手線「大塚駅」から徒歩4分、さらに「巣鴨新田駅」も徒歩5分で利用できます。複数路線が利用できるため、通勤や来客時の移動もしやすい環境です。 建物は地上5階地下1階建てで、エレベーターが1基設置されています。24時間利用可能なため、業種や業態を問わず、さまざまな働き方への対応が可能です。 用途に合わせて柔軟に活用できる環境ですので、事務所やバックオフィスなど、業務内容に合わせたレイアウトや運用がしやすい建物です。
池袋イースタンビルは、東京都豊島区東池袋に位置する魅力的な賃貸オフィスビルです。1987年に竣工されたこのビルは、9階建てで、基準階は約42坪の広さを有しています。オフィススペースとして最適なこの物件は、明治通り沿いの好立地にあり、池袋駅からは徒歩わずか5分というアクセスの良さが自慢です。 ビルの設備面では、セキュリティが充実しており、機械警備システムが導入されています。これにより、テナントは安心して業務に専念することが可能です。また、エレベーターは1基設置されており、効率的なビル内の移動をサポートします。空調は個別空調システムを採用しており、各テナントが快適な室温を自由に調整できます。 内装については、清潔感があり、長方形の形状でレイアウトしやすいオフィス空間が提供されます。共用部には男女別のトイレが完備されており、快適な使用が期待できます。また、窓からは池袋の街並みを望むことができ、開放感あふれる労働環境を実現しています。 立地の面では、池袋イースタンビルは多くの商業施設や飲食店が立ち並ぶ繁華街に存在します。近隣にはコンビニエンスストア、家電量販店、飲食店などが豊富にあり、ビジネス後のリフレッシュや客先との打ち合わせ場所としても困ることはありません。さらに、ビルの前には明治通りがあり、タクシーやバスなどの公共交通アクセスも良好です。 池袋イースタンビルは、その立地の利便性、機能的な設備、快適なオフィス環境を兼ね備え、多様なビジネスニーズに対応する理想的なオフィススペースを提供します。これらの特長は、テナントの業務効率を高め、ビジネスの成功を支える重要な要素となるでしょう。池袋イースタンビルで、あなたのビジネスを次のステージへと導いてみてはいかがでしょうか。
木場ビルは、東京都豊島区池袋2丁目に位置するSOHO・事務所利用が可能なマンションであり、その多機能性と利便性から注目を集めています。この建物は、新耐震基準に適合しており、最新の地震対策が施されているため、安全性が高い点が大きな特徴です。 アクセス面では、JR山手線池袋駅から徒歩6分という優れた立地にあり、ビジネスの拠点としての利用に最適です。池袋駅は東京メトロや東武東上線、西武池袋線など複数の路線が交差するターミナル駅で、多方面へのアクセスが容易です。そのため、通勤や来客の際の交通の便も非常に良好です。 木場ビルの内部には、SOHOや事務所としての利用が想定された設計が施されています。広々としたレイアウトにより、業務効率が向上しやすく、快適な作業環境を提供します。マンションタイプのため、ビジネスだけでなく、住居としての利用も可能です。この二重の利用方法は、特にスタートアップ企業やフリーランサーにとって、コストパフォーマンスの高い選択肢となります。 周辺環境も非常に充実しており、池袋駅周辺には多くの商業施設や飲食店、金融機関が立ち並んでいます。ビジネスに必要な各種サービスを徒歩圏内で揃えることができるため、効率的な業務運営が可能です。また、緑豊かな公園などのリラクゼーションスポットも近くにあり、仕事と休息のバランスを取りやすい環境が整っています。 設備面では、エレベーターやセキュリティシステムが充実しており、安心して業務に集中できる環境が提供されています。新耐震基準を満たす構造により、災害時にも高い耐久性を誇ります。 総じて、木場ビルはその立地、設備、安全性、そして多機能性から、ビジネスにおける様々なニーズに対応できる理想的な物件と言えます。特に、アクセスの良さと周辺環境の充実が際立っており、ビジネスの拠点として最適な選択肢となるでしょう。このビルの持つ多様な特性が、利用者にとって大きなメリットとなることは間違いありません。
若林ビルの魅力的なご紹介 若林ビルは、東京都豊島区目白2丁目に位置する素晴らしいオフィス賃貸物件です。このビルは1985年に竣工し、新耐震基準に適合した耐震性の高い建物です。11階建てのこのビルは、基準階面積が約60坪あり、中規模ビルとしてビジネスに最適なスペースを提供しています。エレベーターは1基設置されており、全階へのアクセスがスムーズです。 ### 立地の魅力 若林ビルの最大の特徴の一つは、その優れた立地条件です。雑司が谷駅から徒歩5分、鬼子母神前駅、目白駅、池袋駅からも徒歩10分圏内と、3駅以上が利用可能な好立地です。また、明治通り沿いに位置しており、アクセスが非常に便利であることも魅力です。周辺環境は静かでありながら、コンビニエンスストアやカフェなどの日常の利便性も確保されています。 ### 外観とエントランス 若林ビルの外観は、その美しさと重厚感で訪れる人々を魅了します。前面がガラス張りで開放感があり、一見して洗練された印象を受けるでしょう。エントランスもシックな石張りで、質の高さを感じさせます。このため、訪れるお客様に対しても信頼感を与えることができます。 ### 室内環境と設備 若林ビルのオフィススペースは、2面採光により明るく快適な室内環境が整っています。ワンフロアの賃貸オフィスは約60坪弱で、エアコン、ミニキッチン、光ファイバーなどの設備が完備されています。さらに、男女別トイレが設置されており、ビジネスに必要な基本的な設備がすべて整っています。 ### セキュリティと利便性 若林ビルは、24時間利用可能であり、機械警備が導入されているため、セキュリティ面でも安心です。これにより、自由な働き方をサポートし、夜間や週末の業務も問題なく行えます。また、1階には信用金庫が入居しており、金融取引がスムーズに行える利便性も備えています。 ### 周辺環境 若林ビルの周辺は、比較的店舗が少ない静かなエリアですが、徒歩1分以内にセブンイレブンがあり、日常のちょっとした買い物にも困りません。マンションが多く立ち並ぶエリアであり、住環境も整っています。池袋駅方面に向かうと、賑やかな商店街やカフェ、レストランなどもあり、ビジネスランチやアフターファイブのリフレッシュにも最適です。 ### ビジネスにおける利点 若林ビルの利点は、その立地と設備にあります。複数の駅からのアクセスが良好であるため、通勤やビジネスの移動が非常に便利です。また、耐震性が高く、安心して長期的にビジネスを展開できる点も魅力です。さらに、エレベーターや機械警備、男女別トイレなどの基本的な設備が整っているため、どのような業種のビジネスにも対応可能です。 ### まとめ 若林ビルは、豊島区目白2丁目に位置する優れたオフィス賃貸物件です。明治通り沿いの便利な立地、重厚感のある美しい外観、快適な室内環境、そして安心のセキュリティと設備の充実が揃ったビルです。ぜひ一度ご内見いただき、その魅力を実感してください。若林ビルでの新しいビジネスの展開をお待ちしております。
### 名取ビルのご紹介 名取ビルは、東京都豊島区の西池袋1丁目に位置する非常に便利なオフィス賃貸物件です。池袋駅西口から徒歩3分という好立地にあり、周辺には多くの飲食店が立ち並び、ビジネスの合間に食事やリフレッシュをするのに最適な環境が整っています。 #### 立地とアクセス 名取ビルは、池袋駅から徒歩わずか3分の距離に位置しており、駅からのアクセスが非常に良好です。池袋駅はJR山手線、東京メトロ有楽町線、副都心線など多数の路線が乗り入れており、都内各地への移動が非常にスムーズに行えます。このため、通勤や取引先への訪問にも大変便利です。 #### 建物の特徴 このビルは1996年に竣工した耐震オフィスビルで、地震リスクを考慮した設計がなされています。ビル全体の設計はモダンかつ機能的であり、ビジネスシーンにふさわしい雰囲気を提供しています。エレベーターは1機設置されており、各階への移動もスムーズに行えます。 #### 設備と環境 名取ビルはオフィスとしての機能性を高めるための設備が充実しています。特に、エレベーターが設置されており、荷物の移動や多人数での移動が便利に行えます。また、周辺には多くの飲食店やカフェがあり、食事やミーティングにも困りません。ビジネスパーソンにとって、効率的かつ快適な環境が整っていると言えるでしょう。 #### ビジネスにおける利点 名取ビルの最大の魅力は、その利便性と機能性です。池袋駅から徒歩3分という立地は、ビジネスのスタートアップや中小企業にとって非常に魅力的です。アクセスの良さはもちろんのこと、周囲の飲食店や商業施設が充実しているため、社員の働きやすさや顧客との打ち合わせ場所にも困りません。 さらに、1996年竣工の耐震オフィスビルという点も重要です。耐震設計が施されているため、安心してビジネスを運営することができます。エレベーターが1機設置されている点も、日常の業務を円滑に進めるために非常に有用です。 総じて、名取ビルはその立地、設備、周辺環境のすべてにおいてバランスが取れた、ビジネスに最適なオフィス賃貸物件です。これから新しいオフィスをお探しの方、名取ビルは確実にご期待に応える物件となることでしょう。ぜひ一度、ご見学をお勧めいたします。
NI第2ビルは、東京都豊島区池袋1丁目に位置する高品質なオフィス賃貸物件です。このビルは、美しい外観を持ち、築年数が浅いため、現代的なデザインと機能性を兼ね備えています。立地としては、川越街道からすぐの位置にあり、アクセスが非常に便利です。また、1階部分には駐車場および倉庫として使用可能なスペースがあり、希少価値の高い物件となっています。 交通アクセスについても優れています。山手線の池袋駅から徒歩9分、または東京地下鉄有楽町線の池袋駅からも徒歩9分という利便性は、ビジネスの迅速な展開をサポートします。公共交通機関を利用するスタッフや来客にとっても非常に便利な立地です。 NI第2ビルは、新しい耐震基準に適合しており、安全性の面でも安心です。ビル内にはエレベーターが1機設置されており、各階への移動もスムーズです。これにより、階層間の移動が多い業務を行う企業にとっても効率的に働くことができます。 さらに、このビルの特長として、1階の倉庫使用が可能なスペースが挙げられます。これは、物品の保管や物流業務を行う企業にとって大変便利であり、業務効率を大幅に向上させる要素となります。また、駐車スペースも完備されているため、自動車での通勤やビジネス利用にも対応しています。 池袋エリア自体もビジネスにおける魅力的な地点です。商業施設や飲食店が多く立ち並び、ビジネスミーティングや取引先との会合にも便利な場所です。さらに、池袋は多くの企業が集まるビジネス街としても知られており、ネットワーキングやビジネスチャンスの拡大にも寄与するでしょう。 このように、NI第2ビルは立地、設備、安全性のすべてにおいて優れた特性を持ち、多様なビジネスシーンでの利用に適しています。企業の成長を支える理想的なオフィス空間として、検討する価値のある物件と言えるでしょう。
**SAオフィス南池袋ビルの紹介** SAオフィス南池袋ビルは、東京都豊島区南池袋2丁目に位置するSOHO(Small Office/Home Office)および事務所利用が相談可能なマンションです。このビルは、現代のビジネスニーズに応じて設計されており、効率的かつ快適な作業環境を提供します。 **立地とアクセス** このビルは、都心の利便性を活かした立地にあります。最寄り駅である東京都荒川線(都電雑司ヶ谷駅)からはわずか徒歩2分、また、東京地下鉄有楽町線(東池袋駅)からも徒歩5分という好アクセスを誇ります。これにより、社員やクライアントの移動が非常にスムーズであり、ビジネスの効率化が図れます。 **建物の特徴と設備** SAオフィス南池袋ビルは、新耐震基準を満たしており、地震に対する安全性もしっかりと確保されています。これは、地震が頻発する日本において非常に重要なポイントであり、入居者に安心感を提供します。また、ビルには1機のエレベーターが設置されており、日常の移動を快適にサポートします。 通信環境も充実しており、光ファイバーが導入されています。これにより、高速インターネットアクセスが可能となり、ビジネスの効率性をさらに向上させることができます。リモートワークやオンライン会議が一般化している現代において、この設備は非常に魅力的です。 **ビジネスにおける利点** このビルの最大の魅力は、SOHOおよび事務所利用が相談可能である点です。フレキシブルな利用形態が可能であるため、スタートアップ企業やフリーランスの方々にも最適です。また、ビル自体がオフィス街に位置しているため、ビジネスの成長に必要なネットワーキングや商談の機会も豊富にあります。 さらに、周囲には飲食店やカフェ、コンビニエンスストアなどの商業施設も充実しており、日常生活の利便性も高いです。これにより、社員の働きやすさや生活の質を向上させることができます。 **まとめ** SAオフィス南池袋ビルは、その優れた立地、充実した設備、フレキシブルな利用形態などが特徴です。新耐震基準を満たした安全な建物と、高速インターネット環境が整っており、現代の多様なビジネスニーズに応えることができます。ビジネスの成長を促進するための理想的な環境を提供するこのビルは、スタートアップ企業やフリーランスの方々にとっても非常に魅力的な選択肢となるでしょう。
「サン池袋IIビル」は、東京都豊島区池袋2丁目に位置する高品質なオフィス賃貸ビルです。ビジネス環境として理想的な立地にあり、交通アクセスの利便性が際立っています。以下に、本ビルの主要な特徴と利点について詳細にご紹介いたします。 # 立地 サン池袋IIビルは、東京都豊島区池袋2丁目というビジネスと商業が融合するエリアに位置しています。東京地下鉄有楽町線「要町」駅から徒歩わずか4分、さらに山手線「池袋」駅から徒歩7分の距離にあるため、都心部へのアクセスが非常に便利です。この立地は、通勤の利便性を重視する企業にとって大きな魅力となります。 # 建物の構造と設備 このビルは新耐震基準を満たしており、地震に対する耐久性が高いという点で安全性が確保されています。オフィスビルとして求められる基本的な設備も充実しており、建物内には1機のエレベーターが設置されています。このエレベーターは、入居者や来訪者の移動をスムーズにサポートします。 # 魅力とビジネスにおける利点 サン池袋IIビルの最大の魅力は、その優れた交通アクセスにあります。要町駅と池袋駅という主要な交通拠点に近接しているため、社員の通勤だけでなく、クライアントや取引先との打ち合わせもスムーズに行えます。また、池袋エリアには多くの商業施設や飲食店が集まっており、ランチやアフター5の楽しみも充実しています。 さらに、新耐震基準を満たしている点は、企業のBCP(事業継続計画)において重要な要素となります。こうした安全性の確保は、企業の信頼性向上にも寄与します。 # まとめ サン池袋IIビルは、豊島区池袋2丁目の一等地に位置し、優れた交通アクセスと充実した設備を誇るオフィス賃貸ビルです。安全性を確保した新耐震基準を満たしており、エレベーターも完備されています。このビルの立地と設備は、企業の成長と発展を強力にサポートします。ビジネス環境として最適な場所をお探しの方にとって、サン池袋IIビルは大変魅力的な選択となるでしょう。
富美栄ビルは豊島区南池袋に位置する、1992年竣工のモダンなオフィスビルです。東京の主要エリアの一つ、池袋に近く、交通のアクセスが非常に便利です。最寄り駅は都電雑司ケ谷駅で、東池袋駅、池袋駅も徒歩圏内にあり、多方面への移動が容易です。 ビルは地上10階建てで、基準階面積は約43坪。外観は高級感あふれる御影石とタイルで装飾されており、企業イメージを高める設計となっています。オフィス内部は光ファイバーによる高速インターネット環境を備え、現代のビジネスニーズに対応。個別空調システムにより、各テナントが快適な室温を保つことができます。 セキュリティ面では、24時間機械警備を完備し、安全性に優れています。また、エントランスにはオートロックシステムを採用し、不審者の侵入を防ぎます。これにより、テナントは安心して業務を行うことが可能です。 富美栄ビルの周辺環境も魅力の一つです。ビルの近くには飲食店が少ないものの、徒歩3分の距離にコンビニがあり、日常の買い物には困りません。また、池袋駅周辺には、郵便局や銀行などの生活インフラも充実しており、ビジネスの拠点としても非常に便利です。 内部のオフィススペースは、約20坪からの分割区画が可能で、小規模から中規模の企業にも柔軟に対応することが出来ます。また、男女別のトイレや給湯スペースも完備されており、働く従業員の利便性を考慮した設計になっています。 富美栄ビルは、その立地、設備、セキュリティの全てにおいて、テナント企業にとって最適な環境を提供するオフィスビルです。豊島区での新たなビジネスの拠点として、ぜひご検討ください。
池袋労働基準協会ビルの魅力についてご紹介いたします。 ### 立地 池袋労働基準協会ビルは、東京都豊島区池袋1丁目に位置しています。このエリアは、池袋駅から徒歩圏内という利便性の高い立地であり、交通アクセスが非常に良好です。池袋駅は、JR山手線や埼京線、東京メトロ各線など多くの公共交通機関が集まるハブステーションであり、ビジネスにおいても非常に有利な場所となっています。この立地条件は、従業員の通勤利便性を高めるだけでなく、クライアントやパートナーとのアクセスも容易にします。 ### 建物概要 池袋労働基準協会ビルは1992年に新耐震基準施工後に竣工した物件です。このため、耐震性に優れており、安全性に対する信頼性が高い点が特徴です。オフィス環境の安定性は、従業員の安心感を高め、生産性向上にも寄与します。 ### 駐車場・エレベーター ビル内には駐車場が完備されております。この駐車場は、ビル内にあるため、雨天時や荷物の運搬時にも非常に便利です。ただし、駐車場の空き状況については都度お問い合わせが必要となりますので、事前に確認することをお勧めいたします。また、ビルにはエレベーターが1機設置されており、上下階への移動もスムーズに行えます。 ### 設備 池袋労働基準協会ビルは、オフィス賃貸としての基本的な設備が整っています。エレベーターの設置により、ビル内での移動が効率的に行えるだけでなく、駐車場の完備により、車を利用する従業員や来客に対する配慮も行き届いています。さらに、新耐震基準を満たしているため、地震などの自然災害に対する対策も万全です。 ### 独自の魅力 池袋労働基準協会ビルの最大の魅力は、その立地と安全性です。池袋駅周辺という利便性の高いエリアに位置し、交通の便が非常に良いことから、ビジネスの拠点として非常に適しています。また、新耐震基準をクリアしていることから、安全性にも優れており、安心して長期的に利用できるオフィススペースです。 以上のように、池袋労働基準協会ビルは、立地の良さと安全性、そして基本的な設備が整った優れたオフィス賃貸物件です。これらの特徴を活かし、ビジネスの成功に向けた最適な環境を提供することができるでしょう。興味をお持ちの方は、ぜひお問い合わせください。
グランドメゾン池袋一番館は、豊島区池袋2丁目に所在する地上12階建ての建物です。山手線、東武鉄道東上線「池袋駅」から徒歩6分の距離に位置しており、複数路線の利用が可能です。オフィスや事務所利用を想定した際にも、移動や訪問のしやすさが考慮できる立地です。建物には機械警備やオートロックが導入されており、一定のセキュリティ体制が整っています。エレベーターは1基設置されており、日常の移動や荷物の搬入出にも対応します。新耐震基準に則った構造となっています。詳細はお問い合わせください。
IK20宮田ビルは豊島区西池袋1丁目に位置し、副都心線「池袋駅」から徒歩3分、東武鉄道東上線「池袋駅」から徒歩4分、山手線「池袋駅」からも徒歩5分と、複数路線を利用できる環境です。地上7階地下1階の建物で、池袋エリアの主要駅が至近にあるため、従業員や来訪者の移動もスムーズに行えます。 交通アクセスを重視する中小企業や、複数拠点で活動される法人テナントの事務所利用に適しています。駅周辺の利便施設も充実しており、日々の業務や来客対応も快適に行えます。
東京都文京区大塚に位置する「藤和護国寺コープビル」と「冨士ビル」は、ビジネスの拠点として魅力的な選択肢を提供しています。これらのビルは、アクセスの良さ、設備の充実、周辺環境の利便性が組み合わさり、企業や事業者にとって理想的なオフィススペースとなっています。 【藤和護国寺コープビルの特徴】 このビルは東池袋駅から徒歩わずか4分という非常に便利な立地にあります。地上8階建ての建物で、1979年に竣工された歴史を持ちます。全フロアにわたって男女別のトイレが完備されており、利便性に優れています。また、ビル内には月極駐車場が設けられており、車での通勤も可能です。エレベーターは1機設置されており、スムーズな移動が期待できます。 【冨士ビルの特徴】 冨士ビルは基準階約34坪の賃貸オフィス物件として提供されており、個別空調システムが導入されているため、各テナントが快適な室温を保つことができます。トイレも男女別で共用部に設置されています。このビルも東池袋四丁目駅から徒歩圏内に位置し、エレベーターは2基設置されています。周辺は静かな住宅街で、落ち着いた環境が魅力です。近隣には飲食店やスーパーマーケットなどの生活便宜施設が充実しており、日常生活に必要なものがすぐに手に入ります。 【立地とアクセスの利便性】 両ビルともに東池袋エリアに位置し、交通アクセスの良さは特筆すべき点です。東池袋駅の他、都電雑司ヶ谷駅や新大塚駅からもアクセス可能で、都内各地への移動が容易です。ビジネスの拠点としての利便性と、従業員の通勤のしやすさを兼ね備えています。 【まとめ】 藤和護国寺コープビルと冨士ビルは、それぞれが持つ独自の設備と、優れたアクセスの良さ、快適な周辺環境を提供しており、多様なビジネスニーズに応えることができる賃貸オフィスビルです。文京区という文教地区に位置するこれらの物件は、落ち着いた雰囲気の中で、効率的かつ快適に仕事を進めるための理想的な場所を提供しています。
英ビルは東京都豊島区南池袋に位置する、視認性に優れた角地のオフィスビルです。1973年竣工のこの7階建ての建物は、その機能的かつ効率的なデザインで多くの企業に選ばれています。ビルの1階にはファミリーマートが入居しており、従業員や訪問者の日常の利便性を高めています。 【立地とアクセス】 英ビルは、池袋駅から徒歩5分という絶好のロケーションにあります。このエリアは金融機関や商業施設が集まるビジネスの中心地であり、周辺には飲食店やコンビニが豊富にあり、日々の業務に必要なものがすぐに手に入ります。また、都電雑司が谷駅も徒歩圏内にあり、都内各地へのアクセスが容易です。 【ビルの設備】 ビル内には1基のエレベーターが設置されており、スムーズな移動をサポートします。セキュリティは機械警備が完備されており、24時間利用可能なオフィス環境を提供します。また、ビル内には駐車場が併設されており、来客の際の利便性も考慮されています。 【オフィス環境】 明るく開放的なオフィスフロアは、多面的な窓から自然光がたっぷりと入ります。これにより、心地よい職場環境が実現され、従業員の生産性向上に寄与します。各フロアは多様なビジネスニーズに合わせてカスタマイズ可能で、柔軟なレイアウト変更が行えます。 【周辺環境】 英ビルの周辺は、ビジネスだけでなくレクリエーションの面でも魅力的です。近くには公園があり、ランチタイムや仕事の合間にリフレッシュする場所として最適です。また、カフェ・ベローチェやカレーハウスCoCo壱番屋など、食事や打ち合わせに便利な店舗も豊富です。 このように、英ビルはビジネスに最適な設備とサービスを提供するだけでなく、豊かなロケーションと優れたアクセス性を兼ね備えています。お探しのオフィスがここにありますので、ぜひ一度ご覧になってはいかがでしょうか。
ザ・パークハビオ文京目白台プレイスは、2024年竣工の最新マンションで、文京区目白台2丁目に位置しています。地上10階建てのこの建物は、東京メトロ有楽町線「護国寺」駅から徒歩わずか5分の好立地にあります。デザイナーズ仕様でペット可のこのマンションは、防犯性に優れたオートロックエントランスやモニター付きインターホンを完備しており、住まいの安全を守ります。各住戸には独立洗面台やシステムキッチン、浴室乾燥機があり、快適な生活をサポート。さらに、追焚機能付きの浴室でリラックスした時間を過ごせます。共用部には宅配ボックスがあり、24時間利用可能なゴミ置場も完備しているため、忙しい日常でも便利な生活が実現します。
### KDX池袋ビルのご紹介 KDX池袋ビルは、東京都豊島区池袋に位置する賃貸オフィスビルです。2009年に竣工されたこのビルは、最新の設備と魅力的なデザインが特徴です。以下にビルの特徴、立地、設備などの要点を詳しくご紹介いたします。 #### 特徴とデザイン KDX池袋ビルは、青みがかったガラスが曲線を描く美しい外観が特徴です。このデザインは視覚的にも非常に印象的で、来客時の案内がしやすく、ビジネスの信用度を高める効果があります。ビルの基準階面積は約100坪で、天井高は2,700mmと開放感があります。室内には余計な柱が少なく、レイアウトしやすい間取りとなっており、業務効率を高める設計がなされています。また、窓面が広いため採光率が高く、明るい室内が魅力です。 #### 立地 KDX池袋ビルは、JR・地下鉄・私鉄が利用できる池袋駅から徒歩5分とアクセス至便の立地です。さらに、地下鉄C6出口からは徒歩約1分と、非常に便利な場所に位置しています。この立地条件により、ビジネスパートナーやクライアントとのアクセスもスムーズです。また、周辺には飲食店やカフェ、銀行などが充実しており、ビジネスに必要なすべてが揃っています。 #### 設備 KDX池袋ビルは、24時間利用可能なオフィスビルで、機械式の月極駐車場も併設されています。これにより、ビジネスの自由度が高まり、いつでもオフィスを利用できる利便性があります。主要な設備としては、OAフロア、光ケーブル(MDFまで)、個別空調、男女別トイレ、そして機械警備システムが導入されています。安全面でも充実しているため、安心してビジネスに専念できます。 #### 周辺環境 ビルの周辺には、セブン-イレブン池袋2丁目劇場通り店が1階に入居しており、視認性が高いです。また、徒歩1分の場所にガスト池袋西口店やエクセルシオールカフェ池袋二丁目店、至近にはドラッグセイムス池袋西口店などもあり、ランチタイムやビジネスミーティングにも利用しやすい環境が整っています。これにより、社員の生活の質も向上し、仕事のモチベーションも高まることでしょう。 #### ビジネスにおける利点 KDX池袋ビルは、その立地と設備によって、さまざまなビジネスシーンでの利用が可能です。駅からのアクセスが良好であるため、クライアントやビジネスパートナーとの打ち合わせがスムーズに行えます。また、広い採光面とレイアウトしやすい設計が、クリエイティブなアイデアの発展を促進します。さらに、1階にコンビニが入居しているため、急な買い物やちょっとした休憩にも便利です。 #### クリニックとしての利用も可能 KDX池袋ビルは、クリニックとしての利用も相談可能です。これにより、医療関連のビジネスにも対応できる柔軟性があります。視認性が高く、アクセスが良い立地は、患者さんにとっても訪れやすい環境となります。 以上のように、KDX池袋ビルは、アクセスの良さ、美しいデザイン、充実した設備を兼ね備えた理想的なオフィスビルです。ビジネスの拠点として、ぜひご検討ください。
ニットービルは、東京都豊島区東池袋3丁目に位置する、1993年竣工の地上9階建てのオフィス賃貸ビルです。このビルの最大の特徴は、その立地の利便性にあります。春日通りに面しており、六つ又交差点の近くに位置するため、アクセスが非常に良好です。最寄り駅である向原駅からは徒歩10分弱という距離にあり、都心への移動も容易に行えます。 ビルの基準階坪数は約20坪で、シンプルな間取りが特徴的です。このため、様々な業種の企業が自社に合わせたオフィスレイアウトを計画しやすく、効率的な働き方を実現することができます。また、各貸室内には専用のトイレが設置されており、利便性とプライバシーが保たれています。 ビルの設備には、セキュリティ面でも配慮が行き届いています。オートロックシステムを完備しているため、入居企業は安心して業務を行うことができます。加えて、エレベーターは1機設置されており、スムーズな移動をサポートします。 ニットービルの立地、設備、そして機能性を考慮すると、多様なビジネスニーズに対応可能なオフィスとして、特にスタートアップ企業や拡張を考えている企業に適していると言えるでしょう。通勤やビジネスの要所へのアクセスの良さは、社員の満足度向上や業務効率の向上に直結します。また、シンプルで使いやすいオフィス空間は、創造的なアイディアを生み出す環境としても理想的です。 このように、ニットービルはその立地、設備、そして機能性において、多くの企業が求める条件を満たす賃貸オフィスビルとして、東池袋エリアで高い評価を受けています。ビジネスの拠点として、または新たな事業展開の場として、ぜひご検討いただきたい物件です。
I.TOWERは、豊島区西池袋1丁目に位置する地上10階・地下1階建ての事業用物件です。山手線、東武鉄道東上線、東京地下鉄丸ノ内線いずれの池袋駅からも徒歩1分に位置し、複数路線の利用が可能な環境です。周辺にはオフィスや商業施設が多く、日常の業務のみならず関連したサービスとの連携も想定しやすい立地となっています。ビルはワンフロア、もしくはフロアを分割しての利用にも対応でき、事業形態や規模に応じた柔軟な使い方ができます。エレベーター1基を備えており、館内の移動もスムーズです。池袋エリアの中心に所在するため、来訪者の案内や各種イベント、打ち合わせ等にも活用しやすい環境が整っています。建物の詳細についてはお問い合わせください。
シルバープラザ池袋ビルのご紹介 シルバープラザ池袋ビルは、東京都豊島区池袋2丁目に所在するオフィス賃貸ビルです。本ビルは、その卓越した立地と現代的な設備により、企業の多様なニーズに応える理想的なオフィス環境を提供します。 # 立地 シルバープラザ池袋ビルは、東京都豊島区池袋2丁目に位置しており、JR山手線「池袋」駅から徒歩5分という非常にアクセスの良い場所にあります。池袋は東京都内でも有数のビジネス拠点であり、交通の便が非常に良いため、通勤や来客にも大変便利です。周辺には商業施設やレストラン、カフェなども充実しており、仕事の合間やアフターファイブも充実した時間を過ごすことができます。 # 設備 本ビルは新耐震基準に適合しており、地震に対する安全性が高く、安心してビジネスを展開することができます。エレベーターは1機設置されており、各階への移動もスムーズです。ビル全体の設計は、機能性と快適性を重視しており、オフィスとしての利用を最大限にサポートします。 # 特徴と魅力 シルバープラザ池袋ビルの最大の魅力は、その立地と安全性です。池袋駅から徒歩5分という便利な位置にあるため、社員だけでなく取引先や来客にとっても非常にアクセスが良いです。ビジネスの拠点として、東京の中心地に位置しながらも、周辺の静かな環境は集中して業務に取り組むのに最適です。 また、新耐震基準に適合しているため、地震に対する安全性が高く、長期的なビジネス活動においても安心して利用できます。これにより、従業員の安全を第一に考える企業にとって非常に適したオフィススペースとなっています。 # ビジネスにおける利点 シルバープラザ池袋ビルは、交通の便が非常に良いだけでなく、周辺には多くの商業施設や飲食店が立ち並んでおり、ビジネスパートナーとの会食やリフレッシュの場としても利用しやすい環境です。また、池袋エリアは多くの企業が集まるビジネスエリアであり、ネットワーキングの機会も豊富です。 これらの点を総合すると、シルバープラザ池袋ビルは、その立地と設備、安全性の高さから、さまざまな業種の企業にとって理想的なオフィススペースと言えるでしょう。ビジネスの拠点として、短期的な利便性と長期的な安心感を兼ね備えた本ビルは、企業の成長を強力にサポートする環境を提供します。 以上がシルバープラザ池袋ビルの概要とその魅力です。詳細な情報や内覧をご希望の際は、ぜひお問い合わせください。
ルボワ平喜南池袋ビルは、東京都豊島区南池袋に位置する8階建ての賃貸オフィスビルです。この物件は1979年に竣工され、基準階面積は約15坪となっています。建物には1基のエレベーターが設置されており、スムーズな移動が可能です。外観やエントランスはデザインに優れ、視認性が高いため、訪れる方々に良い印象を与えることでしょう。 立地においては、最寄り駅である東池袋駅から徒歩圏内にあり、池袋駅、東池袋四丁目駅、都電雑司ヶ谷駅からもアクセスが便利です。ビルの近隣には、郵便局、銀行、コンビニエンスストアといった生活に必要な施設が整っており、日々の業務に必要なサービスを手軽に利用することができます。また、グリーン大通りから一本入った場所にあるため、落ち着いた環境で仕事に集中することが可能です。 このビルの特徴として、デザイナーズビルである点が挙げられます。有名な建築家によって設計されたことで、一般的なオフィスビルとは一線を画す洗練された外観を持っています。そのため、企業イメージの向上にも寄与することが期待されます。 また、ビル内のオフィススペースは清潔に保たれており、快適なワークスペースを提供しています。これは、働く従業員のモチベーション向上や生産性の向上にも繋がる要素です。 ルボワ平喜南池袋ビルは、その立地の利便性、デザイン性の高さ、そして機能的なオフィス環境を備え、多様なビジネスニーズに応えることができる理想的なオフィス賃貸物件です。企業のブランディングや効率的なビジネス運営をサポートする環境が整っているため、さまざまな業種の企業にお勧めの物件と言えるでしょう。興味をお持ちの方は、ぜひ一度現地をご覧になって、その魅力を実感してください。
東京のビジネスハブ、池袋に位置する「ビック池袋東口ビル」は、1987年に竣工された現代的なオフィスビルです。10階建てのこの物件は、耐震基準を満たした安全な構造であり、企業の安心して活動できる基盤を提供します。 立地においては、JR池袋駅からわずか徒歩1分という抜群のアクセス性を誇ります。この地点から東京都内各所への移動が容易であり、ビジネスの機会を迅速に捉えることが可能です。また、池袋パルコやヤマダ電機などの大型商業施設が隣接しており、ビジネス後のショッピングや食事にも便利です。 ビル内の設備には特に配慮が行き届いています。エレベーターは2基設置されており、ビジネスの効率性を高めています。各オフィスフロアは約170坪と広々としており、ほぼ柱のないシンプルな間取りが多く、様々なオフィスレイアウトに対応可能です。また、大きな窓からは開放的な景色が楽しめ、明るく快適な職場環境を提供します。 セキュリティ面では、有人管理が行われており、入居企業とその来客の安全を確保しています。また、地下には駐車場が設けられており、車でのアクセスも容易です。周辺には多数の銀行ATMも配備されており、日常的な金融業務も手間なく行えます。 「ビック池袋東口ビル」は、その立地、設備、安全性を兼ね備えた賃貸オフィスビルとして、どんな企業にも最適な選択肢です。ビジネスの拠点としての機能性の高さと、池袋というエリアの利便性を活かしたビジネス展開を望む企業にとって、理想的な環境を提供します。
【南日本ビルの紹介】 南日本ビルは、東京都豊島区南池袋2丁目に位置する1980年竣工の9階建てオフィスビルです。この物件は、池袋駅から徒歩わずか5分という利便性の高い立地にあり、近隣には多様な飲食店、コンビニエンスストア、郵便局などが充実しており、ビジネス環境においても日常生活においても大変便利な場所です。 本ビルの基準階面積は約35坪で、ほぼ正方形の無柱空間となっております。このため、オフィスのレイアウトを自由に設計することが可能で、効率的な作業空間の確保が期待できます。また、個別空調システムを採用しているため、各テナントが快適な室内環境を個別に調整することができます。 ビル内の安全性と利便性を考慮し、エレベーターは1基設置されています。これにより、スムーズな移動が可能となっております。また、1階にはカフェ・ベローチェ南池袋二丁目店が入居しており、ビジネスの合間にリフレッシュや打ち合わせの場としても利用できる点が魅力です。 周辺環境においても、南日本ビルは多くの利点を有しています。徒歩1分圏内には吉野家やファミリーマート、スターバックスコーヒーなどがあり、忙しいビジネスパーソンにとって必要なものがすぐに手に入る便利さがあります。さらに、都電雑司が谷駅も徒歩10分圏内に位置しており、都心へのアクセスも良好です。 このように、南日本ビルは立地、設備、周辺環境のすべてにおいて優れており、ビジネスの拠点として最適な環境が整っています。オフィスを構えることで、業務の効率化だけでなく、社員の働きやすさを向上させることができるでしょう。南日本ビルで新たなビジネスのスタートを切りましょう。
東京都豊島区東池袋5丁目に位置する「サンユースビル」は、1992年に新耐震基準に基づいて建設されたオフィスビルです。耐震性に優れ、安全性を重視する企業に最適な物件と言えるでしょう。このビルは、東京のビジネス中心地にありながら、駅近でアクセスが非常に便利です。具体的には、丸ノ内線をはじめとする4つの駅が徒歩圏内にあり、大塚駅からはわずか5分の距離に位置しています。これにより、都内各地への移動が容易で、ビジネスの機動力を高めることが可能です。 ビルの設傈面においても、利便性が高い点が特徴です。ビル内には月極駐車場を完備しており、車での通勤やビジネス用途での利用が考慮されています。また、建物内には1基のエレベーターが設置されており、スムーズな移動を支援します。セキュリティ面では、機械警備が完備されており、入居企業の安全をしっかりと守ります。 トイレは男女別に設けられており、快適な使用が期待できます。このように、サンユースビルは機能性と利便性を兼ね備えたオフィス空間を提供しており、多くのビジネスのニーズに応える設計となっています。 立地の良さ、耐震性、利便性の高い設備、そして安全なセキュリティ環境は、企業がオフィスを構えるにあたって非常に重要な要素です。サンユースビルはこれらを総合的に兼ね備えているため、様々な業種の企業にとって魅力的な選択肢となるでしょう。ビジネスの基盤としてだけでなく、企業イメージを向上させるための環境としても、最適なオフィススペースを提供します。サンユースビルで、新たなビジネスの成功を築き上げましょう。
豊島区上池袋に位置するカブト54上池袋ビルは、1993年に竣工された新耐震基準対応のオフィスビルです。地上12階建てのこのビルは、機能性とアクセスの良さを兼ね備えた賃貸オフィス物件として、中小企業からスタートアップ企業まで幅広いニーズに応える設計がされています。 【立地の特徴】 カブト54上池袋ビルは、北池袋駅から徒歩7分という利便性の高い位置にあります。さらに、巣鴨新田駅も徒歩10分以内でアクセス可能で、周辺にはコンビニ、ドラッグストアなどの生活必需品を揃える店舗が充実しているため、日々の勤務においても大きな利便を提供します。また、ビルは明治通りに面しており、車でのアクセスも容易です。 【ビルの設備と特性】 このビルは、約25.31〜46.45坪の多様なオフィススペースを提供しており、企業の規模やニーズに応じた選択が可能です。全室に個別空調と光ファイバーインターネットが完備されており、快適なオフィス環境をサポートします。ビル内には月極駐車場も設置されており、来客の際にも便利です。エレベーターは1基設置されており、24時間利用可能ですので、時間を問わず業務を行うことができます。 【オフィス環境】 カブト54上池袋ビルのオフィスは、シンプルで使いやすい間取りが特徴です。各オフィスには給湯スペースと男女別のトイレが設けられており、プライバシーと快適さが保たれています。また、窓からは自然光がたっぷりと入る設計になっており、明るく開放的なワークスペースを実現しています。 【ビジネスにおける利点】 カブト54上池袋ビルの立地と設備は、ビジネスの効率性を高める要素を多く含んでいます。アクセスの良さは従業員やビジネスパートナーとの連携を容易にし、充実したオフィス設備は日々の業務をスムーズに進めることを可能にします。また、耐震性に優れた建物であることは、企業のリスク管理においても重要なポイントです。 カブト54上池袋ビルは、その立地の利便性、充実した設備、そして機能的なオフィス環境が魅力の事務所ビルです。これから事務所を構える企業にとって、最適な選択肢の一つと言えるでしょう。
増原ビルは東京都豊島区南大塚3丁目に位置する、1983年に新耐震基準に則って建設されたオフィスビルです。このビルは、地震発生時の安全性を重視した設計が施されており、テナント企業にとって安心して業務を行える環境を提供しています。 ビルの立地に関しては、都心へのアクセスが良好でありながら、周辺環境は落ち着いた住宅地としても知られるため、働く人々にとって快適な職場環境を実現しています。最寄り駅からは徒歩圏内であり、公共交通機関を利用する従業員にとっても非常に便利な立地条件を有しています。 増原ビルの主な設備としては、ビル内に駐車場を完備している点が挙げられます。これは中心地においては非常に貴重な設備であり、来客や従業員が自動車で容易にアクセスできることが大きな利点です。また、セキュリティシステムも万全を期しており、24時間体制で安全が保たれています。 内装に関しても、現代的かつ機能的なデザインが施されており、各オフィスは明るく開放感のある空間となっています。これにより、クリエイティブな思考を促進し、効率的な業務遂行をサポートします。 増原ビルは、新耐震基準に基づき建設された耐久性と安全性を備え、優れた立地条件、充実した設備とともに、企業にとって魅力的なビジネスの拠点となることでしょう。さらに詳しい情報や空き状況については、直接お問い合わせいただくことで、具体的なニーズに応じた最適なオフィススペースをご提案できます。