VORT麻布イーストビル
- 住所
- 港区東麻布1丁目25-5 地図をみる
- 最寄り駅
- 赤羽橋徒歩2分、芝公園徒歩8分、神谷町徒歩12分
- 竣工
- 1991年02月
- 規模
- 地上9階建て
- 種別
- 事務所
| 階数 | 坪数 | 賃料 + 共益費 |
敷金・保証金 / 礼金 | 入居日 | 検討 | 詳細 | |
|---|---|---|---|---|---|---|---|
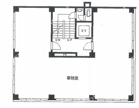
| 4階 | 60.35坪 (205.02m²) |
1,086,300円 (坪 : 18,000円) |
4ヶ月 / 1ヶ月 | 2019年02月中旬 | 検討する | 詳細 | |












































































































































































































































































































































