※このサイトに記載がある賃貸条件は、敷金・保証金などの預かり金を除き、別途消費税がかかります。
お電話でもお気軽にお問い合わせください
物件情報
設備詳細
| 空調 | - |
|---|---|
| トイレ | - |
| 床仕様 | - |
| エレベータ | 3 基 |
| 駐車場設備 | 空有 |
| その他 | 大型ビル / 光ファイバー / 新耐震基準 |
アクセスマップ
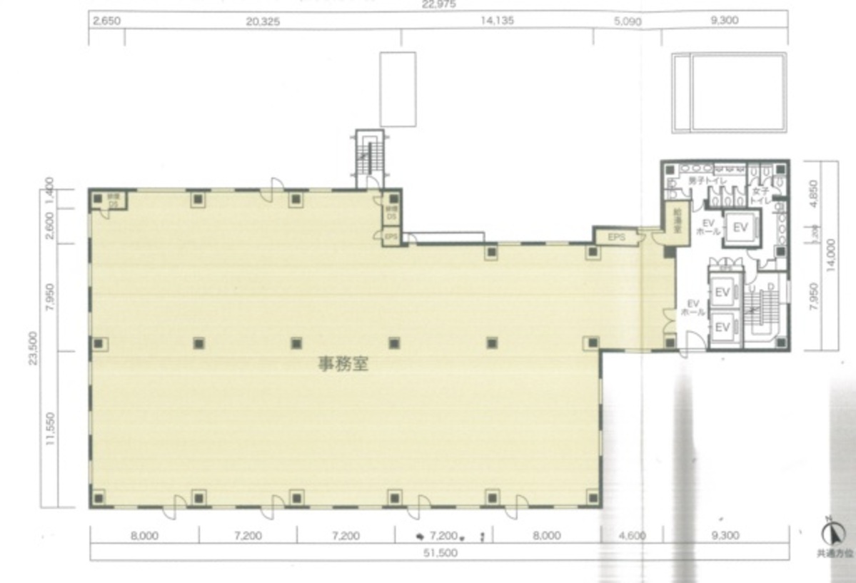
東京の中心、中央区入船に位置するヒューリック築地イーストビルは、1999年に竣工した鉄骨造のオフィスビルで、新耐震基準に基づいて建設された7階建ての大型オフィス物件です。このビルは、現代のビジネスニーズに対応した設備と環境を提供し、多様な企業活動をサポートしています。 基準階で約266坪の広さを持つこの物件は、OAフロアを採用し、フレキシブルなレイアウト変更を可能にしており、企業の成長や変化に柔軟に対応できる空間を提供しています。また、内部には男女別のトイレ設備があり、女子トイレには更衣室と小物入れが備え付けられており、快適な職場環境を実現しています。個別空調システムにより、各テナントは自社のスペース内で温度管理を行うことができ、働く人々の快適性を高めています。 ビル内には3基のエレベーターが設置されており、スムーズな移動を支援します。また、セキュリティ面では機械警備システムを導入し、テナントの安全を守っています。加えて、24台を収容可能な駐車場がビル内にあり、来客や社員の利便性を高めています。 立地においても、ヒューリック築地イーストビルは魅力的な環境にあります。最寄り駅の新富町駅から徒歩4分というアクセスの良さに加え、八丁堀駅や築地駅も徒歩圏内にあり、都心への移動が容易です。周辺にはコンビニやスーパーマーケット、銀行などの生活便利施設が充実しており、ビジネスだけでなく日々の生活も支える環境が整っています。 ビルの外観は、明るいベージュ色を基調とした印象的なデザインで、周辺の街並みに上品なアクセントを加えています。また、専有部分は白とグレーを基調とした清潔感あふれる室内が特徴で、企業が訪問客を迎えるにあたり、また日々の業務を行うにあたり、快適かつプロフェッショナルな環境を提供します。 ヒューリック築地イーストビルは、その立地の良さ、充実した設備、そして快適なワークスペースにより、企業の成長をサポートし、ビジネスの成功に貢献するオフィス物件として、高い評価を受けています。
募集終了のテナント区画
| 階数 | 坪数 | 賃料 + 共益費 | 敷金/礼金敷金 礼金 | 検討 |
|---|---|---|---|---|
| 1階 | 205.35坪 (678.84m²) | 募集終了 | - | - |
| 2階 | 266.83坪 (882.1m²) | 募集終了 | - | - |
| 3階 | 266.83坪 (882.1m²) | 募集終了 | - | - |
| 4階 | 266.83坪 (882.1m²) | 募集終了 | - | - |
| 5階 | 266.83坪 (882.1m²) | 募集終了 | - | - |
| 6階 | 266.83坪 (882.1m²) | 募集終了 | - | - |
| 7階 | 266.83坪 (882.08m²) | 募集終了 | - | - |
WEB非公開物件がございます
オーナー様ご希望によるWEB非公開の物件もございます。先ずは条件などお知らせ頂けましたら、非公開物件含めピッタリのオフィスをご提案させて頂きます。具体的な物件がお決まりでない場合でも問題ございません。無理なお勧めはしておりませんので、お気軽にお問い合わせください。
ご来店も歓迎です
オフィス移転は社内・社外ともに非公開に行われることが殆どです。そのためアットオフィスでは、基本的に訪問によるコンサルティングを行っておりますが、ご来店の相談も歓迎です。
※お一人おひとりに親身にご対応させて頂きたい為、要予約とさせて頂いております。ご来店の際は先ずは上記よりご予約下さい。
読込中...
新富/築地エリアでヒューリック築地イーストビルに似た条件の物件
読込中...