※このサイトに記載がある賃貸条件は、敷金・保証金などの預かり金を除き、別途消費税がかかります。
お電話でもお気軽にお問い合わせください
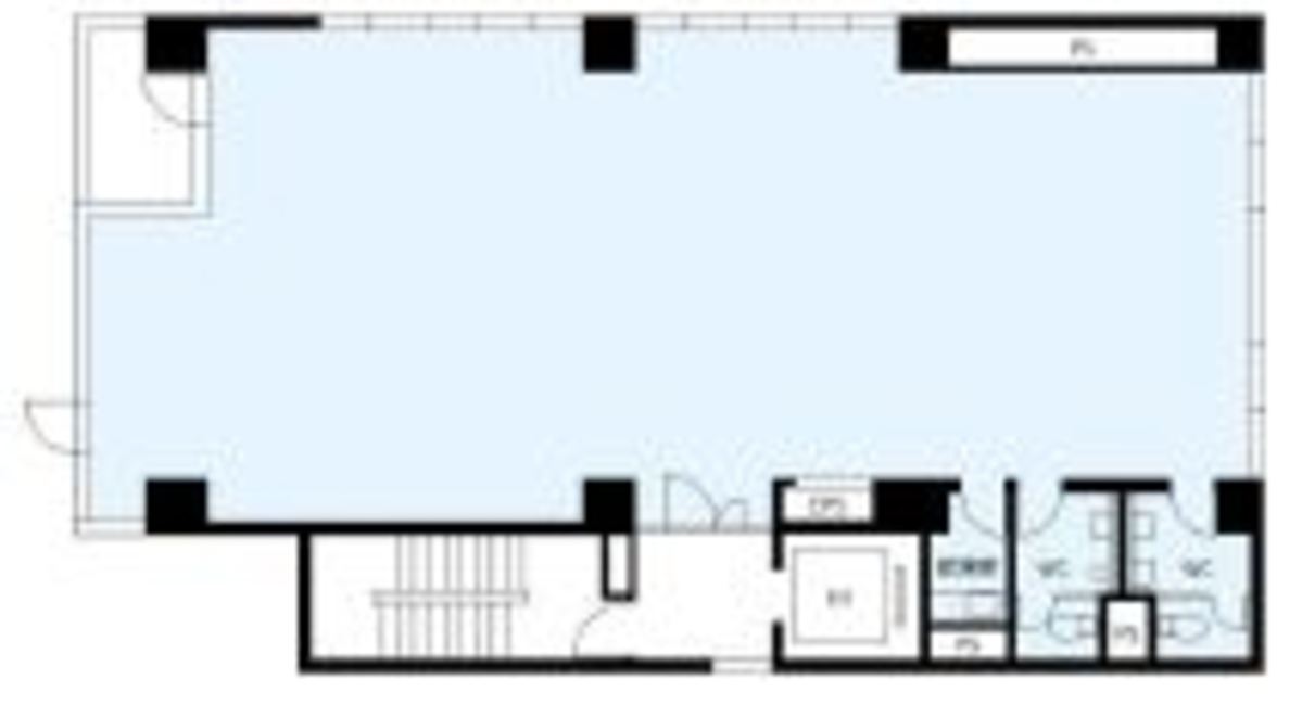
物件情報
設備詳細
| 空調 | - |
|---|---|
| トイレ | - |
| 床仕様 | - |
| エレベータ | 1 基 |
| 駐車場設備 | - |
| その他 | 機械警備 / 24時間利用可 / 光ファイバー / 新耐震基準 |
平河町辻田ビルは、千代田区平河町1-7-20に位置する、1984年に竣工された新耐震基準を満たしたオフィスビルです。東京のビジネスの中心地にありながら、東京メトロ半蔵門線の半蔵門駅からわずか徒歩2分という絶好の立地条件を誇ります。さらに、麹町駅、永田町駅、赤坂見附駅も徒歩圏内にあり、複数の交通網にアクセスしやすい点が大きな魅力です。この立地は、ビジネスの機会を最大限に活かすための理想的な場所であると言えるでしょう。 ビル自体は、地上9階建てで、基準階約62坪の賃貸オフィススペースを提供しています。清潔感溢れる白いタイルの外観が特徴で、内部は3面採光により自然光がたっぷりと入る明るく開放的なオフィス空間を提供しています。また、個別空調やOAフロアを完備しており、企業のニーズに合わせた柔軟なレイアウト変更も可能です。これらの設備は、従業員の働く環境を快適に保ち、生産性の向上にも寄与します。 さらに、機械警備が完備されており、24時間利用可能なため、様々なビジネススタイルにも対応しています。このようなセキュリティ体制は、テナント企業にとって安心感をもたらします。 周辺環境も魅力的で、近隣には多様な飲食店やコンビニがあり、日々のランチやちょっとした買い物にも便利です。また、新宿通りから一本入った位置にあるため、ビジネスの中心地でありながらも落ち着いた周辺環境を享受できます。 平河町辻田ビルは、その立地、設備、安全性を兼ね備えたビルとして、あらゆるビジネスのニーズに応える理想的なオフィス空間を提供します。ビジネスの成功と発展を目指す企業にとって、最高の選択肢の一つであることは間違いありません。
募集終了のテナント区画
| 階数 | 坪数 | 賃料 + 共益費 | 敷金/礼金敷金 礼金 | 検討 |
|---|---|---|---|---|
| 2階 | 61.67坪 (203.87m²) | 募集終了 | - | - |
| 3階 | 61.67坪 (203.87m²) | 募集終了 | - | - |
| 5階 | 45.7坪 (151.07m²) | 募集終了 | - | - |
WEB非公開物件がございます
オーナー様ご希望によるWEB非公開の物件もございます。先ずは条件などお知らせ頂けましたら、非公開物件含めピッタリのオフィスをご提案させて頂きます。具体的な物件がお決まりでない場合でも問題ございません。無理なお勧めはしておりませんので、お気軽にお問い合わせください。
ご来店も歓迎です
オフィス移転は社内・社外ともに非公開に行われることが殆どです。そのためアットオフィスでは、基本的に訪問によるコンサルティングを行っておりますが、ご来店の相談も歓迎です。
※お一人おひとりに親身にご対応させて頂きたい為、要予約とさせて頂いております。ご来店の際は先ずは上記よりご予約下さい。
読込中...
番町/麹町/平河町エリアで平河町辻田ビルに似た条件の物件
読込中...