※このサイトに記載がある賃貸条件は、敷金・保証金などの預かり金を除き、別途消費税がかかります。
お電話でもお気軽にお問い合わせください
物件情報
設備詳細
| 空調 | - |
|---|---|
| トイレ | - |
| 床仕様 | - |
| エレベータ | 1 基 |
| 駐車場設備 | - |
| その他 | 新耐震基準 |
アクセスマップ
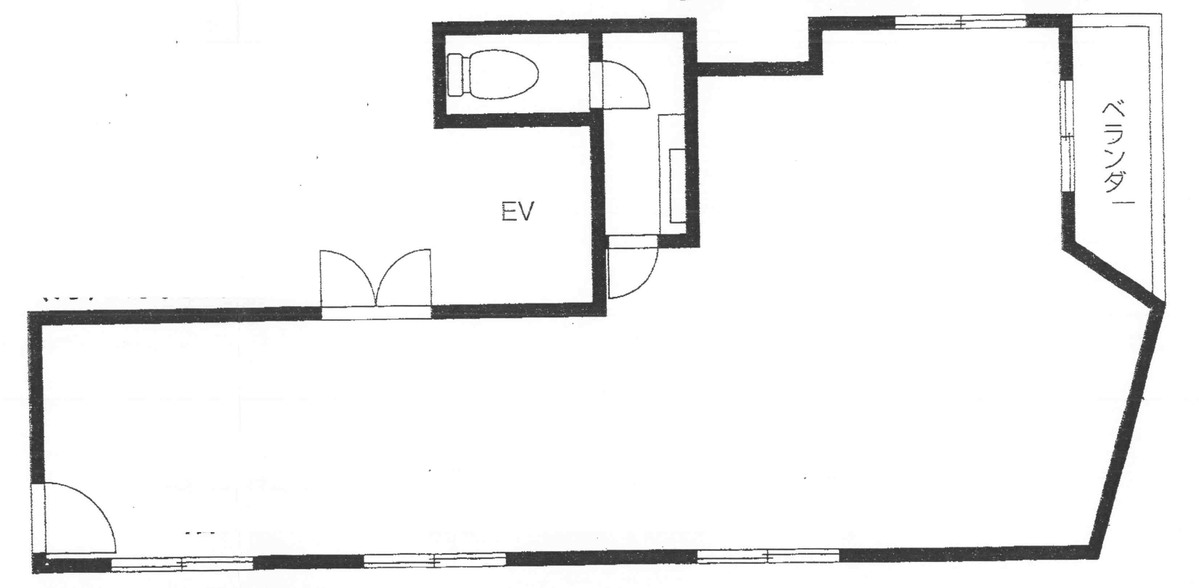
東京都文京区小石川に位置するバンビビルは、オフィス利用に適した賃貸物件として注目されています。このビルは、東京メトロ丸ノ内線の茗荷谷駅から徒歩圏内という抜群のアクセス性を誇り、都心への移動も容易です。また、周辺には郵便局、コンビニエンスストア、銀行など生活に必要な施設が揃っており、ビジネスに必要なサポート環境が整っています。 バンビビルの最大の特徴は、その立地と機能性にあります。ビル自体は春日通り沿いに位置し、飲食店が多く立ち並ぶ活気あるエリアです。このため、ビジネスランチやアフター5の利用に便利な環境が提供されています。さらに、ビルの目の前にバス停もあり、公共交通機関を利用する従業員には非常に便利です。 物件の構造についても注目すべき点が多くあります。バンビビルはワンフロア約20坪というコンパクトながらも効率よく使えるスペースを提供しており、特に小〜中規模の企業に最適なオフィス環境を実現しています。執務スペースはL字型で設計されており、柔軟なレイアウトが可能です。これにより、様々なビジネスモデルに合わせたオフィス環境の構築が可能となっています。 ビル内の設備も充実しており、エレベーターが1基設置されているほか、1階にはレストランがテナントとして入っており、従業員や訪問客の食事にも困りません。このような設備は、日々の業務効率を高めるだけでなく、ビルを訪れるクライアントにも良い印象を与えることができます。 総じて、バンビビルは交通の便が良く、周辺環境も充実しており、小〜中規模企業にとって非常に魅力的なオフィススペースを提供している物件です。ビジネスの拠点としての機能性を追求しつつ、日々の業務が快適に行えるような環境が整っている点が、このビルの大きな強みと言えるでしょう。
募集終了のテナント区画
| 階数 | 坪数 | 賃料 + 共益費 | 敷金/礼金敷金 礼金 | 検討 |
|---|---|---|---|---|
| 2階 | 25.1坪 (82.99m²) | 募集終了 | - | - |
| 3階 | 22.16坪 (73.27m²) | 募集終了 | - | - |
| 3階 | 20.87坪 (69m²) | 募集終了 | - | - |
| 5階 | 20.87坪 (69m²) | 募集終了 | - | - |
| 6階 | 20.87坪 (69m²) | 募集終了 | - | - |
| 7階 | 20.87坪 (69m²) | 募集終了 | - | - |
| 8階 | 20.87坪 (69m²) | 募集終了 | - | - |
WEB非公開物件がございます
オーナー様ご希望によるWEB非公開の物件もございます。先ずは条件などお知らせ頂けましたら、非公開物件含めピッタリのオフィスをご提案させて頂きます。具体的な物件がお決まりでない場合でも問題ございません。無理なお勧めはしておりませんので、お気軽にお問い合わせください。
ご来店も歓迎です
オフィス移転は社内・社外ともに非公開に行われることが殆どです。そのためアットオフィスでは、基本的に訪問によるコンサルティングを行っておりますが、ご来店の相談も歓迎です。
※お一人おひとりに親身にご対応させて頂きたい為、要予約とさせて頂いております。ご来店の際は先ずは上記よりご予約下さい。
読込中...
湯島/本郷/後楽園エリアでバンビビルに似た条件の物件
読込中...