※このサイトに記載がある賃貸条件は、敷金・保証金などの預かり金を除き、別途消費税がかかります。
お電話でもお気軽にお問い合わせください
物件情報
設備詳細
| 空調 | - |
|---|---|
| トイレ | - |
| 床仕様 | - |
| エレベータ | - |
| 駐車場設備 | - |
| その他 | 24時間利用可 / 光ファイバー |
アクセスマップ
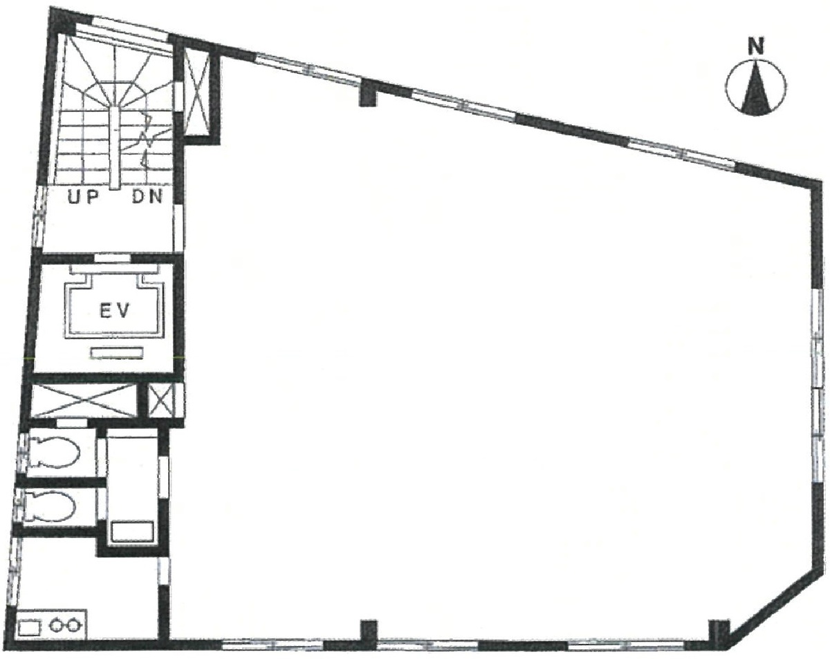
栄隆ビルは、東京都品川区東大井に位置する、1987年に竣工された賃貸オフィスビルです。このビルは、5階建てであり、約25坪の基準階面積を持つことから、中小企業やスタートアップ企業にとって最適なオフィススペースを提供します。本ビルの最大の特徴の一つは、クリーム色とグレーの二色を用いた外観であり、周囲の都市景観に溶け込みつつも、一定の存在感を放っています。 エレベーターは1基設置されており、全フロアが効率的にアクセス可能です。特に注目すべき点は、室内に余計な柱が存在しないため、テナントは自由なオフィスレイアウトを実現することが可能です。これは、特にクリエイティブな業務を行う企業や、フレキシブルな働き方を取り入れたい企業にとって大きな利点となります。 立地においても、栄隆ビルは魅力的な要素を多く備えています。最寄り駅である大井町駅まで徒歩5分というアクセスの良さは、従業員の通勤の利便性を大幅に向上させます。また、京浜急行本線の鮫洲駅と青物横丁駅も徒歩圏内にあり、都内各地へのアクセスの良さはビジネスチャンスを広げる重要な要素となり得ます。 周辺環境もビルの魅力を高める要素の一つです。ビルの前面に位置する商店街には、飲食店をはじめとする多様な店舗が揃っており、ビジネスランチやアフター5の利用に便利です。また、近隣にはファミリーマートやスターバックスコーヒーなど、従業員の日常生活をサポートする施設が充実しています。 栄隆ビルは、その立地、設備、周辺環境ともに、中小企業やスタートアップ企業が成長し、繁栄するための理想的な環境を提供します。自由度の高いオフィスレイアウトが可能なこと、優れたアクセス性、充実した周辺施設は、ビジネスの発展に欠かせない要素として、テナント企業に大きな価値をもたらします。品川区東大井におけるオフィススペースをお探しの企業にとって、栄隆ビルは最適な選択肢の一つと言えるでしょう。
募集終了のテナント区画
| 階数 | 坪数 | 賃料 + 共益費 | 敷金/礼金敷金 礼金 | 検討 |
|---|---|---|---|---|
| 3階 | 27.93坪 (92.35m²) | 募集終了 | - | - |
| 4階 | 27.93坪 (92.35m²) | 募集終了 | - | - |
WEB非公開物件がございます
オーナー様ご希望によるWEB非公開の物件もございます。先ずは条件などお知らせ頂けましたら、非公開物件含めピッタリのオフィスをご提案させて頂きます。具体的な物件がお決まりでない場合でも問題ございません。無理なお勧めはしておりませんので、お気軽にお問い合わせください。
ご来店も歓迎です
オフィス移転は社内・社外ともに非公開に行われることが殆どです。そのためアットオフィスでは、基本的に訪問によるコンサルティングを行っておりますが、ご来店の相談も歓迎です。
※お一人おひとりに親身にご対応させて頂きたい為、要予約とさせて頂いております。ご来店の際は先ずは上記よりご予約下さい。
読込中...
品川/大崎/大井エリアで栄隆ビルに似た条件の物件
読込中...