※このサイトに記載がある賃貸条件は、敷金・保証金などの預かり金を除き、別途消費税がかかります。
お電話でもお気軽にお問い合わせください
物件情報
設備詳細
| 空調 | - |
|---|---|
| トイレ | - |
| 床仕様 | - |
| エレベータ | - |
| 駐車場設備 | - |
| その他 | - |
アクセスマップ
【大野ビルのご紹介】 今日は千代田区飯田橋1丁目に位置する、ビジネスの中心地である「大野ビル」をご紹介いたします。このビルは、その優れた立地と充実した設備で、あなたのビジネスを次のレベルへと導くことでしょう。 【立地の魅力】 大野ビルは、飯田橋駅からわずか数分の距離にあり、JR線、東京メトロ線、都営地下鉄線が利用可能で、東京都内はもちろん、関東各地へのアクセスが非常に便利です。また、周辺には飲食店や銀行、郵便局などの生活に必要な施設が充実しており、ビジネスに必要なサポート環境が整っています。 【ビルの特徴】 大野ビルは、現代的なデザインと機能性を兼ね備えたオフィスビルです。ガラス張りのファサードは、洗練された印象を与え、ビル内に一歩足を踏み入れると、明るく開放的なロビーが訪れる人を迎えます。各オフィスフロアは、柔軟なレイアウトが可能で、どんなビジネスニーズにも対応できる設計になっています。 【設備の充実】 大野ビルは、最新のセキュリティシステムをはじめ、高速インターネット接続、24時間利用可能な空調システムなど、ビジネスを支えるための最先端設備が整っています。また、ビル内には会議室や休憩スペースも設けられており、快適なワークスペースを提供します。 【ビジネスにおける利点】 大野ビルは、その立地、設備、機能性を兼ね備え、どんなビジネスにも対応可能なオフィスビルです。ここでのビジネスは、アクセスの良さと快適なオフィス環境により、社員のモチベーション向上にも繋がります。また、千代田区という東京の中心にあるため、ビジネスチャンスが無限に広がっています。 大野ビルで、新しいビジネスのスタートを切りませんか?ここは、あなたのビジネスを成功に導くための最適な場所です。私たちは、あなたのビジネスが輝く未来を一緒に創造していきたいと考えています。ご興味を持たれた方は、ぜひ一度、大野ビルを訪れてみてください。未来への一歩を、ここから始めましょう!
募集終了のテナント区画
| 階数 | 坪数 | 賃料 + 共益費 | 敷金/礼金敷金 礼金 | 検討 |
|---|---|---|---|---|
| 1-2階 | 27.54坪 (91.05m²) | 募集終了 | - | - |
| 3階 | 15.31坪 (50.62m²) | 募集終了 | - | - |
| 4階 | 15.13坪 (50m²) | 募集終了 | - | - |
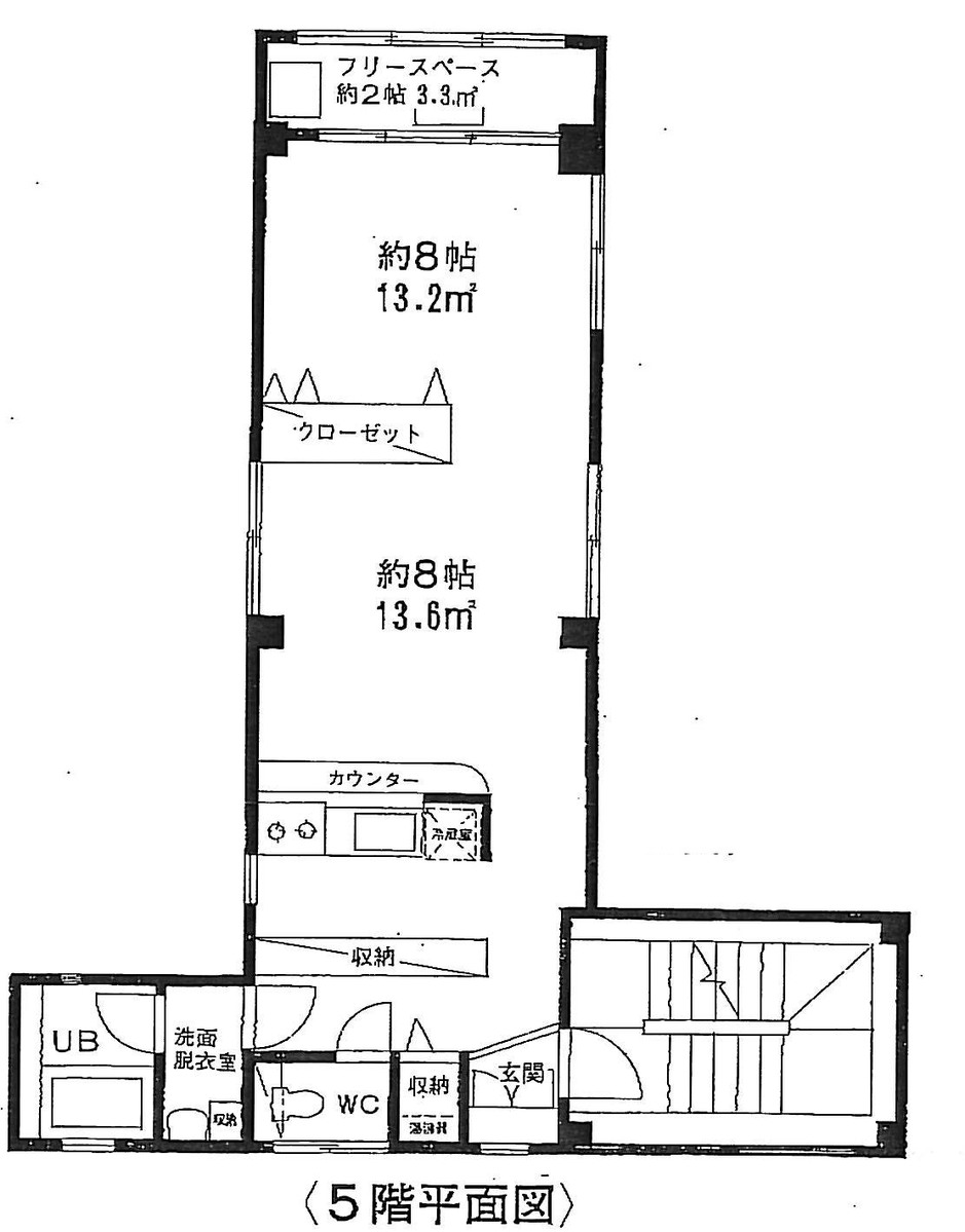
| 5階 | 15.13坪 (50m²) | 募集終了 | - | - |
WEB非公開物件がございます
オーナー様ご希望によるWEB非公開の物件もございます。先ずは条件などお知らせ頂けましたら、非公開物件含めピッタリのオフィスをご提案させて頂きます。具体的な物件がお決まりでない場合でも問題ございません。無理なお勧めはしておりませんので、お気軽にお問い合わせください。
ご来店も歓迎です
オフィス移転は社内・社外ともに非公開に行われることが殆どです。そのためアットオフィスでは、基本的に訪問によるコンサルティングを行っておりますが、ご来店の相談も歓迎です。
※お一人おひとりに親身にご対応させて頂きたい為、要予約とさせて頂いております。ご来店の際は先ずは上記よりご予約下さい。
読込中...
近くのエリアで探してみる
飯田橋/神保町/水道橋エリアで大野ビルに似た条件の物件
読込中...