※このサイトに記載がある賃貸条件は、敷金・保証金などの預かり金を除き、別途消費税がかかります。
お電話でもお気軽にお問い合わせください
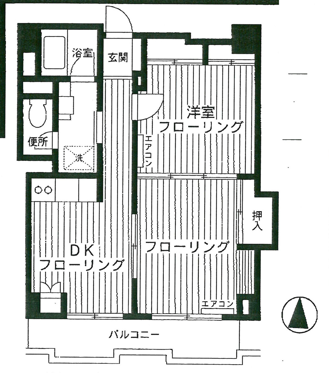
物件情報
設備詳細
| 空調 | - |
|---|---|
| トイレ | - |
| 床仕様 | - |
| エレベータ | - |
| 駐車場設備 | 空有 |
| その他 | - |
パセオ青山ビルは、東京の渋谷区渋谷1丁目という、ビジネスと流行の中心地に位置するマンション型オフィスビルです。この物件はSOHOや事務所利用に適しており、様々な業種の企業が活動の基盤として利用しています。1977年の新耐震基準施行前に建設されましたが、その歴史ある風貌には、一種の風格が感じられます。 ビルのエントランスはオートロックシステムを備えており、訪問者が事前に登録されていない場合は入館が制限されます。これにより、入居企業とその従業員の安全とプライバシーが確保されています。この高級感溢れるエントランスは、ビルに足を踏み入れた瞬間から特別な印象を与えます。 また、ビル内に駐車場が設けられているため、自動車を利用する入居者や来訪者には大変便利です。空き状況は変動があるため、利用を希望される場合は事前にお問い合わせいただくことが必要ですが、このような中心地で駐車場が利用可能であること自体が大きなメリットと言えるでしょう。 立地については、渋谷区はビジネスのみならず、ショッピングやエンターテインメントの中心地としても知られています。そのため、仕事後のリフレッシュやビジネスでの接待などにも最適な環境が整っています。さらに、渋谷駅をはじめとする複数の交通機関へのアクセスが良好なため、都内外からのアクセスの利便性も抜群です。 パセオ青山ビルは、その立地、高級感のあるエントランス、便利な駐車場設備といった特徴を活かし、ビジネスの拠点としてだけでなく、企業イメージの向上にも貢献する物件です。歴史ある建物でありながら、現代のビジネスニーズにもしっかりと応えるこのビルは、新たな事業のスタートや拡大を考えている企業にとって、理想的な選択肢の一つと言えるでしょう。
募集終了のテナント区画
| 階数 | 坪数 | 賃料 + 共益費 | 敷金/礼金敷金 礼金 | 検討 |
|---|---|---|---|---|
| 3階 | 19.2坪 (63.47m²) | 募集終了 | - | - |
| 3階 | 13.93坪 (46.05m²) | 募集終了 | - | - |
| 4階 | 19.2坪 (63.48m²) | 募集終了 | - | - |
WEB非公開物件がございます
オーナー様ご希望によるWEB非公開の物件もございます。先ずは条件などお知らせ頂けましたら、非公開物件含めピッタリのオフィスをご提案させて頂きます。具体的な物件がお決まりでない場合でも問題ございません。無理なお勧めはしておりませんので、お気軽にお問い合わせください。
ご来店も歓迎です
オフィス移転は社内・社外ともに非公開に行われることが殆どです。そのためアットオフィスでは、基本的に訪問によるコンサルティングを行っておりますが、ご来店の相談も歓迎です。
※お一人おひとりに親身にご対応させて頂きたい為、要予約とさせて頂いております。ご来店の際は先ずは上記よりご予約下さい。
読込中...
渋谷エリアでパセオ青山ビルに似た条件の物件
読込中...