※このサイトに記載がある賃貸条件は、敷金・保証金などの預かり金を除き、別途消費税がかかります。
お電話でもお気軽にお問い合わせください
物件情報
設備詳細
| 空調 | - |
|---|---|
| トイレ | - |
| 床仕様 | - |
| エレベータ | 1 基 |
| 駐車場設備 | - |
| その他 | 新耐震基準 |
アクセスマップ
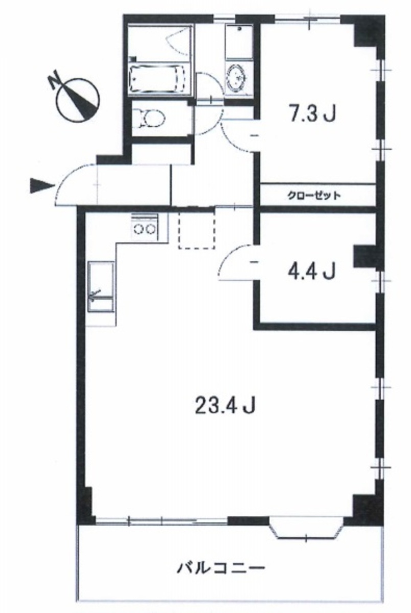
山門ビルは、渋谷区代々木1丁目の静かながらもアクセスに優れた立地に存在する、1991年竣工の地上7階建ての賃貸オフィス物件です。このビルは、その重厚感あふれる石貼りの外観と、現代のビジネスニーズに適応した充実した設備が特長です。基準階坪数約60坪という広さは、中規模企業にとって十分なスペースを提供し、新耐震基準に適合した耐震性能も安心感を与えます。 山門ビルの最大の魅力は、その立地にあります。代々木駅から徒歩わずか2分、南新宿駅からも徒歩3分という抜群のアクセスの良さで、JR山手線・総武線や都営大江戸線を利用可能です。これにより、都内各所への移動が容易で、ビジネスチャンスを広げる絶好の環境を提供します。 内装面においても、山門ビルは魅力的な設備を備えています。システムキッチン、エアコン、給湯設備、浴室乾燥機、独立洗面台といった、通常のオフィスビルにはない充実した設備で、快適なオフィス環境を実現します。これは、従業員の満足度向上や、クライアントを迎える際の印象向上にも繋がります。 さらに、このビルの立地する代々木エリアは、飲食店が複数点在し、コンビニなどの生活便利施設も充実しており、ビジネスだけでなく日々の生活面でも大変便利です。オフィスが角地に位置していることから、自然光がたっぷりと入る明るいオフィス空間も、働く人々の創造性と生産性を高める一助となるでしょう。 セキュリティ面でも、オートロックが採用されており、安全性にも配慮されています。エレベーターは1基設置されており、スムーズな移動をサポートします。 山門ビルは、魅力的な立地、充実した設備、安全性を兼ね備えたオフィスビルです。ビジネスの拠点として、または新たな事業展開の場として、ぜひご検討いただきたい賃貸オフィス物件です。これからのビジネスシーンを豊かに彩る山門ビルで、新たな歴史を刻んでいきませんか?
募集終了のテナント区画
| 階数 | 坪数 | 賃料 + 共益費 | 敷金/礼金敷金 礼金 | 検討 |
|---|---|---|---|---|
| 1階 | 25.33坪 (83.74m²) | 募集終了 | - | - |
| 3階 | 60.12坪 (198.74m²) | 募集終了 | - | - |
| 4階 | 60.12坪 (198.74m²) | 募集終了 | - | - |
| 5階 | 21.47坪 (71m²) | 募集終了 | - | - |
| 5階 | 11.63坪 (38.47m²) | 募集終了 | - | - |
WEB非公開物件がございます
オーナー様ご希望によるWEB非公開の物件もございます。先ずは条件などお知らせ頂けましたら、非公開物件含めピッタリのオフィスをご提案させて頂きます。具体的な物件がお決まりでない場合でも問題ございません。無理なお勧めはしておりませんので、お気軽にお問い合わせください。
ご来店も歓迎です
オフィス移転は社内・社外ともに非公開に行われることが殆どです。そのためアットオフィスでは、基本的に訪問によるコンサルティングを行っておりますが、ご来店の相談も歓迎です。
※お一人おひとりに親身にご対応させて頂きたい為、要予約とさせて頂いております。ご来店の際は先ずは上記よりご予約下さい。
読込中...
近くのエリアで探してみる
代々木/初台/幡ヶ谷エリアで山門ビルに似た条件の物件
読込中...