※このサイトに記載がある賃貸条件は、敷金・保証金などの預かり金を除き、別途消費税がかかります。
お電話でもお気軽にお問い合わせください
物件情報
設備詳細
| 空調 | - |
|---|---|
| トイレ | - |
| 床仕様 | - |
| エレベータ | 1 基 |
| 駐車場設備 | - |
| その他 | 機械警備 / 新耐震基準 |
アクセスマップ
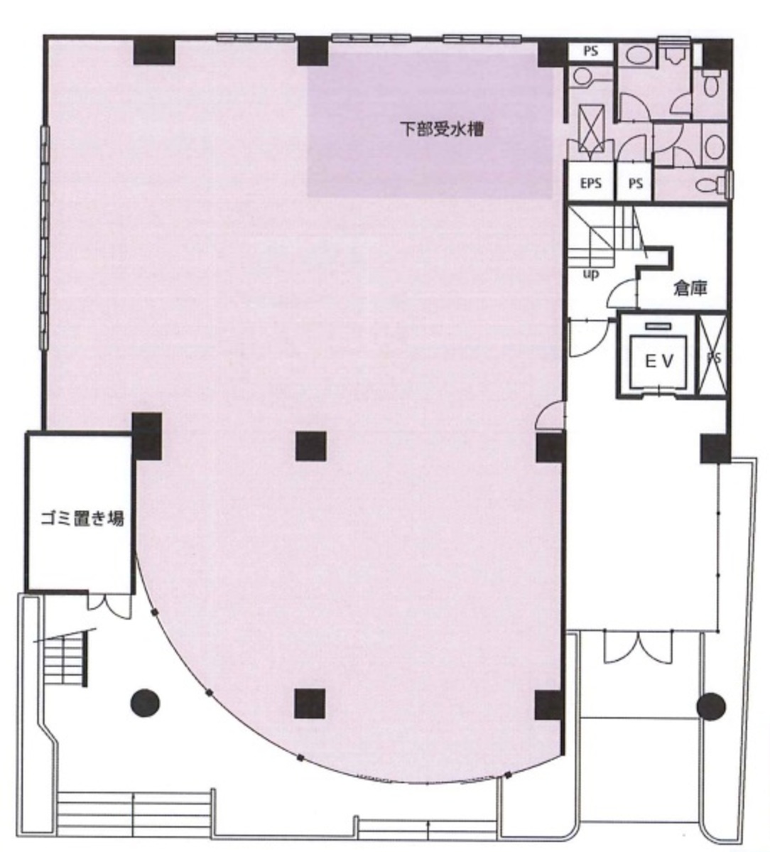
青山第一田中ビルは、渋谷区渋谷2丁目、青山通りから一本入った静かな路地に立地する賃貸オフィスビルです。1988年に竣工したこのビルは、青山学院大学の隣という恵まれた環境に位置し、表参道駅と渋谷駅の中間にあるため、交通アクセスの利便性は非常に高いです。渋谷駅からは徒歩10分弱、表参道駅も同様に徒歩圏内となっており、JR線、地下鉄、私鉄など9路線が利用可能であり、ビジネスの拠点として最適な立地条件を備えています。 ビルの外観は、丸みを帯びた独特なデザインが特徴で、視認性が高く、個性的な企業イメージの構築にも寄与します。ビル内の設備は、高さ30mmのOAフロア(7階を除く)、男女別トイレ、個別空調システムを完備しており、テナントのニーズに応じた快適なオフィス環境を提供します。エレベーターは1基設置されており、1階には美容室が入居しています。 ビルの周辺環境も魅力の一つです。徒歩2分の場所にローソンがあり、青山通りに出ると多数の飲食店やカフェ、コンビニが営業しており、ビジネスだけでなく日常生活においても便利さを享受できます。さらに、徒歩5分程度で宮益坂にアクセスでき、郵便局など各種サービスが充実しています。 オフィスの区画はフロアによって異なり、基準階は約50坪の長方形で、1階と2階は特徴的な丸み部分を持つ間取りとなっています。最上階の7階は約20坪となっており、テナントの規模や用途に応じてフレキシブルに対応可能です。 このように、青山第一田中ビルは、その立地、設備、周辺環境の全てにおいて、ビジネスの成功を後押しする魅力的なオフィススペースを提供しています。企業の拠点として、またはスタートアップのためのオフィスとして、青山第一田中ビルは、あらゆる企業にとって理想的な選択肢となるでしょう。
募集終了のテナント区画
| 階数 | 坪数 | 賃料 + 共益費 | 敷金/礼金敷金 礼金 | 検討 |
|---|---|---|---|---|
| 1階 | 79.68坪 (263.48m²) | 募集終了 | - | - |
| 2階 | 86.15坪 (284.79m²) | 募集終了 | - | - |
| 3階 | 52.47坪 (173.45m²) | 募集終了 | - | - |
| 4階 | 52.47坪 (173.45m²) | 募集終了 | - | - |
| 5階 | 104.94坪 (346.9m²) | 募集終了 | - | - |
| 5階 | 52.47坪 (173.45m²) | 募集終了 | - | - |
| 6階 | 52.47坪 (173.45m²) | 募集終了 | - | - |
| 7階 | 20坪 (66.12m²) | 募集終了 | - | - |
| 7階 | 14.88坪 (49.19m²) | 募集終了 | - | - |
WEB非公開物件がございます
オーナー様ご希望によるWEB非公開の物件もございます。先ずは条件などお知らせ頂けましたら、非公開物件含めピッタリのオフィスをご提案させて頂きます。具体的な物件がお決まりでない場合でも問題ございません。無理なお勧めはしておりませんので、お気軽にお問い合わせください。
ご来店も歓迎です
オフィス移転は社内・社外ともに非公開に行われることが殆どです。そのためアットオフィスでは、基本的に訪問によるコンサルティングを行っておりますが、ご来店の相談も歓迎です。
※お一人おひとりに親身にご対応させて頂きたい為、要予約とさせて頂いております。ご来店の際は先ずは上記よりご予約下さい。
読込中...
渋谷エリアで青山第1田中ビルに似た条件の物件
読込中...