※このサイトに記載がある賃貸条件は、敷金・保証金などの預かり金を除き、別途消費税がかかります。
お電話でもお気軽にお問い合わせください
物件情報
設備詳細
| 空調 | 個別空調 |
|---|---|
| トイレ | - |
| 床仕様 | - |
| エレベータ | - |
| 駐車場設備 | 空有 / 平置き駐車場 |
| その他 | 光ファイバー / 新耐震基準 |
アクセスマップ
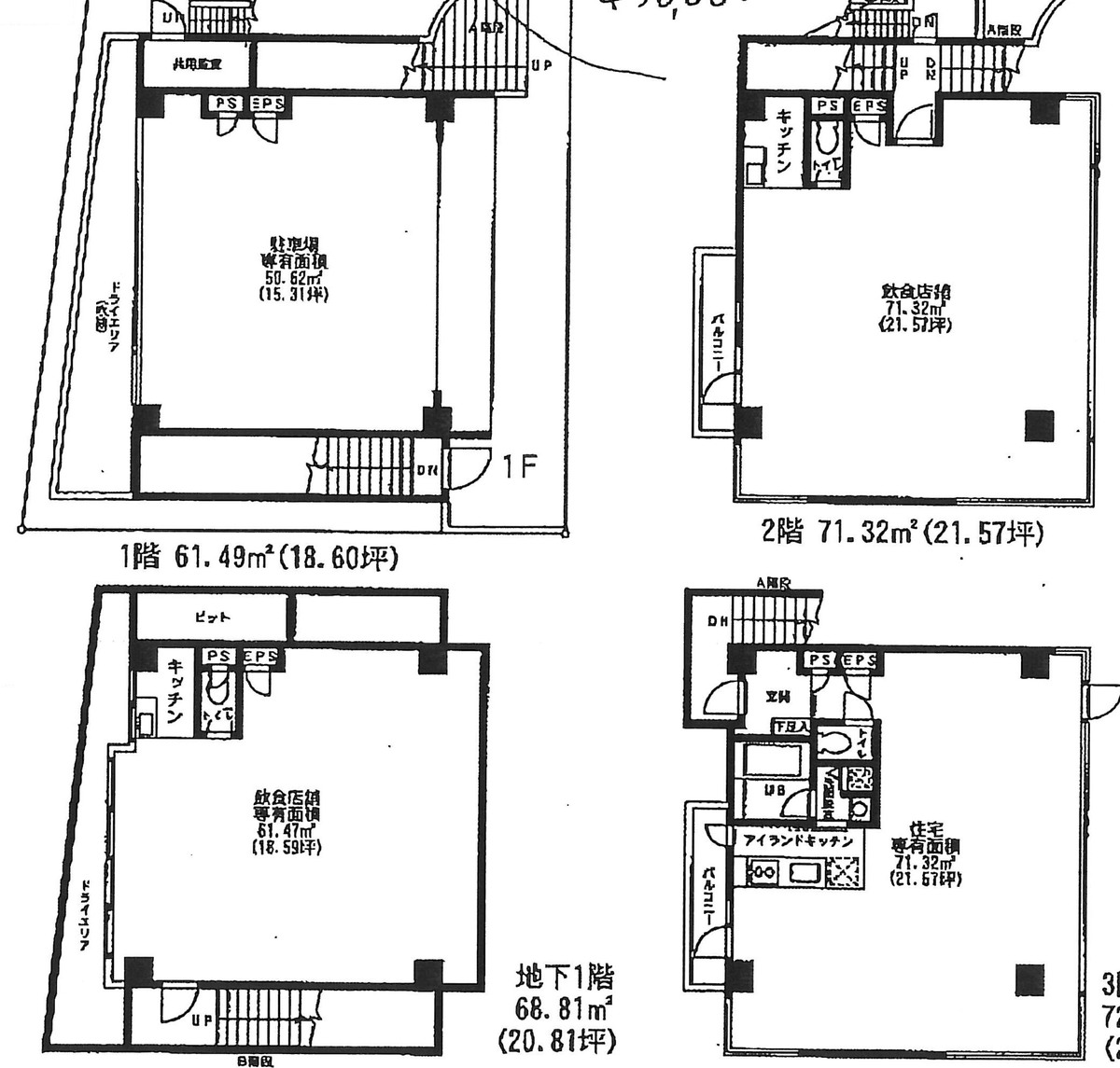
渋谷区千駄ヶ谷に位置する「Barbizon59」は、原宿の閑静なエリアにある賃貸オフィスビルです。2007年に竣工されたこの物件は、地下1階、地上3階建ての構造で、その外観はコンクリートの打ちっぱなしとなっており、現代的なデザイン性を感じさせます。特に、大きな窓面は建物全体に広がっており、通りからの視認性が高く、自然光がたっぷりと入るため、明るいオフィス環境を提供します。 この物件の立地は非常に魅力的で、原宿駅から徒歩4分、明治神宮前駅から徒歩7分、北参道駅から徒歩9分と、複数の駅へのアクセスが便利な点が特徴です。これにより、従業員やクライアントの通勤、訪問が非常に容易になります。また、この地域はアパレル会社やクリエイティブ系企業に人気のエリアであり、周囲には同様の業種の企業が多数存在します。 Barbizon59は、その設計上、店舗兼住居タイプの1棟物件としての利用も可能であり、1階部分はショーウィンドウとしての利用や、高い採光を利用した店舗展開が可能です。また、平置きの駐車スペースが2台分あり、都心部での駐車場確保の難しさを考慮すると、この点も大きなメリットと言えるでしょう。 渋谷区千駄ヶ谷エリアは、都心にありながらも閑静で住みやすいエリアとして知られており、オフィスの賃貸相場も安定しています。Barbizon59は、その立地やデザイン性、利便性を兼ね備えた物件として、特にデザインやブランディングに重きを置く企業にとって魅力的な選択肢となります。 結論として、Barbizon59は、立地の良さ、デザイン性、機能性を兼ね備えた賃貸オフィスビルです。特にクリエイティブ系の企業やアパレル関連の業種においては、そのブランドイメージを高めるためのオフィススペースとして、また商業施設としても高いポテンシャルを持っています。渋谷区千駄ヶ谷エリアでの新たな拠点設立や拡張を考えている企業にとって、注目すべき物件であることは間違いありません。
募集終了のテナント区画
| 階数 | 坪数 | 賃料 + 共益費 | 敷金/礼金敷金 礼金 | 検討 |
|---|---|---|---|---|
| B1-3階 | 80.68坪 (266.71m²) | 募集終了 | - | - |
| B1階 | 60.99坪 (201.62m²) | 募集終了 | - | - |
| B1階 | 21.77坪 (71.97m²) | 募集終了 | - | - |
| 1階 | 17.98坪 (59.43m²) | 募集終了 | - | - |
| 2階 | 18.97坪 (62.7m²) | 募集終了 | - | - |
WEB非公開物件がございます
オーナー様ご希望によるWEB非公開の物件もございます。先ずは条件などお知らせ頂けましたら、非公開物件含めピッタリのオフィスをご提案させて頂きます。具体的な物件がお決まりでない場合でも問題ございません。無理なお勧めはしておりませんので、お気軽にお問い合わせください。
ご来店も歓迎です
オフィス移転は社内・社外ともに非公開に行われることが殆どです。そのためアットオフィスでは、基本的に訪問によるコンサルティングを行っておりますが、ご来店の相談も歓迎です。
※お一人おひとりに親身にご対応させて頂きたい為、要予約とさせて頂いております。ご来店の際は先ずは上記よりご予約下さい。
読込中...
表参道/外苑前エリアでバルビゾン59ビルに似た条件の物件
読込中...