※このサイトに記載がある賃貸条件は、敷金・保証金などの預かり金を除き、別途消費税がかかります。
物件情報
設備詳細
| 空調 | - |
|---|---|
| トイレ | - |
| 床仕様 | - |
| エレベータ | - |
| 駐車場設備 | - |
| その他 | 新耐震基準 / SOHO/マンション / エレベーター無 |
ラポール南青山ビルの賃貸オフィス・事務所に関するお問い合わせ
ラポール南青山ビルについて
ラポール南青山マンションとラポール南青山ビルは、ともに東京の高級住宅街でありビジネスエリアの中心に位置する港区南青山にあります。それぞれの物件が提供する独特の魅力と、ビジネスや生活における便利さをご紹介いたします。 【ラポール南青山マンション】 1989年に竣工したラポール南青山マンションは、新耐震基準を満たしており、安全性に配慮された建築です。立地は外苑西通りから一本入った場所に位置し、外苑前駅から徒歩6分、表参道駅から徒歩8分の距離にあります。複数の鉄道路線へのアクセスが可能であり、目黒や千駄ヶ谷へのバス路線も近く、東京都内の主要地域への移動が非常に便利です。住居やビルが立ち並ぶエリア内にあるため、周辺環境は整っており、日常の買い物や食事には困りません。コンビニ、飲食店、スーパーが至近距離にあり、郵便局や銀行も徒歩圏内に位置しています。これらの点から、都心での生活やビジネスに最適な立地条件を備えています。 【ラポール南青山ビル】 ラポール南青山ビルは、南青山4丁目に所在するオフィス賃貸物件です。外苑西通り近くに位置し、アクセスの良さはマンション同様に優れています。このビルはビジネス利用に最適化されており、周辺には多くの企業がオフィスを構えています。立地の利点としては、複数の鉄道路線が利用可能なことに加え、バスルートも充実しているため、東京都内外へのアクセスが容易です。近隣には飲食店やコンビニ、銀行や郵便局などがあり、ビジネスシーンでの利便性が高いです。また、南青山エリアはその地名の通り、品格と落ち着きを兼ね備えており、企業イメージの向上にも寄与します。 まとめると、ラポール南青山マンションは生活の便利さと安全性を兼ね備えた住宅物件であり、ラポール南青山ビルはビジネスの利便性と企業イメージの向上を考慮したオフィス賃貸物件です。それぞれの物件が提供する独自の価値と魅力により、住居用途とビジネス用途の両方で高い満足度を提供することができます。
ラポール南青山ビルのこだわり
自分で探すより問い合わせる方が早いことがあります
WEB非公開物件があるから
オーナー様のご希望により「WEBでは非公開」にしている物件があります。 それらはWEBでいくら検索しても見つかりません。 先ずは条件などお知らせ頂けましたら非公開物件含め ピッタリのオフィスをご提案させて頂きます。 無理なお勧めはしておりませんので、お気軽にお問い合わせください。
対面でのご相談も受け付けております
ご来店も歓迎です
オフィス移転は社内・社外ともに非公開に行われることが殆どです。そのためアットオフィスでは、基本的に訪問によるコンサルティングを行っておりますが、ご来店の相談も歓迎です。お一人おひとりに親身にご対応させて頂きたい為、要予約とさせて頂いております。ご来店の際は先ずは下記よりご予約下さい。
募集終了のテナント区画
| 階数 | 坪数 | 賃料 + 共益費 | 敷金/礼金敷金 礼金 | 検討 |
|---|---|---|---|---|
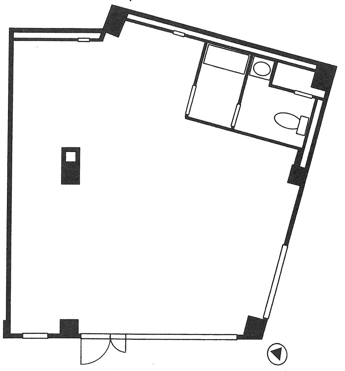
| 4階 | 14.26坪 (47.15m²) | 募集終了 | - | - |
読込中...
青山エリアでラポール南青山ビルに似た条件の物件
読込中...
| 取扱様態 | 仲介 |
|---|---|
| 取扱会社 | 株式会社 アットオフィス |