※このサイトに記載がある賃貸条件は、敷金・保証金などの預かり金を除き、別途消費税がかかります。
お電話でもお気軽にお問い合わせください
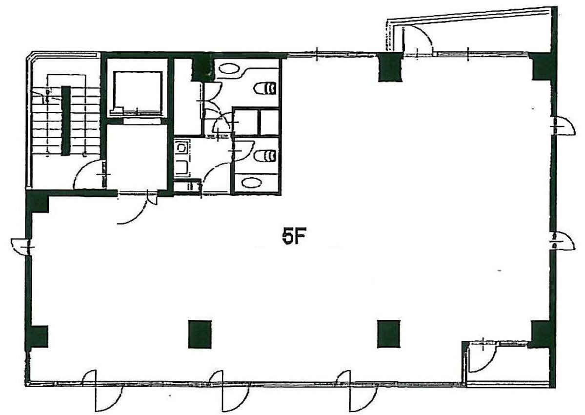
物件情報
設備詳細
| 空調 | - |
|---|---|
| トイレ | - |
| 床仕様 | - |
| エレベータ | 1 基 |
| 駐車場設備 | 空無 |
| その他 | 機械警備 / 新耐震基準 / オートロック |
アクセスマップ
渋谷区恵比寿に位置するNAGAHAMAビルは、1991年に竣工された地上8階建てのオフィス賃貸物件で、新耐震基準に準拠した安全性を確保した建物です。恵比寿駅および広尾駅から徒歩10分圏内というアクセスの良さが特徴で、JR山手線・埼京線・湘南新宿ライン・東京メトロ日比谷線が利用可能です。この立地により、都心への移動が容易で、ビジネスシーンにおいて大きなアドバンテージとなります。 このビルの1フロアあたりの規模は約40坪で、光ケーブルやOAフロアが導入されており、現代のオフィスに必要なITインフラが整っています。大きな窓からは自然光がたっぷりと入り、開放感あふれる明るいオフィス環境を提供します。また、各階には個別空調を装備し、快適なオフィス環境を一年中保つことができます。1階には時間貸しの駐車場もあり、来客時の利便性にも配慮されています。 セキュリティ面では、機械警備やエントランスの夜間オートロックシステムを採用し、入居企業の安全を守ります。また、エレベーターは1基設置されており、スムーズな移動が可能です。男女別トイレや給湯室も各階に完備されており、オフィス内の快適さを追求しています。 周辺環境も魅力的で、恵比寿エリアは多彩な飲食店が立ち並び、ランチやアフター5の時間を楽しむことができます。また、渋谷恵比寿郵便局やみずほ銀行恵比寿支店など、ビジネスに必要な施設も徒歩圏内に揃っています。 NAGAHAMAビルは、最新のオフィス環境と安全性、そして恵比寿という恵まれた立地を生かしたオフィスビルです。これらの特性は、新しいオフィスを検討されている企業にとって大きな魅力となるでしょう。立地、設備、環境の三拍子が揃ったこの物件は、あなたのビジネスをさらに飛躍させること間違いありません。
募集終了のテナント区画
| 階数 | 坪数 | 賃料 + 共益費 | 敷金/礼金敷金 礼金 | 検討 |
|---|---|---|---|---|
| 1階 | 20坪 (66.11m²) | 募集終了 | - | - |
| 2階 | 41.96坪 (138.71m²) | 募集終了 | - | - |
| 3階 | 41.96坪 (138.71m²) | 募集終了 | - | - |
| 4階 | 41.96坪 (138.71m²) | 募集終了 | - | - |
WEB非公開物件がございます
オーナー様ご希望によるWEB非公開の物件もございます。先ずは条件などお知らせ頂けましたら、非公開物件含めピッタリのオフィスをご提案させて頂きます。具体的な物件がお決まりでない場合でも問題ございません。無理なお勧めはしておりませんので、お気軽にお問い合わせください。
ご来店も歓迎です
オフィス移転は社内・社外ともに非公開に行われることが殆どです。そのためアットオフィスでは、基本的に訪問によるコンサルティングを行っておりますが、ご来店の相談も歓迎です。
※お一人おひとりに親身にご対応させて頂きたい為、要予約とさせて頂いております。ご来店の際は先ずは上記よりご予約下さい。
読込中...
近くのエリアで探してみる
恵比寿/代官山/広尾エリアでNAGAHAMAビルに似た条件の物件
読込中...