※このサイトに記載がある賃貸条件は、敷金・保証金などの預かり金を除き、別途消費税がかかります。
物件情報
設備詳細
| 空調 | - |
|---|---|
| トイレ | - |
| 床仕様 | - |
| エレベータ | 1 基 |
| 駐車場設備 | - |
| その他 | 機械警備 / 24時間利用可 / 光ファイバー / 新耐震基準 |
アンソレイエ・オオタの賃貸オフィス・事務所に関するお問い合わせ
アンソレイエ・オオタについて
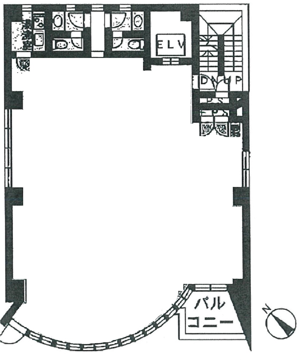
アンソレイエ・オオタビルは、東京都中央区日本橋箱崎町に位置する、ビジネスシーンに最適な賃貸オフィスビルです。1993年に竣工されたこのビルは、最新の耐震基準に基づいて建設されており、安全性に優れています。地上8階建てのこの物件は、基準階約46坪の広々としたオフィススペースを提供し、柔軟なレイアウトが可能であるため、様々なビジネス形態に対応できます。 立地においては、アンソレイエ・オオタビルは非常にアクセスが良好です。東京シティエアターミナルから徒歩3分、水天宮前駅からも徒歩3分という位置にあり、都心へのアクセスや移動の利便性が高いのが特徴です。この立地は、ビジネスの機会を広げる上で大きなアドバンテージとなります。 ビルの設備に関しては、1基のエレベーターがスムーズな移動をサポートし、24時間利用可能な男女別トイレ、個別空調システム、機械警備システムなど、オフィス環境を快適に保つための設備が整っています。また、ビル内に月極駐車場があるため、来客時の快適なアクセスが保証されます。 オフィス内部は、特徴的な半円形の窓面を持ち、自然光が豊富に入るため明るく開放感のある空間を実現しています。このような環境は、働く人々の創造性や生産性を高めることが期待できます。さらに、高い天井とダイレクトインの構造は、自由度の高いオフィスレイアウトを可能にし、快適なワークスペースを提供します。 周辺環境も非常に良好で、箱崎公園が近くにあり、オフィスでの忙しい日々の中でも自然を感じることができる貴重なロケーションにあります。また、徒歩圏内にコンビニ、飲食店、郵便局などがあり、日常の利便性も高いです。 アンソレイエ・オオタビルは、優れた安全性、抜群のアクセス、快適なオフィス環境、そして充実した周辺施設を兼ね備え、ビジネスの成功をサポートする理想的なオフィススペースです。高スペックな設備と魅力的なロケーションで、ビジネスの可能性を広げるための最適な場所を提供します。
アンソレイエ・オオタのこだわり
自分で探すより問い合わせる方が早いことがあります
WEB非公開物件があるから
オーナー様のご希望により「WEBでは非公開」にしている物件があります。 それらはWEBでいくら検索しても見つかりません。 先ずは条件などお知らせ頂けましたら非公開物件含め ピッタリのオフィスをご提案させて頂きます。 無理なお勧めはしておりませんので、お気軽にお問い合わせください。
対面でのご相談も受け付けております
ご来店も歓迎です
オフィス移転は社内・社外ともに非公開に行われることが殆どです。そのためアットオフィスでは、基本的に訪問によるコンサルティングを行っておりますが、ご来店の相談も歓迎です。お一人おひとりに親身にご対応させて頂きたい為、要予約とさせて頂いております。ご来店の際は先ずは下記よりご予約下さい。
募集終了のテナント区画
| 階数 | 坪数 | 賃料 + 共益費 | 敷金/礼金敷金 礼金 | 検討 |
|---|---|---|---|---|
| 3階 | 47.78坪 (157.96m²) | 募集終了 | - | - |
読込中...
近くのエリアで探してみる
人形町/馬喰町/浜町エリアでアンソレイエ・オオタに似た条件の物件
読込中...
| 取扱様態 | 仲介 |
|---|---|
| 取扱会社 | 株式会社 アットオフィス |