※このサイトに記載がある賃貸条件は、敷金・保証金などの預かり金を除き、別途消費税がかかります。
物件情報
設備詳細
| 空調 | - |
|---|---|
| トイレ | - |
| 床仕様 | - |
| エレベータ | 1 基 |
| 駐車場設備 | - |
| その他 | - |
出井本館の賃貸オフィス・事務所に関するお問い合わせ
出井本館について
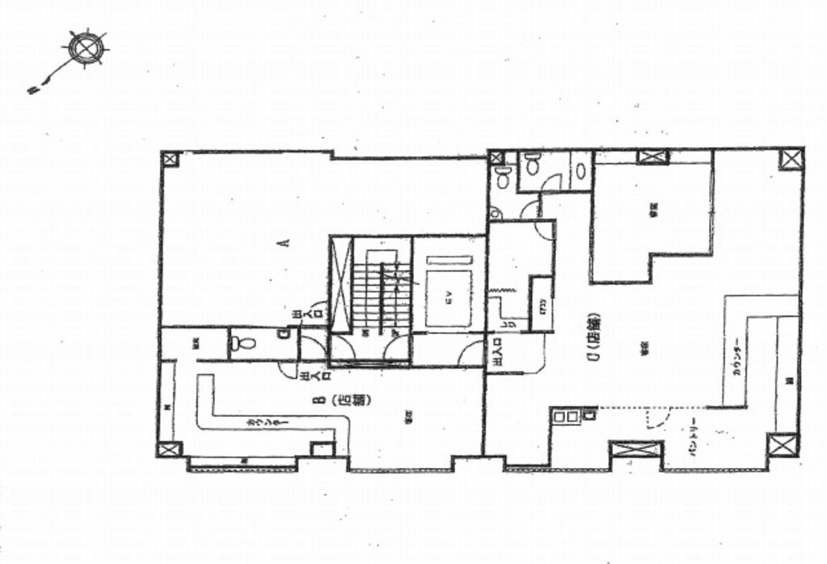
銀座の中心、数寄屋通り沿いに佇む「出井本館ビル」は、1971年に竣工したレンガ造りの外観が魅力的な4階建てのオフィス賃貸物件です。そのクラシックな外観と、モダンで落ち着いた雰囲気のモノトーンを基調とした室内が、働く人々に安らぎと落ち着きを提供します。1フロアあたり約56坪の広さを誇るこのビルは、ビジネスの多様なニーズに柔軟に応えることができる構造となっており、フロアごとに異なる坪数のオプションもございますので、お客様の要望に合わせた最適なオフィススペースをご提案できます。 このビルの特徴の一つは、エレベーターが1基設置されていること、また、1階には利便性を高める飲食店が入居していることです。出井本館ビルは、ビジネスだけでなく日々の生活にも便利な環境を提供します。 立地においても、銀座という東京を代表するビジネスとショッピングの中心地に位置し、周辺には飲食店が豊富にあり、働く人々のランチタイムやアフターファイブを充実させます。最寄り駅は銀座駅であり、新橋駅、有楽町駅、日比谷駅、銀座一丁目駅など、複数の駅と路線が利用可能で非常にアクセスが便利です。この立地は、ビジネスの機会を広げる上で大きな強みとなるでしょう。 出井本館ビルは、その歴史を感じさせる外観とモダンな内装の融合、そして銀座という抜群の立地条件を兼ね備え、ビジネスを成功に導くための最適な環境を提供します。オフィスとしての機能性はもちろんのこと、働く人々の心を豊かにするような快適な空間がここにはあります。あなたのビジネスの新たな拠点として、出井本館ビルを是非ご検討ください。未来への一歩を、この地から始めましょう。
出井本館のこだわり
自分で探すより問い合わせる方が早いことがあります
WEB非公開物件があるから
オーナー様のご希望により「WEBでは非公開」にしている物件があります。 それらはWEBでいくら検索しても見つかりません。 先ずは条件などお知らせ頂けましたら非公開物件含め ピッタリのオフィスをご提案させて頂きます。 無理なお勧めはしておりませんので、お気軽にお問い合わせください。
対面でのご相談も受け付けております
ご来店も歓迎です
オフィス移転は社内・社外ともに非公開に行われることが殆どです。そのためアットオフィスでは、基本的に訪問によるコンサルティングを行っておりますが、ご来店の相談も歓迎です。お一人おひとりに親身にご対応させて頂きたい為、要予約とさせて頂いております。ご来店の際は先ずは下記よりご予約下さい。
募集終了のテナント区画
| 階数 | 坪数 | 賃料 + 共益費 | 敷金/礼金敷金 礼金 | 検討 |
|---|---|---|---|---|
| 1階 | 129.6坪 (428.43m²) | 募集終了 | - | - |
| 2階 | 56.14坪 (185.54m²) | 募集終了 | - | - |
| 3階 | 12.56坪 (41.52m²) | 募集終了 | - | - |
| 3階 | 30坪 (99.17m²) | 募集終了 | - | - |
| 4階 | 20.99坪 (69.39m²) | 募集終了 | - | - |
| 4階 | 10.07坪 (33.29m²) | 募集終了 | - | - |
読込中...
銀座エリアで出井本館に似た条件の物件
読込中...
| 取扱様態 | 仲介 |
|---|---|
| 取扱会社 | 株式会社 アットオフィス |