※このサイトに記載がある賃貸条件は、敷金・保証金などの預かり金を除き、別途消費税がかかります。
物件情報
設備詳細
| 空調 | 個別空調 |
|---|---|
| トイレ | 男女別トイレ室内 |
| 床仕様 | - |
| エレベータ | 1 基 |
| 駐車場設備 | 空有 / 機械式駐車場 |
| その他 | 機械警備 / 光ファイバー / 新耐震基準 / クリニック |
サウスポイント三鷹の賃貸オフィス・事務所に関するお問い合わせ
サウスポイント三鷹について
サウスポイント三鷹のご紹介です。この物件は大通り沿いの角地に位置し、視認性が非常に高い希少な貸しビルとなっています。前面が開けた設計で、オフィスからの眺望は抜群。毎日快適に業務を行うことができます。 利便性も抜群で、三鷹駅から徒歩わずか2分の立地です。通勤のストレスを軽減し、時間を有効に活用できます。また、駐車場も完備しており、車でのアクセスも問題ありません。ビルは地上8階建てで、新耐震基準をクリアしており、安心してご利用いただけます。 設備面では、機械警備システムが導入されており、セキュリティ対策がしっかりしています。個別空調が設置されているため、快適な室内環境を自由に調整可能です。さらに、24時間利用可能なため、フレキシブルな働き方にも対応できます。エレベーターも1基設置されており、移動もスムーズです。 2012年にはエントランスホールがリニューアルされ、来訪者にも好印象を与える清潔感ある空間が広がります。眺望、アクセス、設備と三拍子揃ったサウスポイント三鷹で、新たなビジネスの拠点を築いてみませんか。ぜひ実際にご見学いただき、その魅力を肌で感じてください。
自分で探すより問い合わせる方が早いことがあります
WEB非公開物件があるから
オーナー様のご希望により「WEBでは非公開」にしている物件があります。 それらはWEBでいくら検索しても見つかりません。 先ずは条件などお知らせ頂けましたら非公開物件含め ピッタリのオフィスをご提案させて頂きます。 無理なお勧めはしておりませんので、お気軽にお問い合わせください。
対面でのご相談も受け付けております
ご来店も歓迎です
オフィス移転は社内・社外ともに非公開に行われることが殆どです。そのためアットオフィスでは、基本的に訪問によるコンサルティングを行っておりますが、ご来店の相談も歓迎です。お一人おひとりに親身にご対応させて頂きたい為、要予約とさせて頂いております。ご来店の際は先ずは下記よりご予約下さい。
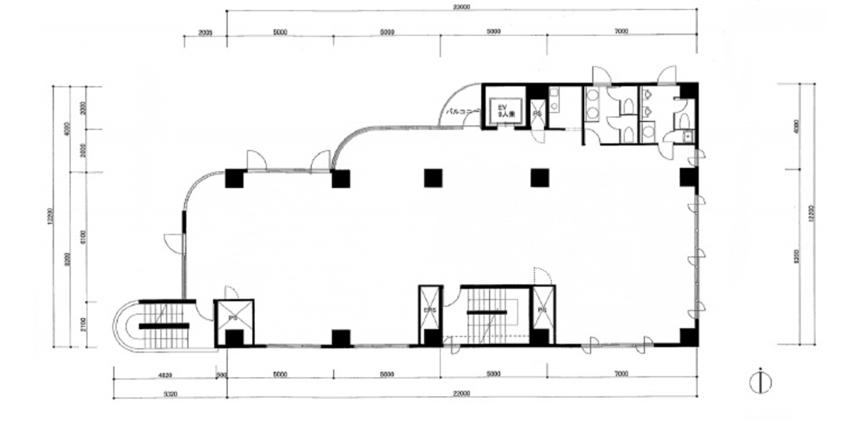
募集終了のテナント区画
| 階数 | 坪数 | 賃料 + 共益費 | 敷金/礼金敷金 礼金 | 検討 |
|---|---|---|---|---|
| 1階 | 34.26坪 (113.25m²) | 募集終了 | - | - |
| 3階 | 66.18坪 (218.77m²) | 募集終了 | - | - |
| 6階 | 66.18坪 (218.78m²) | 募集終了 | - | - |
| 8階 | 66坪 (218.18m²) | 募集終了 | - | - |
読込中...
三鷹市エリアでサウスポイント三鷹に似た条件の物件
読込中...
| 取扱様態 | 仲介 |
|---|---|
| 取扱会社 | 株式会社 アットオフィス |