※このサイトに記載がある賃貸条件は、敷金・保証金などの預かり金を除き、別途消費税がかかります。
物件情報
設備詳細
| 空調 | - |
|---|---|
| トイレ | - |
| 床仕様 | - |
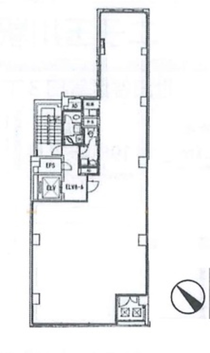
| エレベータ | 1 基 |
| 駐車場設備 | - |
| その他 | 機械警備 / 24時間利用可 / 光ファイバー / 新耐震基準 |
クレグラン新橋Ⅲビルの賃貸オフィス・事務所に関するお問い合わせ
クレグラン新橋Ⅲビルについて
東京都港区新橋3丁目、ビジネスと文化の交差点に位置する「クレグラン新橋Ⅲ」は、その卓越した立地と充実した設備で、あらゆるビジネスニーズに応える理想のオフィス空間を提供します。1987年に竣工されたこのビルは、地上9階・地下1階建ての構造で、基準階約43坪のゆとりあるオフィススペースを提供しています。最寄り駅である新橋駅、内幸町駅からは徒歩約5分と、アクセスの良さも抜群です。 「クレグラン新橋Ⅲ」の立地は、新橋エリアの中でも特に便利な場所にあります。駅周辺は飲食店が豊富で、ランチやアフター5の憩いの場として最適。また、徒歩圏内にはコンビニ、郵便局、各種銀行の支店があり、日常の業務に必要なあらゆるサービスが手軽に利用できる環境です。ビジネスだけでなく、オフィスライフを充実させる要素も整っています。 ビルの設備面では、24時間利用可能なセキュリティシステムを完備。機械警備により、入居企業の安心と安全を守ります。また、個別空調システムにより、オフィス内の環境を自由にコントロールできるため、快適なワークスペースを確保できます。エレベーターは1基設置されており、光ファイバー対応のインフラも整っているため、スムーズなビジネス運営をサポートします。 設備だけではなく、デザイン面においても「クレグラン新橋Ⅲ」は魅力的です。ガラス張りの外観は現代的でスタイリッシュ、エントランスはリニューアル済みで、訪れる人々に清潔感と高級感を与えます。加えて、各階には南向きのバルコニーが設けられ、明るい日差しと開放感をオフィス内に取り込むことができます。 新橋エリアのオフィス市場は、その利便性と文化的背景から、常に高い需要が見込まれます。特に、「クレグラン新橋Ⅲ」のような立地条件、設備、デザイン性を兼ね備えた物件は、ビジネスの機会を最大限に引き出すための重要な基盤となるでしょう。ビジネスの拡大や新たなチャレンジを考えている企業にとって、最適な選択肢の一つです。立地の良さ、利便性、そして快適なオフィス環境を求める全てのビジネスパーソンに、「クレグラン新橋Ⅲ」を自信を持ってお勧めします。
クレグラン新橋Ⅲビルのこだわり
自分で探すより問い合わせる方が早いことがあります
WEB非公開物件があるから
オーナー様のご希望により「WEBでは非公開」にしている物件があります。 それらはWEBでいくら検索しても見つかりません。 先ずは条件などお知らせ頂けましたら非公開物件含め ピッタリのオフィスをご提案させて頂きます。 無理なお勧めはしておりませんので、お気軽にお問い合わせください。
対面でのご相談も受け付けております
ご来店も歓迎です
オフィス移転は社内・社外ともに非公開に行われることが殆どです。そのためアットオフィスでは、基本的に訪問によるコンサルティングを行っておりますが、ご来店の相談も歓迎です。お一人おひとりに親身にご対応させて頂きたい為、要予約とさせて頂いております。ご来店の際は先ずは下記よりご予約下さい。
募集終了のテナント区画
| 階数 | 坪数 | 賃料 + 共益費 | 敷金/礼金敷金 礼金 | 検討 |
|---|---|---|---|---|
| B1階 | 24.68坪 (81.59m²) | 募集終了 | - | - |
| 1階 | 29.81坪 (98.56m²) | 募集終了 | - | - |
| 3階 | 42.62坪 (140.89m²) | 募集終了 | - | - |
| 4階 | 42.62坪 (140.89m²) | 募集終了 | - | - |
| 8階 | 23.72坪 (78.41m²) | 募集終了 | - | - |
読込中...
近くのエリアで探してみる
新橋/虎ノ門/神谷町エリアでクレグラン新橋Ⅲビルに似た条件の物件
読込中...
| 取扱様態 | 仲介 |
|---|---|
| 取扱会社 | 株式会社 アットオフィス |