※このサイトに記載がある賃貸条件は、敷金・保証金などの預かり金を除き、別途消費税がかかります。
物件情報
設備詳細
| 空調 | 個別空調 |
|---|---|
| トイレ | 男女別トイレ室内 |
| 床仕様 | - |
| エレベータ | 1 基 |
| 駐車場設備 | - |
| その他 | 24時間利用可 / 光ファイバー / 新耐震基準 / クリニック |
銀座KMビルの賃貸オフィス・事務所に関するお問い合わせ
銀座KMビルについて
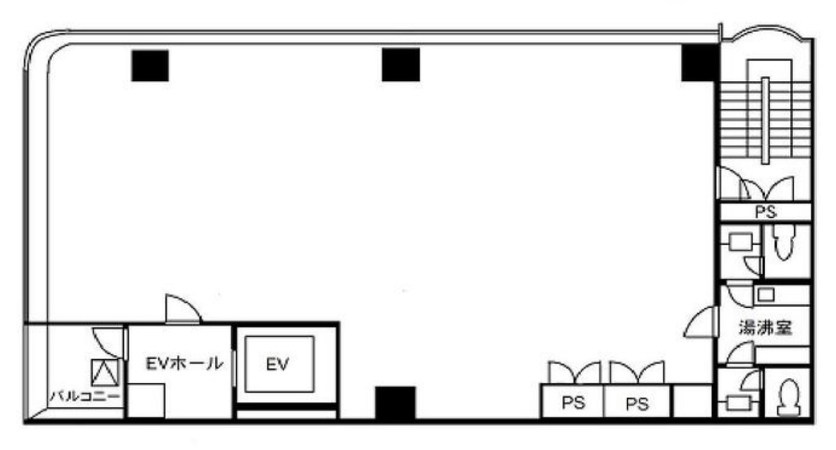
銀座KMビルは、東京都中央区銀座8丁目に位置する、1994年竣工のモダンで洗練されたオフィスビルです。このビルは、その外観が全体的に茶色の御影石で覆われており、高級感溢れるデザインが特徴的です。地上9階建て、地下1階の構造を有し、基準階の貸事務所スペースは約50坪で提供されています。各オフィススペースは、レイアウトの自由度が高く、2方向に窓が配置されているため、自然光がたっぷりと入る明るい環境が魅力です。 立地においても、銀座KMビルは非常に恵まれています。最寄りの東銀座駅からは徒歩5分という駅近の便利さを誇り、汐留駅や新橋駅も徒歩圏内にあるため、複数の交通網を利用することが可能です。この立地は、ビジネスの機動性を高めるだけでなく、クライアントとのアクセス性の良さを提供します。 ビルの設備面では、セキュリティシステムに機械式警備を採用しており、入居企業の安全を確保。また、エントランスにはステンドグラスが設置されており、訪れる人々に高級感と歓迎の雰囲気を与えます。ビル内にはエレベーターが1機設置されており、地下には区営駐車場も完備しています。 周辺環境も、銀座KMビルの大きな魅力の一つです。昭和通りの銀座東七丁目交差点近くに位置し、銀座ときめき橋を渡ることで、多彩なランチスポットが並ぶ花椿通りにも簡単にアクセスできます。さらに、近隣にはコンビニや郵便局、キンコーズなどの生活便利施設が充実しており、ビジネス利用にも日常生活にも便利な立地となっています。 銀座KMビルは、その高級感あるデザイン、優れたレイアウトのオフィススペース、抜群の立地条件、充実した設備、そして便利で魅力的な周辺環境という、ビジネスにおいて最適な条件を備えたオフィスビルです。こうした特徴を持つ銀座KMビルは、ビジネスの成功を目指す企業にとって、非常に魅力的な選択肢の一つであることは間違いありません。
銀座KMビルのこだわり
自分で探すより問い合わせる方が早いことがあります
WEB非公開物件があるから
オーナー様のご希望により「WEBでは非公開」にしている物件があります。 それらはWEBでいくら検索しても見つかりません。 先ずは条件などお知らせ頂けましたら非公開物件含め ピッタリのオフィスをご提案させて頂きます。 無理なお勧めはしておりませんので、お気軽にお問い合わせください。
対面でのご相談も受け付けております
ご来店も歓迎です
オフィス移転は社内・社外ともに非公開に行われることが殆どです。そのためアットオフィスでは、基本的に訪問によるコンサルティングを行っておりますが、ご来店の相談も歓迎です。お一人おひとりに親身にご対応させて頂きたい為、要予約とさせて頂いております。ご来店の際は先ずは下記よりご予約下さい。
募集終了のテナント区画
| 階数 | 坪数 | 賃料 + 共益費 | 敷金/礼金敷金 礼金 | 検討 |
|---|---|---|---|---|
| 1階 | 23.5坪 (77.68m²) | 募集終了 | - | - |
| 1階 | 14.53坪 (48.03m²) | 募集終了 | - | - |
| 1階 | 27.38坪 (90.51m²) | 募集終了 | - | - |
| 1階 | 14.53坪 (48.03m²) | 募集終了 | - | - |
| 1階 | 27.38坪 (90.51m²) | 募集終了 | - | - |
| 2階 | 48.75坪 (161.15m²) | 募集終了 | - | - |
| 2階 | 48.75坪 (161.15m²) | 募集終了 | - | - |
| 3階 | 48.75坪 (161.16m²) | 募集終了 | - | - |
| 4階 | 48.75坪 (161.16m²) | 募集終了 | - | - |
| 4階 | 48.75坪 (161.15m²) | 募集終了 | - | - |
| 4階 | 48.75坪 (161.15m²) | 募集終了 | - | - |
| 5階 | 48.75坪 (161.16m²) | 募集終了 | - | - |
| 5階 | 48.75坪 (161.15m²) | 募集終了 | - | - |
| 5階 | 48.75坪 (161.15m²) | 募集終了 | - | - |
| 6階 | 48.75坪 (161.15m²) | 募集終了 | - | - |
| 7階 | 48.75坪 (161.16m²) | 募集終了 | - | - |
| 7階 | 48.75坪 (161.15m²) | 募集終了 | - | - |
| 7階 | 48.75坪 (161.15m²) | 募集終了 | - | - |
| 8階 | 48.75坪 (161.16m²) | 募集終了 | - | - |
| 8階 | 48.75坪 (161.15m²) | 募集終了 | - | - |
| 8階 | 48.75坪 (161.15m²) | 募集終了 | - | - |
| 9階 | 48.75坪 (161.16m²) | 募集終了 | - | - |
| 9階 | 48.75坪 (161.15m²) | 募集終了 | - | - |
| 9階 | 48.75坪 (161.16m²) | 募集終了 | - | - |
読込中...
銀座エリアで銀座KMビルに似た条件の物件
読込中...
| 取扱様態 | 仲介 |
|---|---|
| 取扱会社 | 株式会社 アットオフィス |