※このサイトに記載がある賃貸条件は、敷金・保証金などの預かり金を除き、別途消費税がかかります。
物件情報
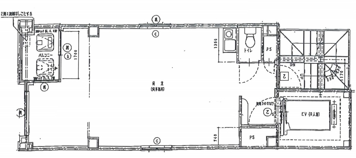
設備詳細
| 空調 | 個別空調 |
|---|---|
| トイレ | - |
| 床仕様 | - |
| エレベータ | 1 基 / エレベーター有 |
| 駐車場設備 | - |
| その他 | 大通り面する / 新耐震基準 / 機械警備 / 24時間利用可 |
コアビルの賃貸オフィス・事務所に関するお問い合わせ
コアビルについて
立地の利便性と機能性を兼ね備えたビルのご紹介です。三田駅から徒歩3分、田町駅から徒歩5分という抜群のアクセスを誇るこの物件は、ビジネスの拠点として理想的な環境を提供します。三田通り沿いに位置し、視認性が良好なため、来客時の案内もスムーズに行えることでしょう。 この物件の基準階面積は約11坪となっており、ワンフロアワンテナントでの利用が可能です。プライバシーを重視する企業や、クリエイティブな空間を求めるスタートアップには最適な環境を提供します。また、細部にわたる設計の工夫が、働く人々の創造性と効率性を高めることに貢献します。 周辺環境もビジネスにおいて重要な利点を多数提供します。中小規模のオフィスが多く立ち並ぶエリアでありながら、多彩な飲食店が集積しており、ランチタイムやビジネスミーティングにも困りません。また、物件の徒歩1分圏内に三井住友銀行があり、金融取引の利便性が高い点も見逃せません。向かいのビルにコンビニが入居しているため、日常のちょっとした買い物にも便利です。 この物件は、立地の利便性、機能性、周辺環境の充実さを兼ね備え、ビジネスの成功をサポートする環境が整っています。オフィス移転を検討されている企業様や、新たな拠点を設立しようと考えている皆様にとって、絶好の選択肢となることでしょう。あなたのビジネスを次のレベルへと導くこの物件を、ぜひご検討ください。
自分で探すより問い合わせる方が早いことがあります
WEB非公開物件があるから
オーナー様のご希望により「WEBでは非公開」にしている物件があります。 それらはWEBでいくら検索しても見つかりません。 先ずは条件などお知らせ頂けましたら非公開物件含め ピッタリのオフィスをご提案させて頂きます。 無理なお勧めはしておりませんので、お気軽にお問い合わせください。
対面でのご相談も受け付けております
ご来店も歓迎です
オフィス移転は社内・社外ともに非公開に行われることが殆どです。そのためアットオフィスでは、基本的に訪問によるコンサルティングを行っておりますが、ご来店の相談も歓迎です。お一人おひとりに親身にご対応させて頂きたい為、要予約とさせて頂いております。ご来店の際は先ずは下記よりご予約下さい。
募集終了のテナント区画
| 階数 | 坪数 | 賃料 + 共益費 | 敷金/礼金敷金 礼金 | 検討 |
|---|---|---|---|---|
| B1階 | 11.33坪 (37.45m²) | 募集終了 | - | - |
| 2階 | 11.73坪 (38.79m²) | 募集終了 | - | - |
| 3階 | 11.73坪 (38.79m²) | 募集終了 | - | - |
| 4階 | 11.73坪 (38.79m²) | 募集終了 | - | - |
| 5階 | 11.73坪 (38.78m²) | 募集終了 | - | - |
| 6階 | 11.73坪 (38.78m²) | 募集終了 | - | - |
| 7階 | 11.73坪 (38.79m²) | 募集終了 | - | - |
| 8階 | 11.73坪 (38.78m²) | 募集終了 | - | - |
読込中...
近くのエリアで探してみる
浜松町/田町/芝公園エリアでコアビルに似た条件の物件
読込中...
| 取扱様態 | 仲介 |
|---|---|
| 取扱会社 | 株式会社 アットオフィス |