※このサイトに記載がある賃貸条件は、敷金・保証金などの預かり金を除き、別途消費税がかかります。
物件情報
設備詳細
| 空調 | - |
|---|---|
| トイレ | - |
| 床仕様 | - |
| エレベータ | - |
| 駐車場設備 | - |
| その他 | 新耐震基準 |
KPビルの賃貸オフィス・事務所に関するお問い合わせ
KPビルについて
KPビルのご紹介 KPビルは、東京都品川区東大井2丁目に位置する優れたオフィス賃貸物件です。本ビルは、新耐震基準を満たしており、地震に対する安全性が高く、企業の安心と信頼を確保します。 **立地の魅力** 本ビルは、京浜急行電鉄本線の立会川駅から徒歩わずか1分という絶好のロケーションにあります。この利便性の高さは、通勤・ビジネスの双方において大変魅力的です。駅近のため、社員の通勤が非常に便利であるだけでなく、ビジネスパートナーやクライアントの訪問においてもスムーズなアクセスが確保されます。また、品川区という都心に近いエリアに位置しているため、周辺には飲食店やカフェ、金融機関などのビジネスに必要な施設が充実しています。 **設備の充実** KPビルは、新耐震基準をクリアしており、最新の安全基準に基づいた堅固な構造を持っています。この点は、地震リスクの多い日本において非常に重要なポイントとなります。また、オフィスフロアは広々としており、レイアウトの自由度が高いため、さまざまなビジネススタイルに対応可能です。 **ビルの特徴と独自の魅力** KPビルの最大の特徴は、その優れた立地と安全性です。駅から徒歩1分という利便性に加え、新耐震基準に適合している点で、企業の安心と信頼を確保します。また、品川区というエリアは多くの企業が集まるビジネスの拠点でもあり、新たなビジネスチャンスを創出する可能性が高い地域です。 **ビジネスにおける利点** 本ビルの立地と設備は、ビジネスにおける大きな利点を提供します。駅近のため、社員の通勤が快適であるとともに、クライアントやビジネスパートナーの訪問が容易です。また、新耐震基準に対応しているため、企業のBCP(事業継続計画)にも貢献します。さらに、品川区というエリアの特性上、多くの企業や商業施設が集まっているため、ネットワーキングの機会も豊富です。 KPビルは、その立地と設備、安全性を兼ね備えた優れたオフィス賃貸物件です。新たなビジネスの拠点として、ぜひご検討ください。
KPビルのこだわり
自分で探すより問い合わせる方が早いことがあります
WEB非公開物件があるから
オーナー様のご希望により「WEBでは非公開」にしている物件があります。 それらはWEBでいくら検索しても見つかりません。 先ずは条件などお知らせ頂けましたら非公開物件含め ピッタリのオフィスをご提案させて頂きます。 無理なお勧めはしておりませんので、お気軽にお問い合わせください。
対面でのご相談も受け付けております
ご来店も歓迎です
オフィス移転は社内・社外ともに非公開に行われることが殆どです。そのためアットオフィスでは、基本的に訪問によるコンサルティングを行っておりますが、ご来店の相談も歓迎です。お一人おひとりに親身にご対応させて頂きたい為、要予約とさせて頂いております。ご来店の際は先ずは下記よりご予約下さい。
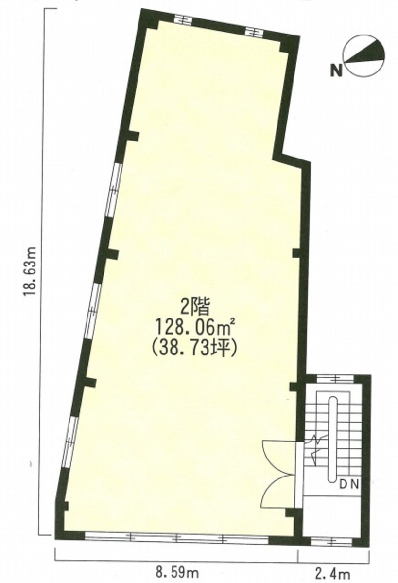
募集終了のテナント区画
| 階数 | 坪数 | 賃料 + 共益費 | 敷金/礼金敷金 礼金 | 検討 |
|---|---|---|---|---|
| 2階 | 43.74坪 (144.6m²) | 募集終了 | - | - |
読込中...
品川/大崎/大井エリアでKPビルに似た条件の物件
読込中...
| 取扱様態 | 仲介 |
|---|---|
| 取扱会社 | 株式会社 アットオフィス |