※このサイトに記載がある賃貸条件は、敷金・保証金などの預かり金を除き、別途消費税がかかります。
物件情報
設備詳細
| 空調 | - |
|---|---|
| トイレ | - |
| 床仕様 | - |
| エレベータ | 2 基 |
| 駐車場設備 | - |
| その他 | 機械警備 / 24時間利用可 / 光ファイバー |
松屋明石町本館の賃貸オフィス・事務所に関するお問い合わせ
松屋明石町本館について
松屋明石町本館ビルは、東京都中央区明石町に位置する賃貸オフィスビルであり、1974年に完成した8階建ての物件です。東京のビジネスの中心地にあることから、企業にとって理想的なオフィス環境を提供しています。本ビルの立地、設備、そして周辺環境の三つの側面から、その特徴とビジネスにおける利点を解説します。 【立地の利点】 松屋明石町本館ビルは、佃大橋西交差点に面して立地しており、中央区のオフィス街の中心に位置します。最寄り駅は、新富町駅であり、築地駅からもアクセス可能です。これにより、東京都内の主要エリアへのアクセスが非常に便利であることが強調されます。また、ビルは新大橋通りに近く、ビジネスの機会を追求する企業にとって戦略的な立地と言えます。 【設備の特徴】 本ビルは、2基のエレベーターを有し、快適な移動をサポートします。セキュリティ面では機械警備が導入されており、入居企業に安心を提供します。また、光ファイバーがMDFまで引き込まれているため、高速インターネット環境が整っています。このような設備は、現代のビジネスニーズに対応するため不可欠です。 【周辺環境】 ビルの1階にはコンビニが入居しており、日常の利便性が高いことが特徴です。さらに、周辺には飲食店やスーパーマーケット、100円ショップなどが豊富にあり、ビジネスだけでなく生活面でも利便性が高いエリアです。また、徒歩5分の場所にある聖路加ガーデン内郵便局やエクセルシオールカフェ、ゆで太郎入舟店などは、ビジネスの打ち合わせや休憩時間の利用に便利です。 松屋明石町本館ビルは、戦略的な立地、充実した設備、そして生活利便性が高い周辺環境を兼ね備え、多様なビジネスニーズに応える賃貸オフィス物件です。企業が求める機能性と快適性を備えたビルとして、長期間にわたるビジネスの成功に貢献することでしょう。
松屋明石町本館のこだわり
自分で探すより問い合わせる方が早いことがあります
WEB非公開物件があるから
オーナー様のご希望により「WEBでは非公開」にしている物件があります。 それらはWEBでいくら検索しても見つかりません。 先ずは条件などお知らせ頂けましたら非公開物件含め ピッタリのオフィスをご提案させて頂きます。 無理なお勧めはしておりませんので、お気軽にお問い合わせください。
対面でのご相談も受け付けております
ご来店も歓迎です
オフィス移転は社内・社外ともに非公開に行われることが殆どです。そのためアットオフィスでは、基本的に訪問によるコンサルティングを行っておりますが、ご来店の相談も歓迎です。お一人おひとりに親身にご対応させて頂きたい為、要予約とさせて頂いております。ご来店の際は先ずは下記よりご予約下さい。
募集終了のテナント区画
| 階数 | 坪数 | 賃料 + 共益費 | 敷金/礼金敷金 礼金 | 検討 |
|---|---|---|---|---|
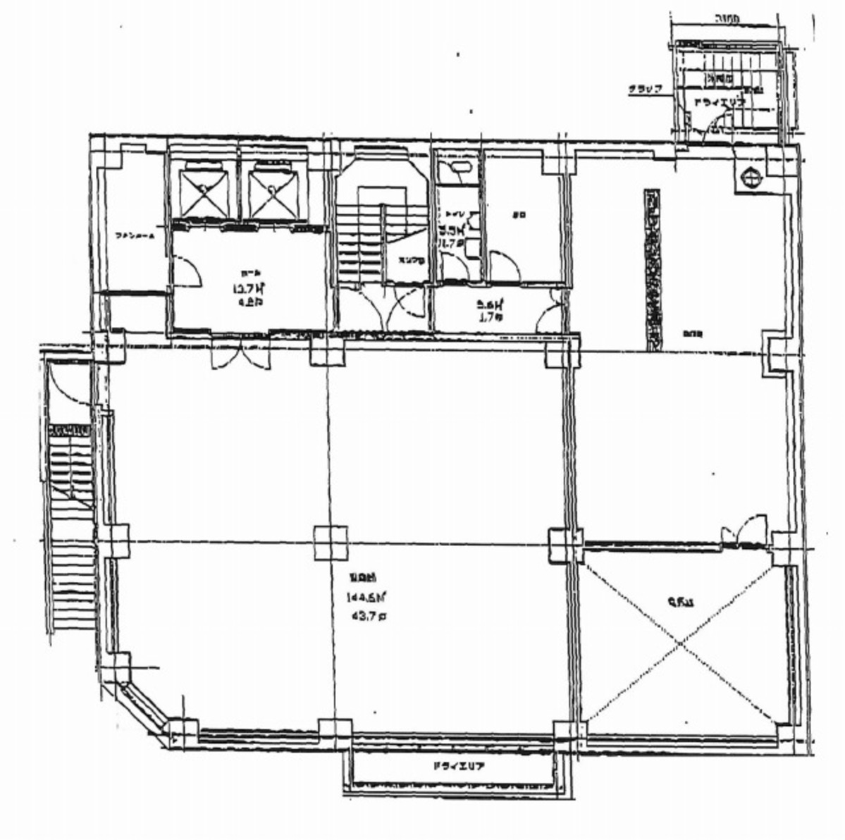
| 2階 | 31.24坪 (103.27m²) | 募集終了 | - | - |
| 5階 | 29.59坪 (97.81m²) | 募集終了 | - | - |
読込中...
新富/築地エリアで松屋明石町本館に似た条件の物件
読込中...
| 取扱様態 | 仲介 |
|---|---|
| 取扱会社 | 株式会社 アットオフィス |