※このサイトに記載がある賃貸条件は、敷金・保証金などの預かり金を除き、別途消費税がかかります。
物件情報
設備詳細
| 空調 | - |
|---|---|
| トイレ | - |
| 床仕様 | - |
| エレベータ | - |
| 駐車場設備 | - |
| その他 | - |
日本橋K・Kビルの賃貸オフィス・事務所に関するお問い合わせ
日本橋K・Kビルについて
中央区日本橋富沢町に位置する日本橋KKビルは、現代的なオフィスニーズに応える賃貸オフィスビルです。このビルは、洗練された白とグレーの吹き付け仕上げが特徴で、外観から高い品質を感じさせます。立地面では、JR、東京メトロ、都営地下鉄といった複数の鉄道線が利用可能で、東京都心におけるアクセスの良さは抜群です。これにより、ビジネスの拠点としての利便性が高く、都市の様々なエリアへの移動が容易になります。 日本橋KKビルの周辺はオフィスビルが立ち並び、静かで落ち着いた環境が保たれています。このような環境は、集中して仕事に取り組むには最適で、ビジネスでの成果を上げるための静かな環境を提供します。さらに、近隣には数軒の飲食店やコンビニがあり、日々のランチタイムや仕事帰りの利便性も確保されています。 ビル内部には、最新設備が整っており、利用者のニーズに応える機能性と快適性を兼ね備えています。オフィススペースは、多様なビジネスシーンに対応可能な柔軟なレイアウトが可能で、企業の成長や変化に合わせた空間利用を実現することができます。 日本橋KKビルは、アクセスの良さ、環境の静けさ、そして最新のオフィス設備という、ビジネスを成功に導くための三つの要素を兼ね備えています。ビジネスの拠点として理想的な環境を求める企業にとって、このビルは最適な選択肢の一つであると言えるでしょう。立地、設備、環境のそれぞれの側面から見ても、日本橋KKビルは、ビジネスの可能性を広げるための素晴らしい環境を提供します。
日本橋K・Kビルのこだわり
自分で探すより問い合わせる方が早いことがあります
WEB非公開物件があるから
オーナー様のご希望により「WEBでは非公開」にしている物件があります。 それらはWEBでいくら検索しても見つかりません。 先ずは条件などお知らせ頂けましたら非公開物件含め ピッタリのオフィスをご提案させて頂きます。 無理なお勧めはしておりませんので、お気軽にお問い合わせください。
対面でのご相談も受け付けております
ご来店も歓迎です
オフィス移転は社内・社外ともに非公開に行われることが殆どです。そのためアットオフィスでは、基本的に訪問によるコンサルティングを行っておりますが、ご来店の相談も歓迎です。お一人おひとりに親身にご対応させて頂きたい為、要予約とさせて頂いております。ご来店の際は先ずは下記よりご予約下さい。
募集終了のテナント区画
| 階数 | 坪数 | 賃料 + 共益費 | 敷金/礼金敷金 礼金 | 検討 |
|---|---|---|---|---|
| 1階 | 18.45坪 (61m²) | 募集終了 | - | - |
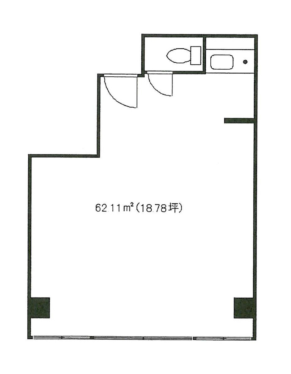
| 2階 | 18.79坪 (62.11m²) | 募集終了 | - | - |
| 2階 | 15.01坪 (49.65m²) | 募集終了 | - | - |
| 3階 | 18.79坪 (62.11m²) | 募集終了 | - | - |
読込中...
近くのエリアで探してみる
人形町/馬喰町/浜町エリアで日本橋K・Kビルに似た条件の物件
読込中...
| 取扱様態 | 仲介 |
|---|---|
| 取扱会社 | 株式会社 アットオフィス |