※このサイトに記載がある賃貸条件は、敷金・保証金などの預かり金を除き、別途消費税がかかります。
物件情報
設備詳細
| 空調 | - |
|---|---|
| トイレ | - |
| 床仕様 | - |
| エレベータ | 1 基 |
| 駐車場設備 | - |
| その他 | 機械警備 / 光ファイバー |
信井ビル別館の賃貸オフィス・事務所に関するお問い合わせ
信井ビル別館について
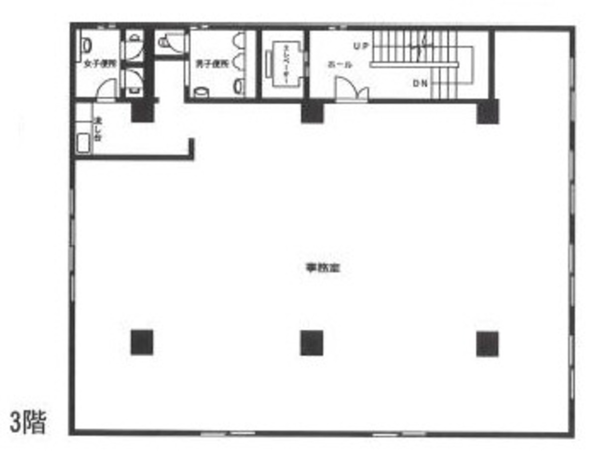
信井別館ビルは、台東区上野に位置する地上5階建てのオフィスビルで、1979年に竣工しました。この物件は、白い外壁と正方形の窓面が配されたデザインで、清潔感と洗練された雰囲気を醸し出しています。一階のエントランスはすっきりとしており、エレベーターと階段が効率的に配置されています。信井別館ビルは、近代化の波に乗り全面リニューアルを経ており、機械警備も完備しているため、安心してご利用いただけます。 立地に関しては、信井別館ビルは至便の立地にあります。御徒町駅から徒歩5分、末広町駅・上野広小路駅からも同様に徒歩5分の距離にあり、湯島駅も含め複数の駅が徒歩圏内にあるため、交通アクセスの良さは抜群です。これにより、ビジネスの機動性が高まり、従業員やクライアントのアクセスの利便性も向上します。 オフィスの設備においては、ワンフロアが約55坪前後となっており、シンプルな間取りでレイアウト効率の良さを実現しています。各階には個別空調が完備されており、快適な環境下での業務が可能です。また、貸室内にはトイレと給湯スペースが設置されており、オフィス内のプライバシーと利便性が保たれています。さらに、光ファイバーの引き込みが完了しているため、高速インターネット環境も整っています。 周辺環境も魅力の一つです。コンビニやキンコーズが近隣にあり、日常の利便性が高いほか、各メガバンクの支店や郵便局も徒歩圏内にあります。また、湯島天神や不忍池へのアクセスも良好で、オフィスでの疲れを癒やす散歩コースとしても最適です。 信井別館ビルは、その立地の利便性、機能的なオフィス設備、そして快適な周辺環境を併せ持つ、ビジネスに最適な賃貸オフィス物件です。企業の成長をサポートする環境を求めている方にとって、信井別館ビルは理想的な選択肢であること間違いありません。この機会に、台東区上野にあるこの優れたオフィスビルをぜひご検討ください。
信井ビル別館のこだわり
自分で探すより問い合わせる方が早いことがあります
WEB非公開物件があるから
オーナー様のご希望により「WEBでは非公開」にしている物件があります。 それらはWEBでいくら検索しても見つかりません。 先ずは条件などお知らせ頂けましたら非公開物件含め ピッタリのオフィスをご提案させて頂きます。 無理なお勧めはしておりませんので、お気軽にお問い合わせください。
対面でのご相談も受け付けております
ご来店も歓迎です
オフィス移転は社内・社外ともに非公開に行われることが殆どです。そのためアットオフィスでは、基本的に訪問によるコンサルティングを行っておりますが、ご来店の相談も歓迎です。お一人おひとりに親身にご対応させて頂きたい為、要予約とさせて頂いております。ご来店の際は先ずは下記よりご予約下さい。
募集終了のテナント区画
| 階数 | 坪数 | 賃料 + 共益費 | 敷金/礼金敷金 礼金 | 検討 |
|---|---|---|---|---|
| 1階 | 52.38坪 (173.17m²) | 募集終了 | - | - |
| 2階 | 59.33坪 (196.13m²) | 募集終了 | - | - |
| 3階 | 59.9坪 (198.02m²) | 募集終了 | - | - |
| 4階 | 59.9坪 (198.02m²) | 募集終了 | - | - |
| 5階 | 49.83坪 (164.73m²) | 募集終了 | - | - |
読込中...
上野/台東/東上野エリアで信井ビル別館に似た条件の物件
読込中...
| 取扱様態 | 仲介 |
|---|---|
| 取扱会社 | 株式会社 アットオフィス |