※このサイトに記載がある賃貸条件は、敷金・保証金などの預かり金を除き、別途消費税がかかります。
物件情報
設備詳細
| 空調 | - |
|---|---|
| トイレ | - |
| 床仕様 | - |
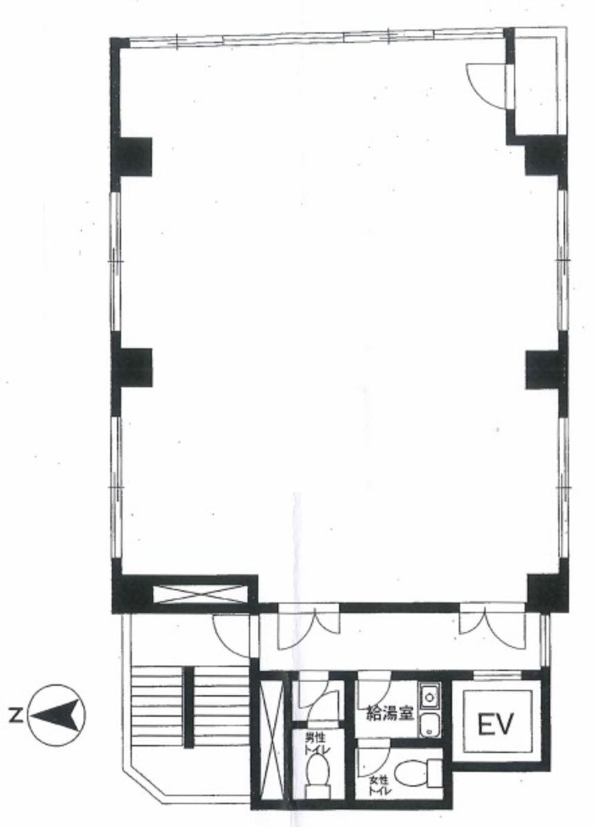
| エレベータ | 1 基 |
| 駐車場設備 | - |
| その他 | 機械警備 |
石川ビルの賃貸オフィス・事務所に関するお問い合わせ
石川ビルについて
石川ビルは、東京都文京区本郷に位置する魅力的なオフィス賃貸物件です。1986年に竣工されたこの11階建てのビルは、2017年に大規模な改修工事を経て、その機能性と魅力を一新しました。基準階約46坪の広々としたオフィススペースは、効率的なレイアウトが可能な長方形の形状をしており、様々なビジネスニーズに対応するための理想的な環境を提供します。 石川ビルの立地は、交通アクセスの良さでも知られています。最寄りの本郷三丁目駅からは徒歩わずか5分という近さで、日々の通勤が非常に便利です。さらに、ビルの前を走る本郷通り沿いには、多様な飲食店やコンビニエンスストアが点在しており、ビジネスマンの日常生活をサポートする環境が整っています。 セキュリティ面においても、石川ビルは最新の機械警備システムを導入しており、入居者の安全をしっかりと守る体制が整っています。また、エントランスは清潔感があり、洗練された印象を与えるデザインが採用されており、訪れるクライアントに良い第一印象を与えることができます。 内装に関しても、2017年の改修により最新の設備が導入され、快適で働きやすいオフィス環境が整っています。エレベーターは1基設置されており、スムーズな移動を支援します。各階には広々としたオフィススペースがあり、自由なレイアウトが可能です。これにより、さまざまな業種の企業が最適なオフィス環境を構築できるでしょう。 石川ビルは、その立地の利便性、高いセキュリティ、快適なオフィス環境を兼ね備え、文京区におけるビジネスの拠点として最適な選択肢です。文京区という文教地区に位置することから、学術的な環境にも恵まれ、知的な創造活動を行う企業にとっても魅力的なロケーションと言えるでしょう。石川ビルで、新たなビジネスの成功への第一歩を踏み出してみてはいかがでしょうか。
石川ビルのこだわり
自分で探すより問い合わせる方が早いことがあります
WEB非公開物件があるから
オーナー様のご希望により「WEBでは非公開」にしている物件があります。 それらはWEBでいくら検索しても見つかりません。 先ずは条件などお知らせ頂けましたら非公開物件含め ピッタリのオフィスをご提案させて頂きます。 無理なお勧めはしておりませんので、お気軽にお問い合わせください。
対面でのご相談も受け付けております
ご来店も歓迎です
オフィス移転は社内・社外ともに非公開に行われることが殆どです。そのためアットオフィスでは、基本的に訪問によるコンサルティングを行っておりますが、ご来店の相談も歓迎です。お一人おひとりに親身にご対応させて頂きたい為、要予約とさせて頂いております。ご来店の際は先ずは下記よりご予約下さい。
募集終了のテナント区画
| 階数 | 坪数 | 賃料 + 共益費 | 敷金/礼金敷金 礼金 | 検討 |
|---|---|---|---|---|
| 8階 | 30.15坪 (99.7m²) | 募集終了 | - | - |
| 11階 | 32.63坪 (107.87m²) | 募集終了 | - | - |
読込中...
湯島/本郷/後楽園エリアで石川ビルに似た条件の物件
読込中...
| 取扱様態 | 仲介 |
|---|---|
| 取扱会社 | 株式会社 アットオフィス |