※このサイトに記載がある賃貸条件は、敷金・保証金などの預かり金を除き、別途消費税がかかります。
物件情報
設備詳細
| 空調 | - |
|---|---|
| トイレ | - |
| 床仕様 | - |
| エレベータ | 1 基 |
| 駐車場設備 | - |
| その他 | 機械警備 / 新耐震基準 |
エスティ青山ビルの賃貸オフィス・事務所に関するお問い合わせ
エスティ青山ビルについて
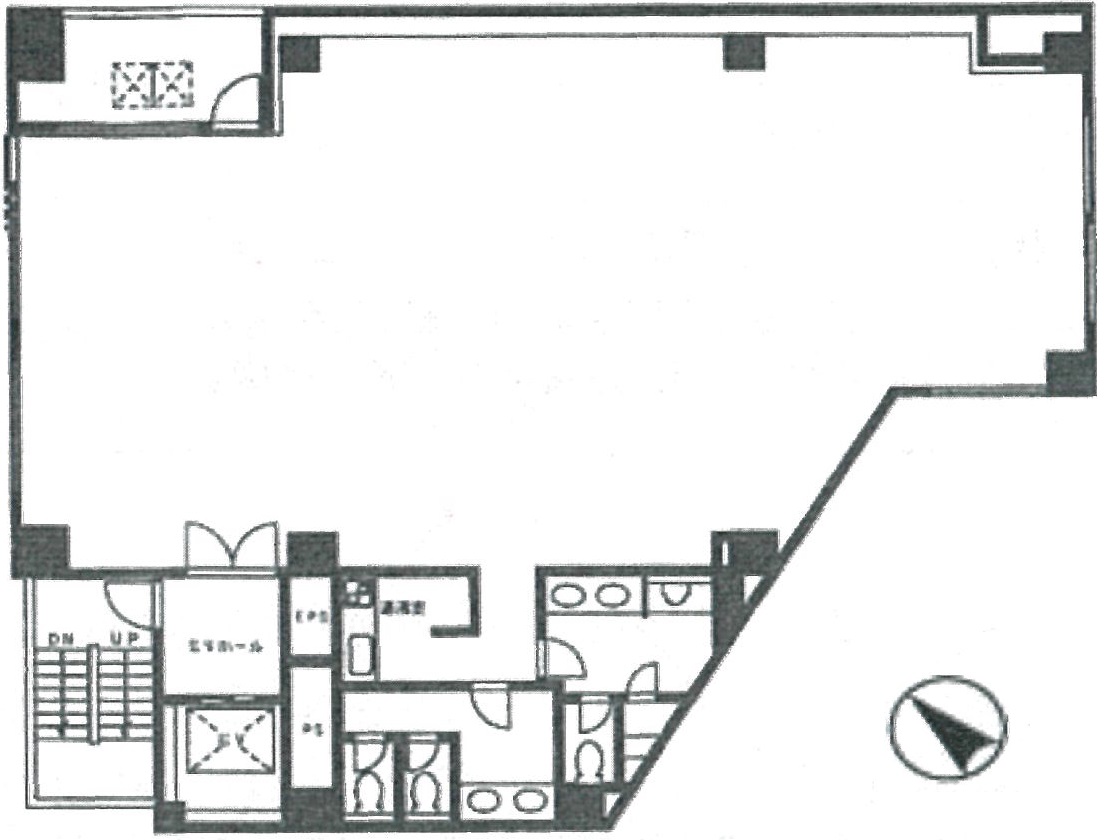
エスティ青山ビルは1992年に竣工し、2010年にはリニューアル工事を施された渋谷区渋谷に位置する賃貸オフィスビルです。このビルは、新耐震基準に準拠して建設されたことで安全性が高く、落ち着きと高級感を備えた外観が特徴です。9階建てである当ビルは、1フロアあたり約50坪の中規模オフィススペースを提供しており、窓が多く設置された室内は明るく開放感があります。また、1基のエレベーターと機械警備システムにより、安定したビルの運用を支えています。 立地に関しては、六本木通りの渋谷二丁目交差点から少し入った場所にあり、渋谷と表参道の両方へのアクセスが容易です。最寄り駅である渋谷駅は徒歩10分前後、表参道駅へは徒歩約12分と、交通の利便性が高いことが魅力の一つです。また、周辺にはコンビニエンスストアや飲食店が充実しており、ビジネスに必要な日常の利便性も優れています。 ビル内には駐車場が設置されており、利用希望の場合は空き状況についてお問い合わせいただけます。さらに、オフィスの水回りは専用スペース内に配置されており、レイアウトの邪魔にならない設計がされています。セキュリティ面では機械警備を採用し、テナントの安全を確保しています。 エスティ青山ビルは、新耐震基準に沿って建設された安全性、渋谷と表参道というビジネスの中心地へのアクセスの良さ、充実した周辺環境といった特長を兼ね備えています。これらの特性を活かし、多様な業種の企業様が快適なオフィスライフを送ることができるでしょう。エスティ青山ビルは、ビジネスを成功に導くための理想的な環境を提供します。
エスティ青山ビルのこだわり
自分で探すより問い合わせる方が早いことがあります
WEB非公開物件があるから
オーナー様のご希望により「WEBでは非公開」にしている物件があります。 それらはWEBでいくら検索しても見つかりません。 先ずは条件などお知らせ頂けましたら非公開物件含め ピッタリのオフィスをご提案させて頂きます。 無理なお勧めはしておりませんので、お気軽にお問い合わせください。
対面でのご相談も受け付けております
ご来店も歓迎です
オフィス移転は社内・社外ともに非公開に行われることが殆どです。そのためアットオフィスでは、基本的に訪問によるコンサルティングを行っておりますが、ご来店の相談も歓迎です。お一人おひとりに親身にご対応させて頂きたい為、要予約とさせて頂いております。ご来店の際は先ずは下記よりご予約下さい。
募集終了のテナント区画
| 階数 | 坪数 | 賃料 + 共益費 | 敷金/礼金敷金 礼金 | 検討 |
|---|---|---|---|---|
| B2階 | 52.99坪 (175.17m²) | 募集終了 | - | - |
| B1階 | 54.13坪 (178.94m²) | 募集終了 | - | - |
| 1階 | 31.13坪 (102.91m²) | 募集終了 | - | - |
| 2階 | 55.84坪 (184.6m²) | 募集終了 | - | - |
| 3階 | 55.84坪 (184.6m²) | 募集終了 | - | - |
| 4階 | 55.84坪 (184.6m²) | 募集終了 | - | - |
| 5階 | 55.84坪 (184.6m²) | 募集終了 | - | - |
| 6階 | 55.84坪 (184.6m²) | 募集終了 | - | - |
| 7階 | 47.73坪 (157.79m²) | 募集終了 | - | - |
| 8階 | 36.81坪 (121.69m²) | 募集終了 | - | - |
| 9階 | 24.12坪 (79.74m²) | 募集終了 | - | - |
読込中...
渋谷エリアでエスティ青山ビルに似た条件の物件
読込中...
| 取扱様態 | 仲介 |
|---|---|
| 取扱会社 | 株式会社 アットオフィス |