※このサイトに記載がある賃貸条件は、敷金・保証金などの預かり金を除き、別途消費税がかかります。
物件情報
設備詳細
| 空調 | - |
|---|---|
| トイレ | - |
| 床仕様 | - |
| エレベータ | - |
| 駐車場設備 | 空有 |
| その他 | 新耐震基準 |
大棟の賃貸オフィス・事務所に関するお問い合わせ
大棟について
鎌倉市大船2丁目に位置する「大棟」は、江の島線・根岸線・横須賀線の大船駅からいずれも徒歩6分の距離にあります。交通機関への接近性が特徴的で、複数路線を利用できる点が出張や通勤に配慮した事業活動を検討されている法人様にも利用しやすい立地です。 建物は地上3階建てで構成されており、1階から3階までシンプルな区画構成が可能です。周辺にはオフィスや店舗、住宅が混在したエリアが広がっており、地域とのつながりや働きやすい環境づくりを志向する法人様にも活用が見込まれます。 また、新耐震基準に適合している点が特徴です。建物の規模や区画イメージを踏まえ、事務所やサービス拠点、サテライトオフィスなどさまざまな用途を検討する際の選択肢となります。近隣の生活利便施設や交通ネットワークを考慮しながら、ご検討いただけます。 詳細はお問い合わせください。
大棟のこだわり
自分で探すより問い合わせる方が早いことがあります
WEB非公開物件があるから
オーナー様のご希望により「WEBでは非公開」にしている物件があります。 それらはWEBでいくら検索しても見つかりません。 先ずは条件などお知らせ頂けましたら非公開物件含め ピッタリのオフィスをご提案させて頂きます。 無理なお勧めはしておりませんので、お気軽にお問い合わせください。
対面でのご相談も受け付けております
ご来店も歓迎です
オフィス移転は社内・社外ともに非公開に行われることが殆どです。そのためアットオフィスでは、基本的に訪問によるコンサルティングを行っておりますが、ご来店の相談も歓迎です。お一人おひとりに親身にご対応させて頂きたい為、要予約とさせて頂いております。ご来店の際は先ずは下記よりご予約下さい。
募集終了のテナント区画
| 階数 | 坪数 | 賃料 + 共益費 | 敷金/礼金敷金 礼金 | 検討 |
|---|---|---|---|---|
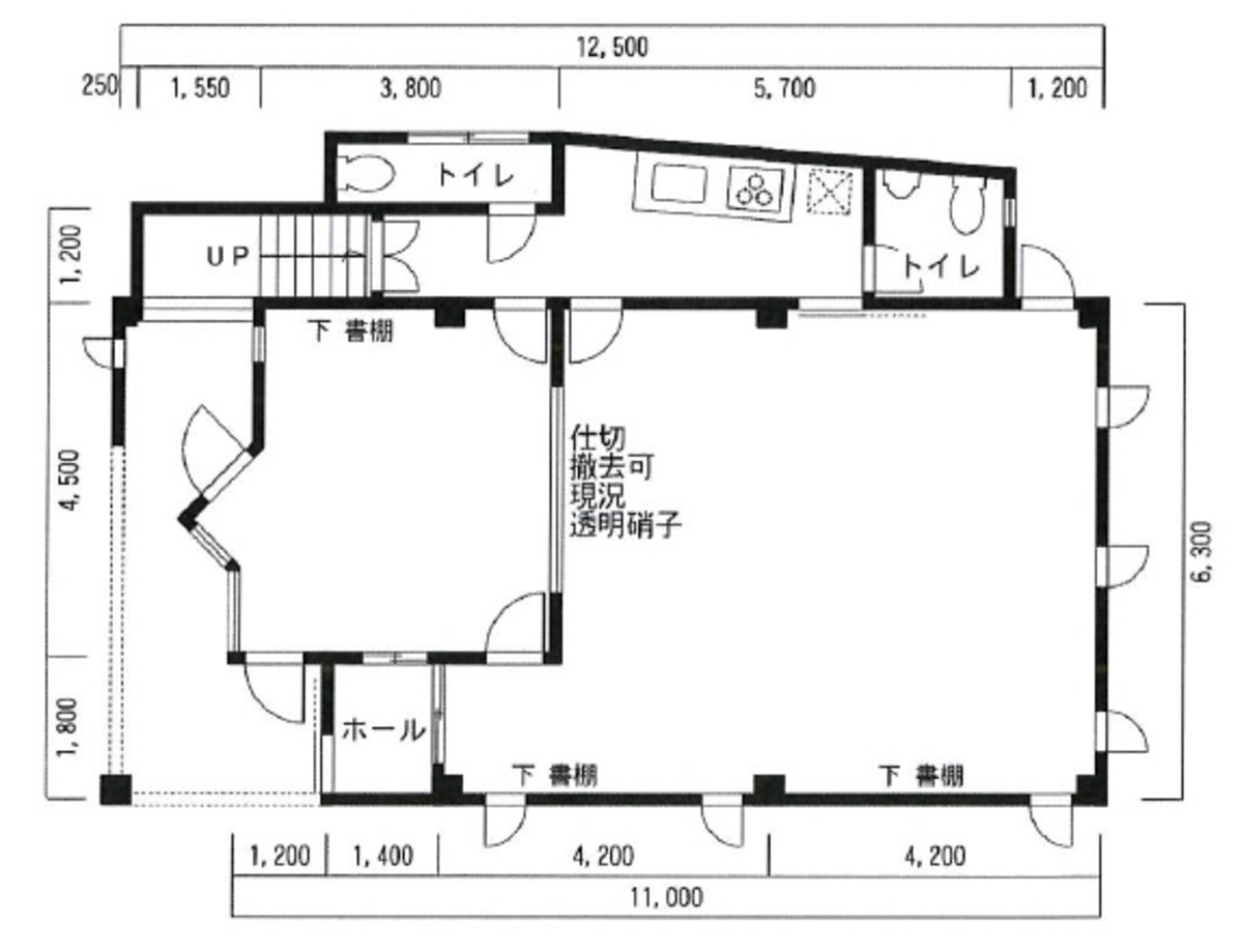
| 1階 | 24.5坪 (80.99m²) | 募集終了 | - | - |
読込中...
鎌倉市エリアで大棟に似た条件の物件
読込中...
| 取扱様態 | 仲介 |
|---|---|
| 取扱会社 | 株式会社 アットオフィス |