クリエート湘南第3ビルの賃料条件
| 階数 | 坪数 | 賃料 + 共益費 | 敷金/礼金敷金 礼金 | 検討 |
|---|---|---|---|---|
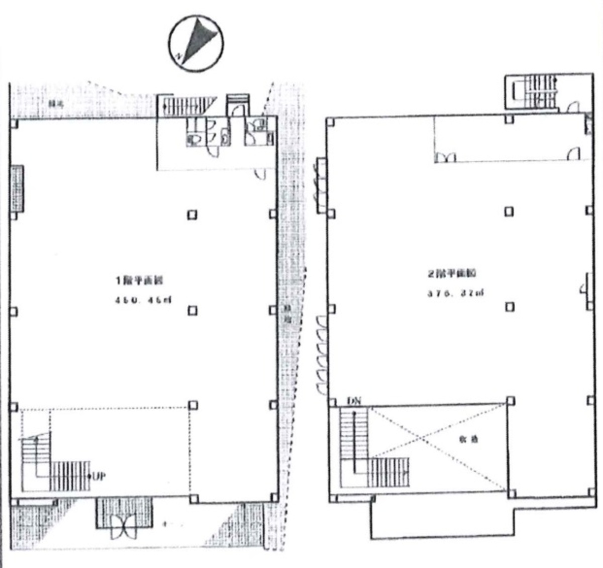
| 1階 | 211.75坪 (700m²) | 2,541,000円 (坪:12,000 円) | 10ヶ月 1ヶ月10ヶ月/1ヶ月 |
※このサイトに記載がある賃貸条件は、敷金・保証金などの預かり金を除き、別途消費税がかかります。
物件情報
設備詳細
| 空調 | - |
|---|---|
| トイレ | - |
| 床仕様 | - |
| エレベータ | - |
| 駐車場設備 | - |
| その他 | 新耐震基準 / クリニック / スケルトン / 1階の物件 / 店舗可(飲食可) |
クリエート湘南第3ビルの賃貸オフィス・事務所に関するお問い合わせ
クリエート湘南第3ビルについて
クリエート湘南第3は、本鵠沼3丁目にあるオフィスビルです。本鵠沼駅から徒歩8分の駅近物件です。1994年に竣工しました。鉄骨造により耐震性に優れています。店舗や飲食店、クリニックとして利用できます。周辺には専門店やスーパー、クリニックがあります。近隣にはオフィスビルや店舗ビルが立ち並んでいます。歩道のある通りに面しているため、見通しの良い場所です。交通量の穏やかな通りのため、車や歩行者が利用しやすいエリアです。
クリエート湘南第3ビルのこだわり
自分で探すより問い合わせる方が早いことがあります
WEB非公開物件があるから
オーナー様のご希望により「WEBでは非公開」にしている物件があります。 それらはWEBでいくら検索しても見つかりません。 先ずは条件などお知らせ頂けましたら非公開物件含め ピッタリのオフィスをご提案させて頂きます。 無理なお勧めはしておりませんので、お気軽にお問い合わせください。
WEBから条件問い合わせをする(無料)
対面でのご相談も受け付けております
ご来店も歓迎です
オフィス移転は社内・社外ともに非公開に行われることが殆どです。そのためアットオフィスでは、基本的に訪問によるコンサルティングを行っておりますが、ご来店の相談も歓迎です。お一人おひとりに親身にご対応させて頂きたい為、要予約とさせて頂いております。ご来店の際は先ずは下記よりご予約下さい。
来店予約をする
読込中...
藤沢市エリアでクリエート湘南第3ビルに似た条件の物件
読込中...
| 取扱様態 | 仲介 |
|---|---|
| 取扱会社 | 株式会社 アットオフィス |