南久宝寺ビル3階の賃貸情報
24.5 坪 (81m²)
245,000円 (坪:10,000 円)
※このサイトに記載がある賃貸条件は、敷金・保証金などの預かり金を除き、別途消費税がかかります。
南久宝寺ビルの建物概要
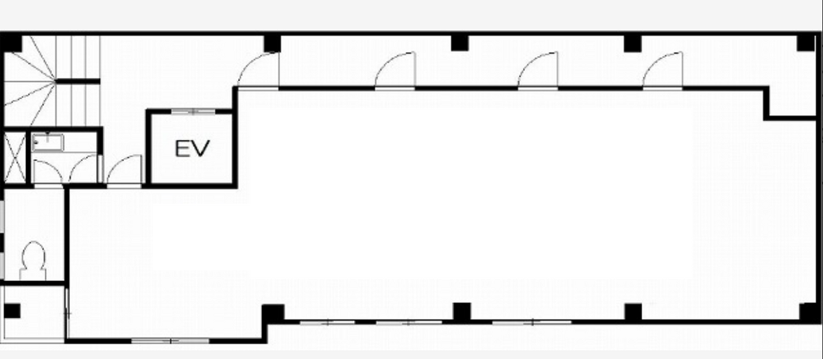
設備詳細
| 空調 | - |
|---|---|
| トイレ | - |
| 床仕様 | - |
| エレベータ | - |
| 駐車場設備 | - |
| その他 | クリニック / 店舗可(飲食可) |
南久宝寺ビル3階の賃貸オフィス・事務所に関するお問い合わせ
南久宝寺ビルについて
南久宝寺ビルは、大阪市中央区南久宝寺町1丁目に位置し、交通の利便性を誇る堺筋本町駅から徒歩わずか4分の賃貸オフィスビルです。このビルは、多様なビジネスニーズに応える柔軟な設計が特徴で、オフィス用途はもちろん、店舗使用にも対応しております。商業地域と居住地域が交差するこのエリアは、日々多くの人々で活気づいており、来店を必要とする業務にも最適な立地条件を有しています。 南久宝寺ビルは、現代的なデザインと機能性を備えた建物で、多種多様な業種の企業に適した環境を提供しています。ビルの規模感としては、中規模ながらも効率的なスペース利用が可能な構造となっており、小規模から中規模の企業に適しています。また、セキュリティシステムも充実しており、24時間体制の監視カメラとセキュリティカードによる入館管理が整っておりますので、安心して業務を行うことができます。 各オフィスには、最新の通信技術を支援する高速インターネット接続が完備されており、快適なネット環境下での業務が可能です。また、快適な室内環境を保つための空調設備も各フロアに完備。季節を問わず、一年中快適な職場環境を提供します。エレベーターも複数基設置され、ビル内の移動もスムーズです。さらに、ビル内には会議室や休憩室も設けられており、利用者のニーズに応じた使い方が可能です。 ビルの周囲には、飲食店やカフェ、銀行、郵便局などが充実しており、従業員の日常生活に必要な施設が揃っています。また、下層階には店舗スペースも設けられており、ビジネスだけでなく、住民との交流も期待できるエリアです。週末には近隣の公園でイベントが開催されるなど、地域コミュニティとの連携も図られています。 是非一度ご内見ください。
南久宝寺ビルのこだわり
自分で探すより問い合わせる方が早いことがあります
WEB非公開物件があるから
オーナー様のご希望により「WEBでは非公開」にしている物件があります。 それらはWEBでいくら検索しても見つかりません。 先ずは条件などお知らせ頂けましたら非公開物件含め ピッタリのオフィスをご提案させて頂きます。 無理なお勧めはしておりませんので、お気軽にお問い合わせください。
対面でのご相談も受け付けております
ご来店も歓迎です
オフィス移転は社内・社外ともに非公開に行われることが殆どです。そのためアットオフィスでは、基本的に訪問によるコンサルティングを行っておりますが、ご来店の相談も歓迎です。お一人おひとりに親身にご対応させて頂きたい為、要予約とさせて頂いております。ご来店の際は先ずは下記よりご予約下さい。
中央区エリアで南久宝寺ビルに似た条件の物件
読込中...
南久宝寺ビルと同じ最寄駅の物件
読込中...
| 取扱様態 | 仲介 |
|---|---|
| 取扱会社 | 株式会社 アットオフィス |