PJMビル4階の賃貸情報
27.95 坪 (92.4m²)
※このサイトに記載がある賃貸条件は、敷金・保証金などの預かり金を除き、別途消費税がかかります。
PJMビルの建物概要
設備詳細
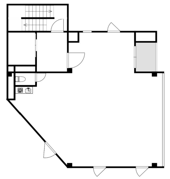
| 空調 | 個別空調 |
|---|---|
| トイレ | 男女共用トイレ・室内 |
| 床仕様 | OA対応床(フリーアクセス) |
| エレベータ | 1 基 |
| 駐車場設備 | - |
| その他 | 新耐震基準 / 保証金・敷金+礼金が3か月以下 |
PJMビル4階の賃貸オフィス・事務所に関するお問い合わせ
PJMビルについて
東中延1丁目PJMビルは、東京都品川区東中延1丁目に位置する、2004年竣工のモダンなオフィスビルです。この物件は、第一京浜に面しており、その明るく開放的なガラス張りのファサードが、日中の自然光をふんだんに取り入れることができる設計となっています。ここでは、PJMビルの特徴、立地、設備などについて詳細にご紹介します。 【特徴】 PJMビルは、地上のスカイラインに美しく映えるガラス張りの外観が特徴的です。2004年に竣工して以来、その明るい外観は多くの企業やビジネスパーソンから高い評価を受けています。また、ビルの中は、最先端のオフィス空間として設計されており、快適なワークスペースを提供しています。 【立地】 品川区は、東京都内でもビジネスの中心の一つであり、多くの企業がオフィスを構えるエリアです。東中延1丁目PJMビルは、この品川区においても、アクセスが非常に便利な立地にあります。第一京浜に面しているため、東京都心への移動が容易であり、ビジネスチャンスを広げる絶好のロケーションと言えるでしょう。 【設備】 ビルには、1基のエレベーターが設置されており、スムーズな移動をサポートします。また、オフィス空間は、最新の設備を備え、企業のニーズに応える柔軟なレイアウトが可能です。ITインフラも充実しており、高速インターネットアクセスも完備されています。これらの設備は、ビジネスの効率化と働く人々の快適性を高めるために、細部にわたって配慮されています。 【ビジネスにおける利点】 東中延1丁目PJMビルは、その立地と設備の良さから、様々な業種の企業にとって魅力的なオフィススペースとなっています。特に、アクセスの良さは、クライアントやビジネスパートナーとの会合にも便利であり、ビジネスの機会を広げる重要な要素となっています。また、明るく開放感のあるオフィスは、働く人々の創造性と生産性を高めることにも寄与するでしょう。 総じて、東中延1丁目PJMビルは、ビジネスの拠点としての機能性と快適性を兼ね備えた、非常に魅力的なオフィス賃貸物件です。立地、設備、デザインのすべてが、企業が成功するための基盤を提供しています。
PJMビルのこだわり
自分で探すより問い合わせる方が早いことがあります
WEB非公開物件があるから
オーナー様のご希望により「WEBでは非公開」にしている物件があります。 それらはWEBでいくら検索しても見つかりません。 先ずは条件などお知らせ頂けましたら非公開物件含め ピッタリのオフィスをご提案させて頂きます。 無理なお勧めはしておりませんので、お気軽にお問い合わせください。
対面でのご相談も受け付けております
ご来店も歓迎です
オフィス移転は社内・社外ともに非公開に行われることが殆どです。そのためアットオフィスでは、基本的に訪問によるコンサルティングを行っておりますが、ご来店の相談も歓迎です。お一人おひとりに親身にご対応させて頂きたい為、要予約とさせて頂いております。ご来店の際は先ずは下記よりご予約下さい。
戸越エリアでPJMビルに似た条件の物件
読込中...
PJMビルと同じ最寄駅の物件
読込中...
| 取扱様態 | 仲介 |
|---|---|
| 取扱会社 | 株式会社 アットオフィス |