ニューギンザ5ビルの賃料条件
| 階数 | 坪数 | 賃料 + 共益費 | 敷金/礼金敷金 礼金 | 検討 |
|---|---|---|---|---|
| 8階 | 74.53坪 (246.38m²) | 2,906,670円 (坪:39,000 円) | 12ヶ月 無12ヶ月/無 |
※このサイトに記載がある賃貸条件は、敷金・保証金などの預かり金を除き、別途消費税がかかります。
物件情報
設備詳細
| 空調 | - |
|---|---|
| トイレ | - |
| 床仕様 | - |
| エレベータ | 3 基 |
| 駐車場設備 | - |
| その他 | 新耐震基準 / スケルトン / クリニック / 天井高3m以上 / 店舗可(飲食可) |
ニューギンザ5ビルの賃貸オフィス・事務所に関するお問い合わせ
ニューギンザ5ビルについて
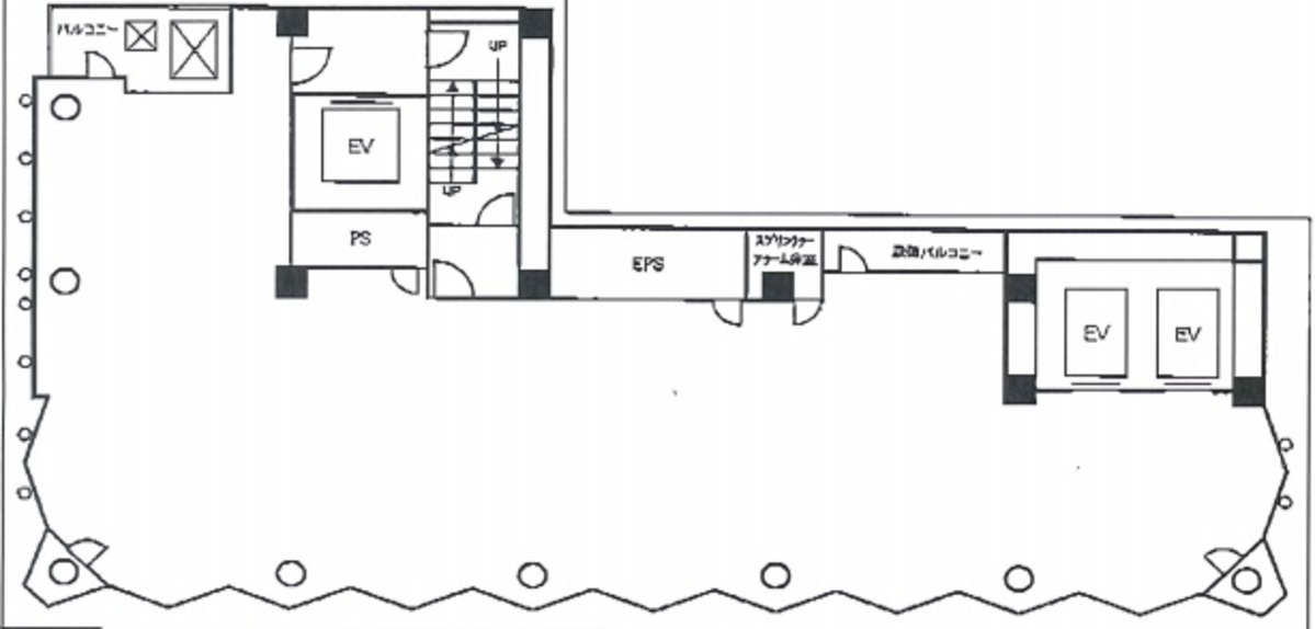
ニューギンザ5ビルは、中央区銀座5丁目、東京のビジネスとショッピングの中心地に位置するオフィス賃貸物件です。この築浅の新築物件は、2006年に竣工し、現代的なビジネスニーズに応えるための高水準の設備とスペックを誇ります。その立地と設備の良さは、企業が求めるすべてを提供します。 ニューギンザ5ビルの特徴は、まずその外観から始まります。凹凸のあるガラスウォールを使用したデザインは、通りを歩く人々の目を引くだけでなく、自然光を最大限に利用してオフィス内を明るく保つことができます。高級感あふれる石造りのエントランスは、訪れるすべての人々に対して、プロフェッショナルで上品な印象を与えます。 内装においては、L字型の貸室内は、綺麗な形状をしており、どのようなビジネスのニーズにも合わせやすい柔軟なレイアウトを可能にします。この間取りの利点は、テナントが自社のブランドイメージや作業スタイルに合わせてカスタマイズできることにあります。加えて、エレベーターは1機備えられ、スムーズな人の流れを保証します。 立地に関しては、ニューギンザ5ビルは銀座駅から徒歩3分、有楽町駅からは徒歩7分、新橋駅からは徒歩9分という、3駅以上が利用可能な非常に便利な位置にあります。ビルは晴海通りに面しており、周辺は人通りが多く、ビジネスだけでなくショールームとしての使用にも最適です。このような立地は、企業の可視性とアクセスの良さを同時に提供し、ビジネスチャンスを広げます。 ニューギンザ5ビルは、その外観の美しさ、便利で柔軟な内装、そして絶好の立地条件を兼ね備えることで、企業が成功へと導くための理想的な舞台を提供します。ビジネスの成長と発展を目指す企業にとって、これ以上の場所はありません。ニューギンザ5ビルで新たなビジネスの歴史を刻みましょう。
ニューギンザ5ビルのこだわり
自分で探すより問い合わせる方が早いことがあります
WEB非公開物件があるから
オーナー様のご希望により「WEBでは非公開」にしている物件があります。 それらはWEBでいくら検索しても見つかりません。 先ずは条件などお知らせ頂けましたら非公開物件含め ピッタリのオフィスをご提案させて頂きます。 無理なお勧めはしておりませんので、お気軽にお問い合わせください。
対面でのご相談も受け付けております
ご来店も歓迎です
オフィス移転は社内・社外ともに非公開に行われることが殆どです。そのためアットオフィスでは、基本的に訪問によるコンサルティングを行っておりますが、ご来店の相談も歓迎です。お一人おひとりに親身にご対応させて頂きたい為、要予約とさせて頂いております。ご来店の際は先ずは下記よりご予約下さい。
募集終了のテナント区画
| 階数 | 坪数 | 賃料 + 共益費 | 敷金/礼金敷金 礼金 | 検討 |
|---|---|---|---|---|
| B1階 | 64.5坪 (213.22m²) | 募集終了 | - | - |
| 3階 | 74.53坪 (246.38m²) | 募集終了 | - | - |
| 4階 | 74.53坪 (246.38m²) | 募集終了 | - | - |
| 7階 | 74.53坪 (246.38m²) | 募集終了 | - | - |
| 9階 | 74.53坪 (246.38m²) | 募集終了 | - | - |
| 10階 | 74.53坪 (246.38m²) | 募集終了 | - | - |
読込中...
銀座エリアでニューギンザ5ビルに似た条件の物件
読込中...
| 取扱様態 | 仲介 |
|---|---|
| 取扱会社 | 株式会社 アットオフィス |