中島第三ビル1階の賃貸情報
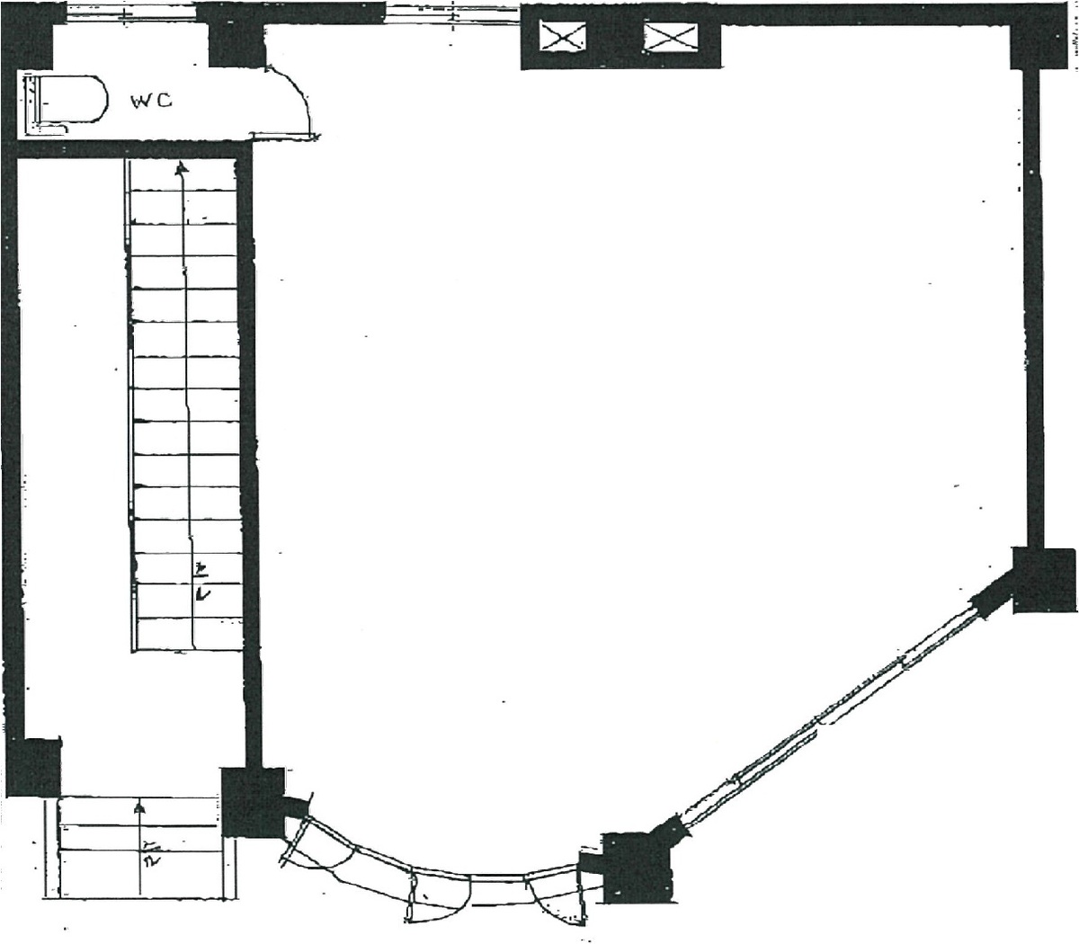
18.1 坪 (59.83m²)
※このサイトに記載がある賃貸条件は、敷金・保証金などの預かり金を除き、別途消費税がかかります。
中島第三ビルの建物概要
設備詳細
| 空調 | 個別空調 |
|---|---|
| トイレ | - |
| 床仕様 | - |
| エレベータ | - |
| 駐車場設備 | - |
| その他 | エレベーター無 / 1階の物件 |
中島第三ビル1階の賃貸オフィス・事務所に関するお問い合わせ
中島第三ビルについて
中島第3ビルは、東京都豊島区南大塚3丁目に位置する歴史あるオフィスビルで、都会の喧騒から一歩離れた落ち着いたビジネス環境を提供しています。このビルは1968年の新耐震基準導入前に建設されたものの、その後の継続的なメンテナンスと改修により、現代のビジネスニーズにもしっかりと対応しています。 ビルの最大の特徴の一つは、その立地にあります。JR山手線の大塚駅から徒歩圏内という交通アクセスの利便性は、ビジネスマンにとって非常に魅力的です。また、近隣には多数の飲食店や商業施設があり、ビジネスアフター5のリラクゼーションにも最適です。 施設面では、中島第3ビルはビル内に駐車場を完備しており、車での通勤やビジネスでの移動もスムーズです。これは都心部においては非常に貴重な設備であり、車を利用するビジネスパーソンには大きなメリットとなります。また、オフィス内部は機能的でモダンなデザインが施されており、快適なワークスペースを提供しています。 ビルのセキュリティ体制も万全で、入居企業とその従業員の安全をしっかりと守る体制が整えられています。これにより、企業はビジネスに集中できる環境が保たれ、効率的なオペレーションが可能となります。 中島第3ビルの最大の魅力は、その立地、設備、そして歴史が織りなす独特の雰囲気です。新しいビルにはない、成熟したビジネス環境を求める企業には特にお勧めの物件です。また、長年にわたる運用実績が信頼の証となり、安心してビジネスを行う基盤となるでしょう。 中島第3ビルは、これからも多くの企業にとって価値あるオフィススペースとして、その地位を保ち続けることでしょう。興味のある方は、ぜひ一度現地を訪れて、その魅力を自らの目で確かめてみてはいかがでしょうか。
中島第三ビルのこだわり
自分で探すより問い合わせる方が早いことがあります
WEB非公開物件があるから
オーナー様のご希望により「WEBでは非公開」にしている物件があります。 それらはWEBでいくら検索しても見つかりません。 先ずは条件などお知らせ頂けましたら非公開物件含め ピッタリのオフィスをご提案させて頂きます。 無理なお勧めはしておりませんので、お気軽にお問い合わせください。
対面でのご相談も受け付けております
ご来店も歓迎です
オフィス移転は社内・社外ともに非公開に行われることが殆どです。そのためアットオフィスでは、基本的に訪問によるコンサルティングを行っておりますが、ご来店の相談も歓迎です。お一人おひとりに親身にご対応させて頂きたい為、要予約とさせて頂いております。ご来店の際は先ずは下記よりご予約下さい。
駒込/巣鴨/大塚エリアで中島第三ビルに似た条件の物件
読込中...
中島第三ビルと同じ最寄駅の物件
読込中...
| 取扱様態 | 仲介 |
|---|---|
| 取扱会社 | 株式会社 アットオフィス |