※このサイトに記載がある賃貸条件は、敷金・保証金などの預かり金を除き、別途消費税がかかります。
物件情報
設備詳細
| 空調 | - |
|---|---|
| トイレ | - |
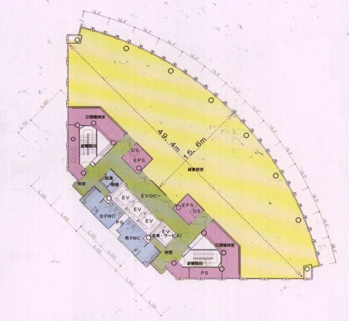
| 床仕様 | OA対応床(フリーアクセス) |
| エレベータ | 3 基 |
| 駐車場設備 | - |
| その他 | 機械警備 / 新耐震基準 |
大同生命さいたま大宮ビルの賃貸オフィス・事務所に関するお問い合わせ
大同生命さいたま大宮ビルについて
大同生命さいたま大宮は、桜木町4丁目にあるオフィスビルです。大宮駅から徒歩5分の駅近物件です。2005年に竣工しました。鉄骨造により耐震性があります。エレベーターは3基です。個別空調のため、管理しやすくコスト削減になります。床下にケーブルを入れるOAフロアで、すっきりとした空間です。セキュリティ設備があります。周辺に飲食店やコンビニがあり、急用時も困りません。銀行や郵便局に近いため、手続きが楽に済みます。大通りの交差点に位置しており、見通しの良い場所です。バス停のある駅前通りのため、移動に便利なエリアです。
大同生命さいたま大宮ビルのこだわり
自分で探すより問い合わせる方が早いことがあります
WEB非公開物件があるから
オーナー様のご希望により「WEBでは非公開」にしている物件があります。 それらはWEBでいくら検索しても見つかりません。 先ずは条件などお知らせ頂けましたら非公開物件含め ピッタリのオフィスをご提案させて頂きます。 無理なお勧めはしておりませんので、お気軽にお問い合わせください。
対面でのご相談も受け付けております
ご来店も歓迎です
オフィス移転は社内・社外ともに非公開に行われることが殆どです。そのためアットオフィスでは、基本的に訪問によるコンサルティングを行っておりますが、ご来店の相談も歓迎です。お一人おひとりに親身にご対応させて頂きたい為、要予約とさせて頂いております。ご来店の際は先ずは下記よりご予約下さい。
募集終了のテナント区画
| 階数 | 坪数 | 賃料 + 共益費 | 敷金/礼金敷金 礼金 | 検討 |
|---|---|---|---|---|
| 1階 | 43.2坪 (143.1m²) | 募集終了 | - | - |
| 1階 | 65.19坪 (215.49m²) | 募集終了 | - | - |
| 11階 | 184坪 (608.26m²) | 募集終了 | - | - |
| 11階 | 90.05坪 (299.18m²) | 募集終了 | - | - |
| 11階 | 38.86坪 (127.81m²) | 募集終了 | - | - |
| 11階 | 51.84坪 (171.37m²) | 募集終了 | - | - |
| 12階 | 90.5坪 (299.31m²) | 募集終了 | - | - |
| 13階 | 184坪 (608.26m²) | 募集終了 | - | - |
| 13階 | 90坪 (297.52m²) | 募集終了 | - | - |
| 14階 | 52坪 (171.9m²) | 募集終了 | - | - |
| 15階 | 184坪 (608.26m²) | 募集終了 | - | - |
| 16階 | 184坪 (608.26m²) | 募集終了 | - | - |
| 17階 | 184.9坪 (611.5m²) | 募集終了 | - | - |
| 17階 | 90.5坪 (299.17m²) | 募集終了 | - | - |
| 18階 | 89.18坪 (294.8m²) | 募集終了 | - | - |
| 19階 | 157坪 (519.01m²) | 募集終了 | - | - |
読込中...
大宮区エリアで大同生命さいたま大宮ビルに似た条件の物件
読込中...
| 取扱様態 | 仲介 |
|---|---|
| 取扱会社 | 株式会社 アットオフィス |