パストラル渋沢ビル2階の賃貸情報
36.84 坪 (121.8m²)
260,000円 (坪:7,057 円)
※このサイトに記載がある賃貸条件は、敷金・保証金などの預かり金を除き、別途消費税がかかります。
設備詳細
| 空調 | 個別空調 |
|---|---|
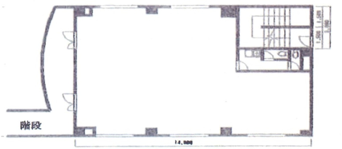
| トイレ | 男女別トイレ室内 |
| 床仕様 | - |
| エレベータ | - |
| 駐車場設備 | 空有 / 平置き駐車場 |
| その他 | 新耐震基準 / オートロック / 神奈川賃料が10000円以下 |
パストラル渋沢ビル2階の賃貸オフィス・事務所に関するお問い合わせ
パストラル渋沢ビルについて
パストラル渋沢ビルは、秦野市曲松2丁目に位置し、小田急電鉄小田原線「渋沢駅」から徒歩5分の場所に所在しています。周辺は住宅や商業施設が混在する地域にあり、各種事業活動の拠点として検討される建物です。地上4階建ての構造となっており、複数のフロアでフレキシブルな利用が可能です。エントランスにはオートロックが設置されており、セキュリティ面に配慮されています。また、建物には新耐震基準が採用されています。敷地内には平置き駐車場が用意されており、車の利用が想定される場合にも対応可能です。駅から徒歩圏内という立地条件から、従業員や来訪者の動線もイメージしやすく、事業運営の一環として検討材料となる建物です。多様な業種の法人様にとって、事務所や営業所など様々な使い方のイメージが広がります。詳細はお問い合わせください。
自分で探すより問い合わせる方が早いことがあります
WEB非公開物件があるから
オーナー様のご希望により「WEBでは非公開」にしている物件があります。 それらはWEBでいくら検索しても見つかりません。 先ずは条件などお知らせ頂けましたら非公開物件含め ピッタリのオフィスをご提案させて頂きます。 無理なお勧めはしておりませんので、お気軽にお問い合わせください。
対面でのご相談も受け付けております
ご来店も歓迎です
オフィス移転は社内・社外ともに非公開に行われることが殆どです。そのためアットオフィスでは、基本的に訪問によるコンサルティングを行っておりますが、ご来店の相談も歓迎です。お一人おひとりに親身にご対応させて頂きたい為、要予約とさせて頂いております。ご来店の際は先ずは下記よりご予約下さい。
秦野市エリアでパストラル渋沢ビルに似た条件の物件
読込中...
パストラル渋沢ビルと同じ最寄駅の物件
読込中...
| 取扱様態 | 仲介 |
|---|---|
| 取扱会社 | 株式会社 アットオフィス |